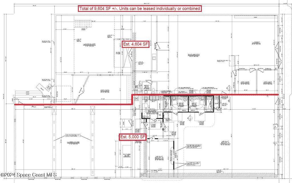
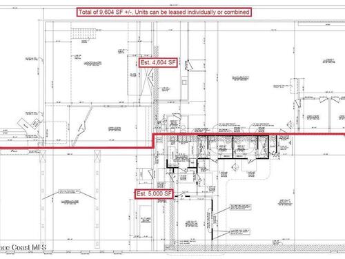
Excellent opportunity to lease a 5,000 SF retail unit in the heart of Cape Canaveral! Formerly a gym/bar. Interior is open configuration with a kitchen, 3 compartment sink and 2 restrooms. Concrete flooring and 10' - 14' +/- exposed ceiling throughout. There is one 8' wide x 8' 6'' tall +/- overhead door. Unit is 100% HVAC. Utilities include City Water/Sewer & FPL Electric. There are 10 common asphalt paved/striped parking spaces (potential for additional parking if needed). C-1 Zoning allows Retail, Office, Medical, Restaurant, Plant Nursery & more! Property is strategically positioned on Atlantic Avenue which is a direct connector to Port Canaveral and Jetty Park. Conveniently located approximately halfway between SR 520 & SR 528 which both provide access to I-95 & US1. Nearby employers include Cape Canaveral Hospital, Patrick Space Force Base, and Kennedy Space Center to name a few. Make this the future home for your business today!