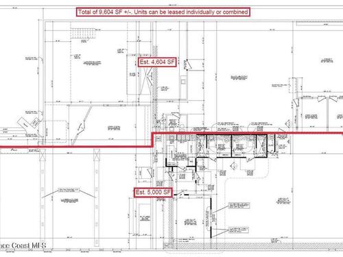
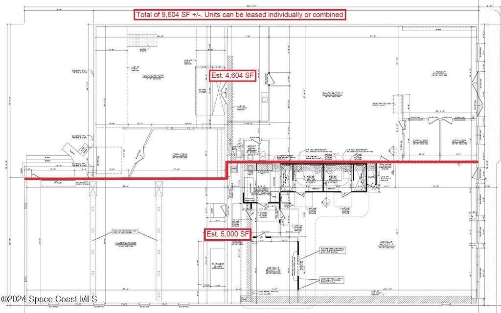
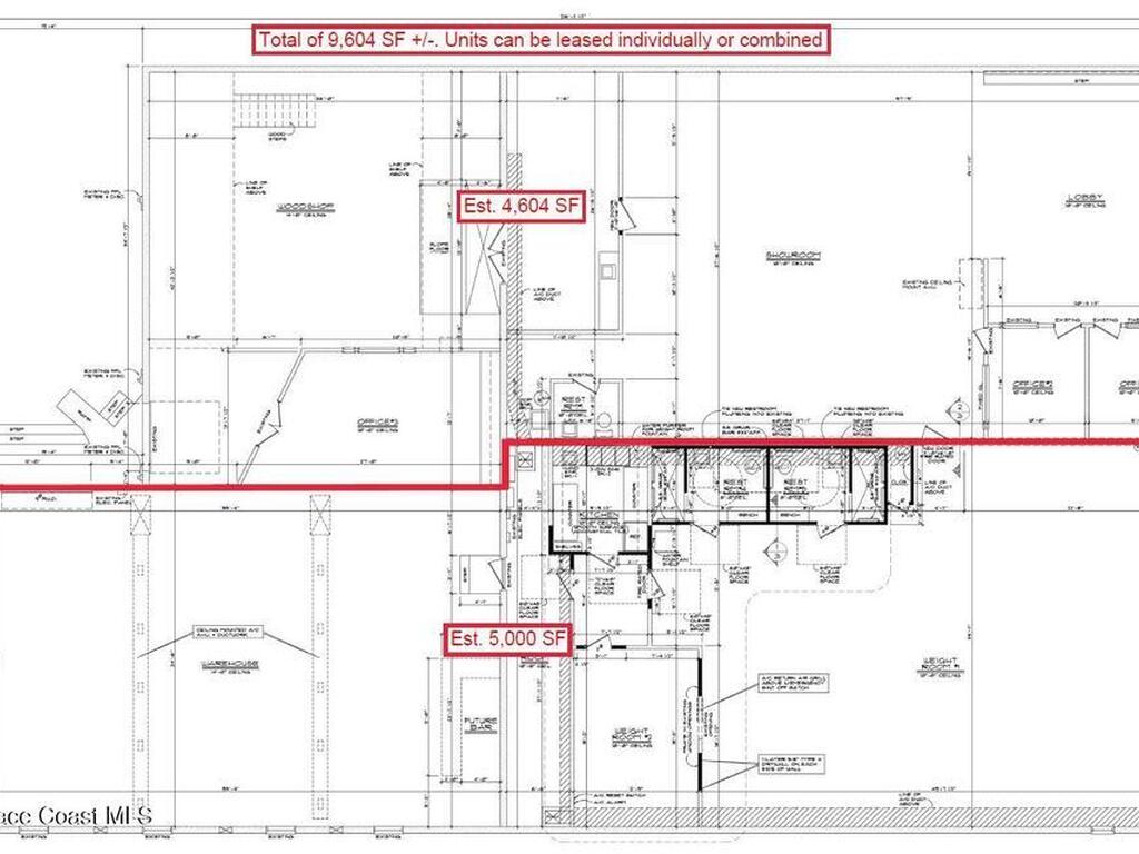
Excellent opportunity to lease a 9,604 SF retail building in the heart of Cape Canaveral! Interior is primarily open configuration with a reception area, 3 offices, 3 restrooms and a former kitchen/bar area with a 3-compartment sink. Concrete flooring and est. 10' - 14' exposed ceiling throughout. There is one 8' wide x 8' 6'' tall +/- overhead door and one 7' x 7' +/- door. Unit is 100% HVAC. Utilities include City Water/Sewer & FPL Electric. There are 10 asphalt paved/striped parking spaces with potential for more (call for details). C-1 Zoning allows Retail, Office, Medical, Restaurant, Plant Nursery & more. Property is strategically positioned on Atlantic Avenue which is a direct connector to Port Canaveral and Jetty Park. Located approximately halfway between SR 520 & SR 528 which both provide access to I-95 & Us1. Nearby employers include Cape Canaveral Hospital, Patrick Space Force Base and Kennedy Space Center to name a few. Make this the future home for your business today!