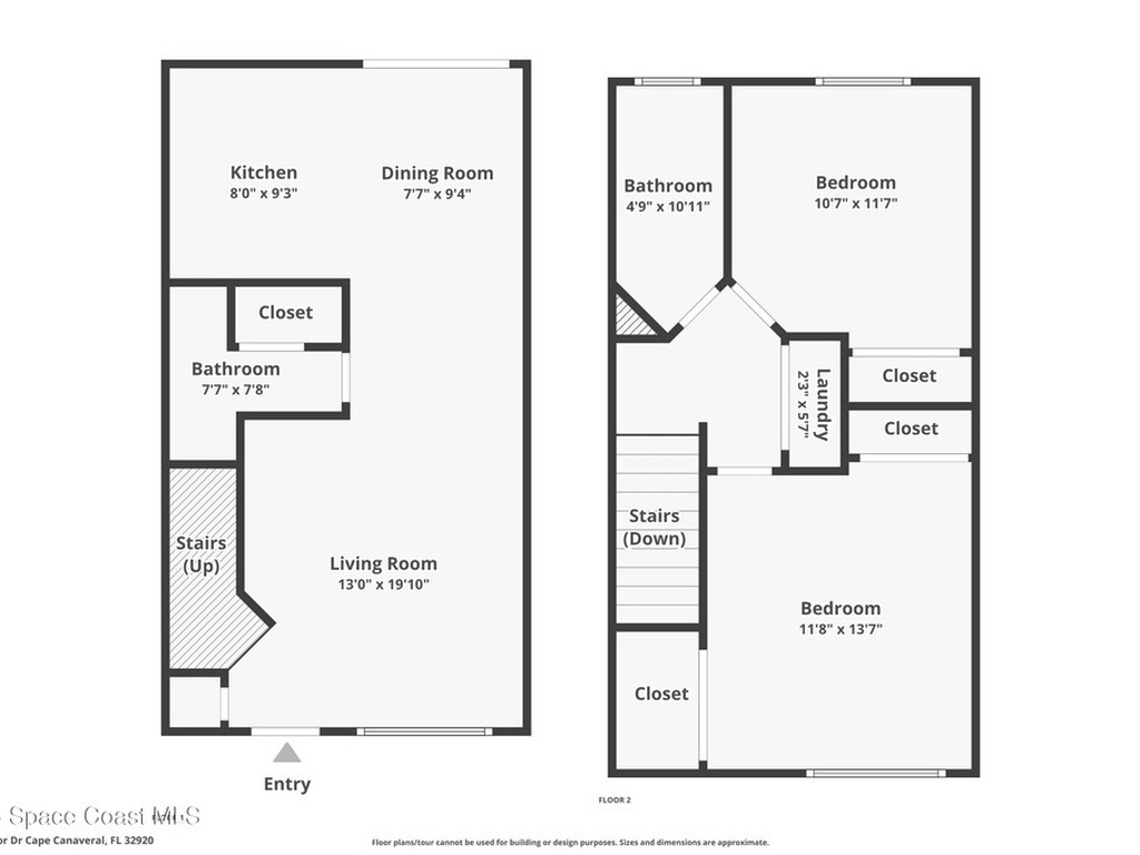
Awesome Townhouse in the only neighborhood in Cape Canaveral with beach access at the end of the street. No HOA, No Pet Restrictions, 7-day rentals, and concrete block construction. Need I say more? It's completely set up for rental or for you to move in. Great beach vibe, a spacious open floor plan for all your family and friends to visit, play, and break bread. Updated kitchen with granite countertops, stainless steel appliances, and plenty of space for cooking tools. Upstairs has two bedrooms and a full bath. The laundry is on the second floor, where it belongs. In the back is the private patio where you can grill and chill. Two parking spaces out front of the home. The beach access is at the end of the street. Shopping, restaurants, entertainment and attractions are close at hand. You snooze, you lose.
Essential Information
Year Built: 1986
Price: $365,000
Property Type: Residential
Area: 1,054 sqft.
Country: USA
City: Cape Canaveral
Bedrooms: 2
Bathrooms: 2.00
Additional Property Info
Community Fees: No
Construction: Concrete and Stucco
Cooling: Central Air and Electric
Equipment/Appliances: Dishwasher, Dryer, Electric Range, Microwave, Refrigerator and Washer
Floor: Carpet and Tile
Furnished: Furnished
Heat: Central and Electric
Interior Features: Ceiling Fan(s) and Open Floorplan
List Price/SqFt: $346.30 / sqft
Listing ID: 1032958
Listing Status: Active
Lot Description: Wooded
Lot SqFt: 1,742 sqft
Parking: Assigned
Pet Restrictions: Cats OK, Dogs OK and Yes
Pets: Cats OK, Dogs OK and Yes
Pool: No
Possession: Close Of Escrow and Negotiable
Private Pool: No
Property Type: Residential
Rental Restrictions: 1 Week
Residential Sub-Type: Townhouse
Road Surface: Asphalt
Roof: Shingle
Rooms: Bathroom 1, Bathroom 2, Dining Room and Living Room