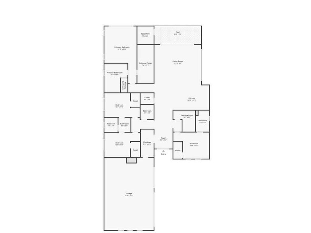
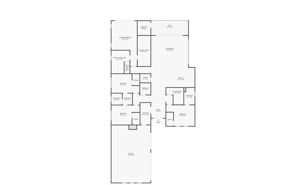
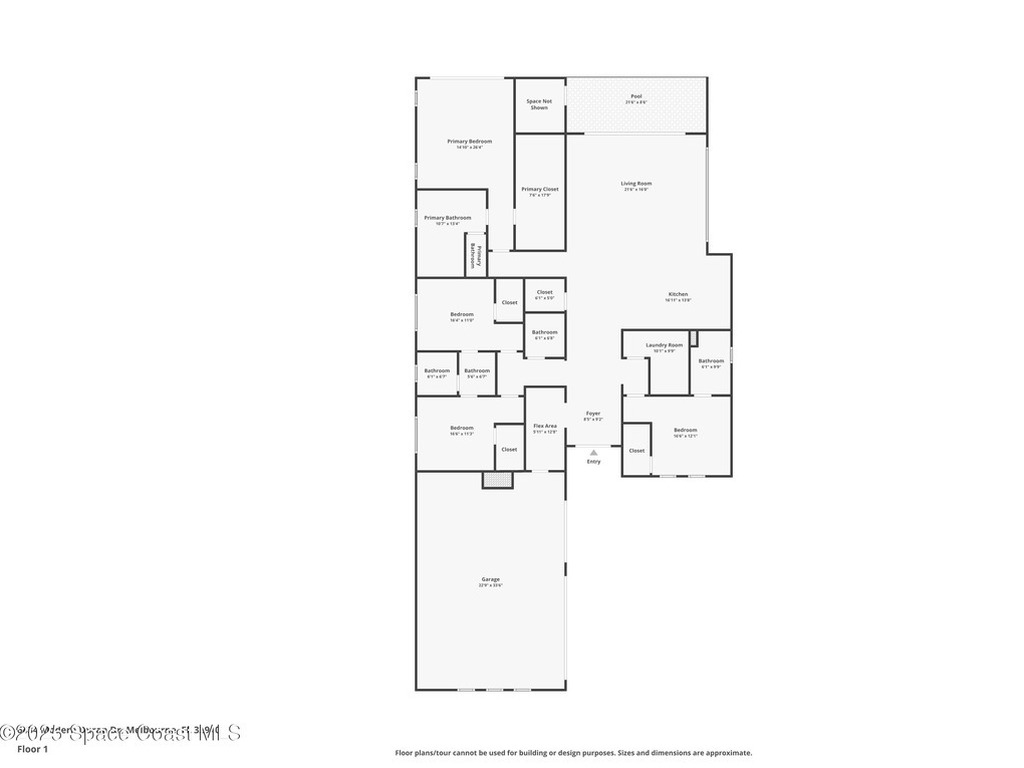
72 HR. KICK OUT CLAUSE! This mid-century modern masterpiece is a contemporary showstopper! BRAND-NEW CONSTRUCTION boasts expansive impact-rated windows & sliders framing views of the esteemed Duran Golf Course, a glittery lake & a fountain pool/spa. Towering ceilings soar over stunning wood-look floors that unite open-concept living & dining. White quartz countertops sweep across a high-end island kitchen featuring gray cabinetry, sleek Bosch SS appliances, a wall oven/micro, gas cooktop & large walk-in pantry. The sunlit great rm w/floating entertainment center highlights a quad slider to the patio. Luxe owner's retreat w/personal pool access, a HUGE custom walk-in closet, a striking glass-enclosed tub & dual-head shower. Jack & Jill bath links 2 spacious guest rms, while the 4th bdrm enjoys a private tub/shower ensuite. Mudroom & convenient cabana bath! A premier grill station & covered lanai overlook the shimmering pool & golf course greens.
Essential Information
Year Built: 2024
Price: $1,500,000
Property Type: Residential
Area: 2,850 sqft.
Country: USA
City: Melbourne
Bedrooms: 4
Bathrooms: 5.00
Additional Property Info
Assoc/HOA Contact: Fairway Management
Association Fee Included: Maintenance Grounds and Other
Community Fees: No
Construction: Block and Concrete
Cooling: Central Air and Electric
Dwelling View: Golf Course, Lake and Pool
Equipment/Appliances: Dishwasher, Disposal, Electric Cooktop, Electric Oven, Freezer, Gas Range, Microwave, Refrigerator and Tankless Water Heater
Exterior Features: Impact Windows
Floor: Carpet and Tile
Furnished: Unfurnished
Heat: Central and Electric
Interior Features: Breakfast Bar, Built-in Features, Entrance Foyer, Guest Suite, Jack and Jill Bath, Kitchen Island, Open Floorplan, Pantry, Primary Bathroom -Tub with Separate Shower, Smart Thermostat and Walk-In Closet(s)