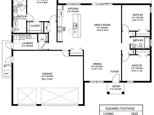
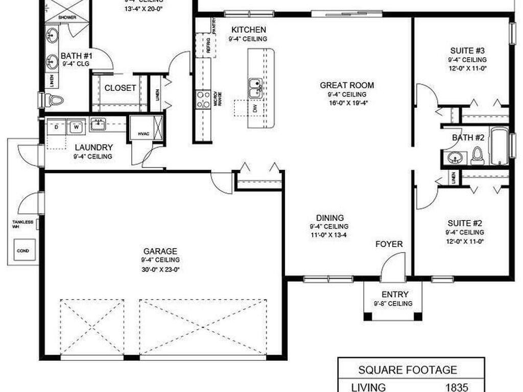
ONLY 1,000. DOWN, ALL CLOSING COST PAID w/ use of preferred lender. HOME WARRANTY! LAST 3 Car NEW HOME to close out the community. LOT 46 with lake views... Welcome to Palm Bay's newest exclusive community featuring 50 total home-sites. New Home Construction has began on this beautiful 3 bedroom, 2 bath, 3 car garage home with a large covered lanai. This home offers a large great room / open plan design with Dining area, spacious kitchen with many beautiful upgrades with deluxe full appliance package. The master suite features 9'4'' ceiling, 2 large walk in closets, and Master bath retreat with large tile walk in shower, & dual sinks with Quartz countertops. Oversized Laundry room with cabinets & additional extras! Attention to detail in every aspect of this home from flooring, to lighting, cabinets & more. Community offers city water & sewer lots, nice lake-views when entering into this quiet neighborhood. Community is in the FINAL STAGES, so DO NOT MISS an Opportunity!
Essential Information
Year Built: 2025
Price: $435,900
Property Type: Residential
Area: 1,835 sqft.
Country: USA
City: Palm Bay
Bedrooms: 3
Bathrooms: 2.00
Additional Property Info
Assoc/HOA Contact: Space Coast Property Management of Brevard LLC
Association Fee Included: Maintenance Grounds
Community Fees: No
Construction: Block, Concrete and Stucco
Cooling: Central Air and Electric
Equipment/Appliances: Dishwasher, Electric Range, Electric Water Heater, Ice Maker, Microwave and Refrigerator
Exterior Features: Storm Shutters
Floor: Carpet, Tile and Vinyl
Furnished: Unfurnished
Green Certification: ENERGY STAR Certified Homes
Heat: Central and Electric
Interior Features: Breakfast Bar, Ceiling Fan(s), His and Hers Closets, Open Floorplan, Pantry, Primary Bathroom - Tub with Shower, Split Bedrooms, Vaulted Ceiling(s) and Walk-In Closet(s)
List Price/SqFt: $237.55 / sqft
Listing ID: 1044349
Listing Status: Active
Lot Description: Sprinklers In Front and Sprinklers In Rear
Lot Dimensions: 76 x 130
Lot SqFt: 8,276 sqft
Parking: Attached and Garage Door Opener
Pet Restrictions: Yes
Pets: Yes
Pool: No
Possession: Close Of Escrow
Private Pool: No
Property Type: Residential
Residential Sub-Type: Single Family Residence
Road Surface: Asphalt,Paved
Roof: Shingle
Rooms: Bedroom 2, Bedroom 3, Dining Room, Family Room, Kitchen, Other Room and Primary Bedroom