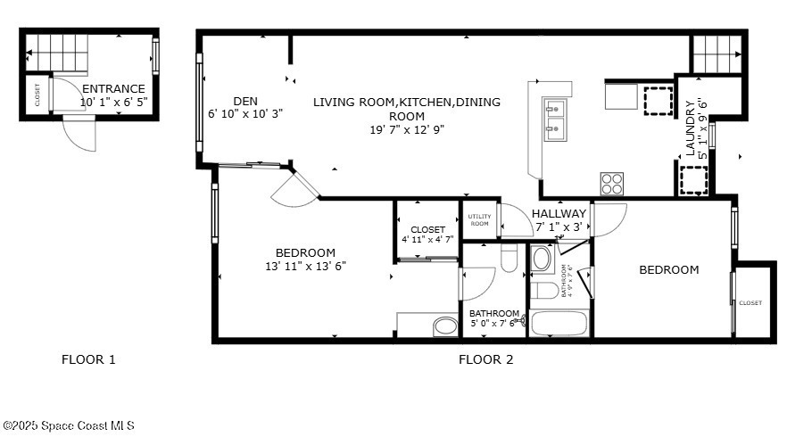
Welcome to this beautifully maintained 2-bedroom, 2-bathroom condo in the highly sought-after Club Haciendas community, located right on the lush greens of the La Cita Golf Course. This spacious second-floor unit offers over 1,000 square feet of comfortable living with serene views and an open-concept layout. Enjoy a bright and airy living space, a well-appointed kitchen with ample cabinetry, and a private screened-in balcony that overlooks the sparkling community pool--perfect for relaxing with your morning coffee or evening sunsets. The primary suite includes an en-suite bath and generous closet space, and the unit comes fully furnished, making it move-in ready! Residents enjoy access to a well-kept community with beautiful landscaping and a peaceful atmosphere ideal for walking, biking, or simply enjoying the Florida lifestyle. Conveniently located near shopping, dining, historic downtown Titusville.
Essential Information
Year Built: 1987
Price: $175,000
Property Type: Residential
Area: 1,010 sqft.
Country: USA
City: Titusville
Bedrooms: 2
Bathrooms: 2.00
Additional Property Info
Assoc/HOA Contact: Club Haciendas
Association Fee Included: Cable TV, Internet, Pest Control, Sewer, Trash and Water
Community Fees: No
Construction: Frame and Stucco
Cooling: Central Air
Dwelling View: Pool
Equipment/Appliances: Dishwasher, Electric Range, Ice Maker, Microwave, Refrigerator and Washer/Dryer Stacked
Exterior Features: Balcony and Outdoor Kitchen
Floor: Carpet, Tile and Vinyl
Furnished: Furnished
Heat: Central and Electric
Interior Features: Breakfast Bar, Ceiling Fan(s), Entrance Foyer, Split Bedrooms, Vaulted Ceiling(s) and Walk-In Closet(s)