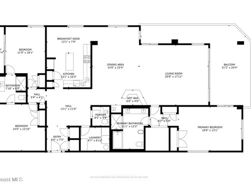
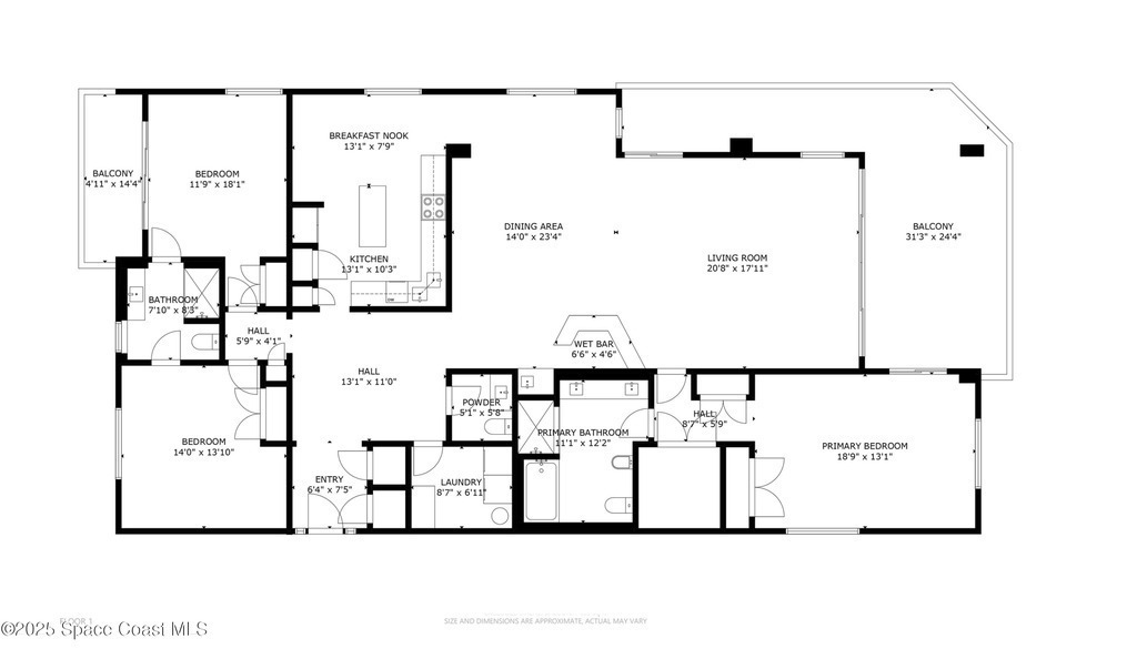
Sellers will consider all reasonable offers. 7th-floor OCEANFRONT CORNER UNIT, offering 2,427 square foot of living space under air. Unit includes TWO assigned garage spaces plus storage. With three bedrooms, two and a half baths and panoramic views of the sparkling Atlantic Ocean and Intracoastal Waterway, you can wake to inspiring sunrises on the ocean and sip a happy hour cocktail watching riverside sunsets. Some of the largest balconies in our area, ideal for entertaining, relaxing, dining al fresco or watching awesome SpaceX launches. Situated in the laid back & friendly community of Melbourne Beach, a short drive from great local restaurants, shopping, golf and more. Large pool, perfect for soaking up the Florida sunshine. Inground spa, tiki style picnic area, community workout room, secured lobby and private beach access. Rolex shutters, recently replaced balcony railings and new roof coming soon. Fully Furnished! Seller will accept Bitcoin, cash or conventional financing.
See Listings by Area and Type