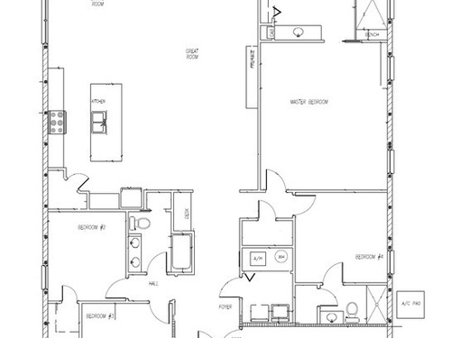
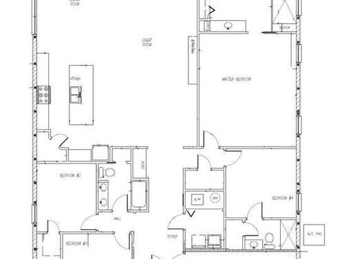
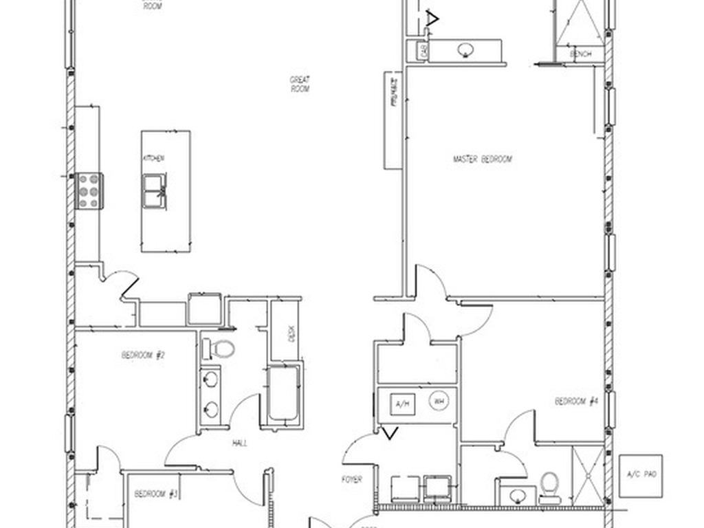
Pre-Construction. Ready to Build! This future custom home w/Large under roof back porch sits on spacious 0.51-acre w/ mature trees, offering privacy & plenty of room to Entertain outdoors! Beautifully Designed with luxury, comfort & function in mind. The open-concept kitchen & great room form the heart of the home, perfect for gathering & entertaining. The kitchen features 3/4'' custom white shaker cabinets (all plywood), quartz countertops, a 10' kitchen island, custom hood vent, pot filler, and 36'' range. Spacious and stylish Floor plan Enjoy Luxury Vinyl Plank flooring, 71/2'' baseboards, and tray ceilings in entrance hallway, primary bedroom, primary bathroom, great room, and dining room. Great room ceiling tray height is 13 ft. The private primary suite offers generous space, a large walk-in closet, and a spa-style shower. Impact windows, Carrier AC, septic, well, and hallway desk included. It is a custom home w/ a lot of upgrade options, minor plan changes, and selections
Essential Information
Year Built: 2026
Price: $699,900
Property Type: Residential
Area: 2,487 sqft.
Country: USA
City: Melbourne
Bedrooms: 4
Bathrooms: 3.00
Additional Property Info
Community Fees: No
Construction: Block and Stucco
Cooling: Central Air and Electric
Equipment/Appliances: Dishwasher, Electric Range, Electric Water Heater, Microwave and Refrigerator
Floor: Vinyl
Furnished: Unfurnished
Heat: Central and Electric
Interior Features: Kitchen Island, Pantry and Walk-In Closet(s)