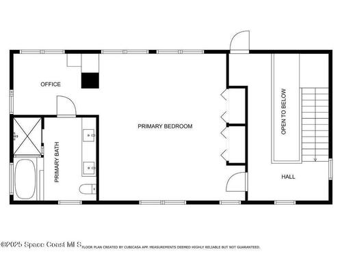
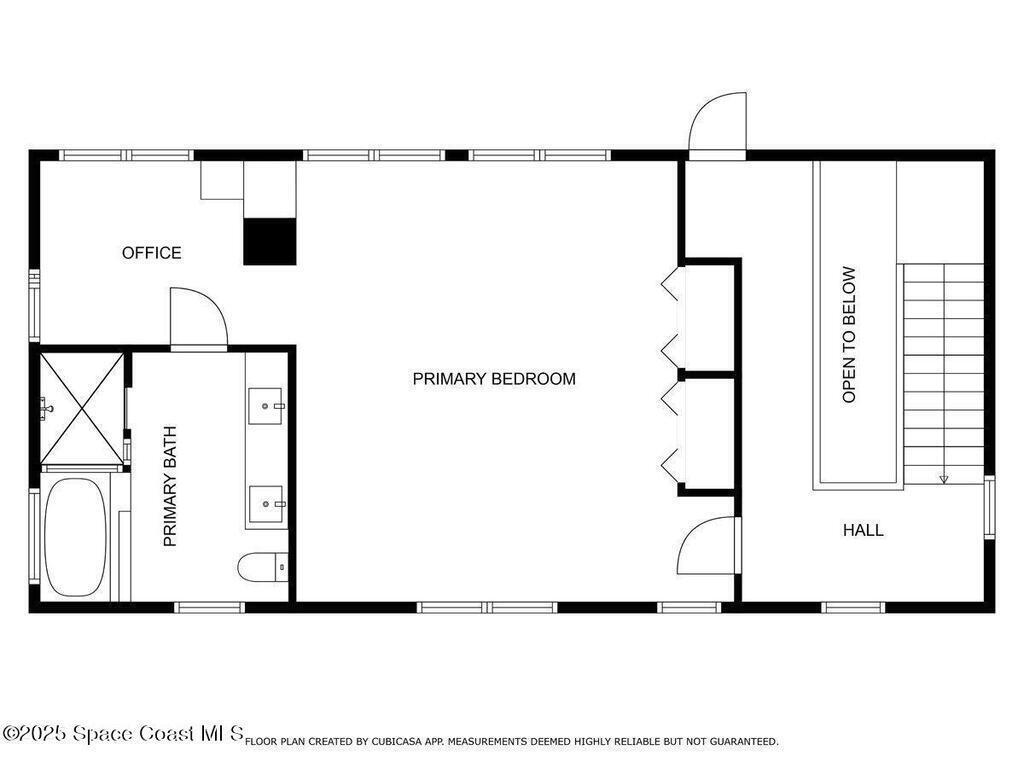
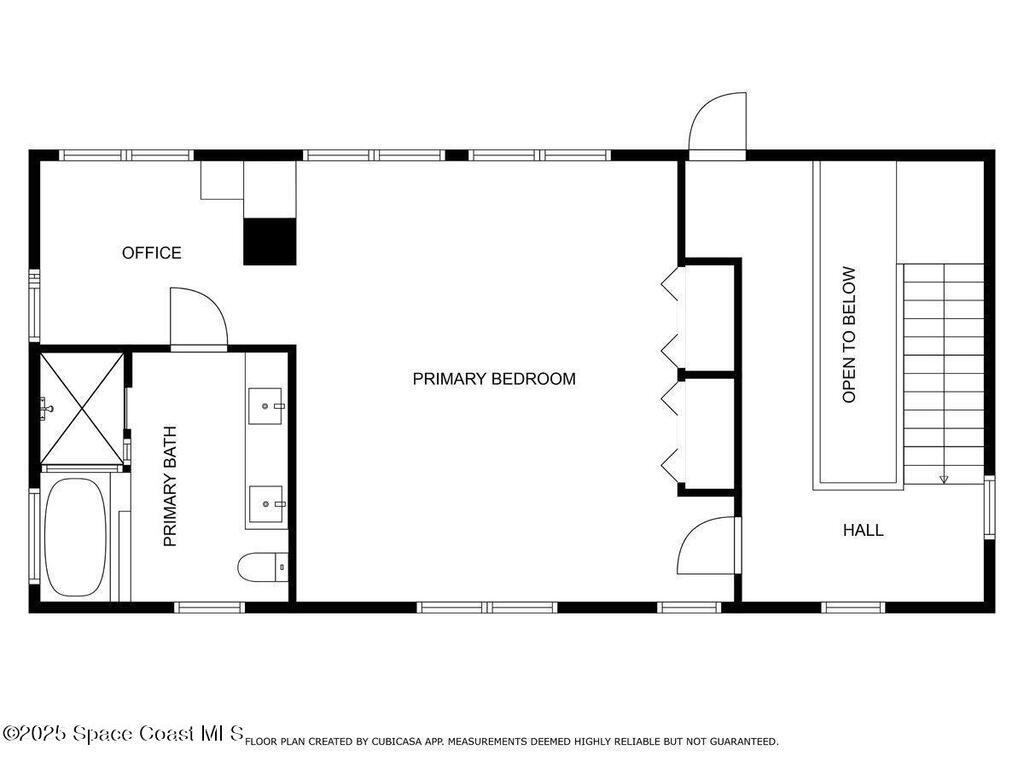
Timeless Coastal Charm Meets Oceanfront Living in Floridana Beach. Welcome to 6775 S Highway A1A, where Old World character meets the laid-back luxury of Melbourne Beach. Located in the heart of the beloved Floridana Beach community, this oversized New England-style cottage sits directly on the Atlantic Ocean and offers front-row views of the sunrise and surf. With nearly 4,000 square feet of living space, this oversized beachside retreat was designed for both entertaining and relaxing. The expansive ocean view deck easily seats over a dozen, making it perfect for unforgettable gatherings or quiet mornings listening to the waves. Inside, you'll find double master suites, one on the main floor and a second upstairs. The upper-level master is a spacious surprise, complete with a large updated bathroom featuring a soaking tub, walk-in shower, double vanity, and elegant Carrara marble tile. Every room and bedroom is equipped with its own mini-split A/C unit, ensuring personalized comfort
Essential Information
Year Built: 1958
Price: $2,750,000
Property Type: Residential
Area: 3,982 sqft.
Country: USA
City: Melbourne Beach
Bedrooms: 5
Bathrooms: 3.00
Additional Property Info
Community Fees: No
Construction: Brick, Frame and Wood Siding
Cooling: Ductless
Dwelling View: Beach, Ocean and River
Equipment/Appliances: Dishwasher, Electric Range, Microwave and Refrigerator
Exterior Features: Balcony, Dock and Storm Shutters
Fireplace: Wood Burning
Floor: Tile
Furnished: Negotiable
Heat: Central
Interior Features: Breakfast Bar, Breakfast Nook, Built-in Features, Ceiling Fan(s), Eat-in Kitchen, Entrance Foyer, Guest Suite, His and Hers Closets, Jack and Jill Bath, Kitchen Island, Open Floorplan, Primary Bathroom - Shower No Tub, Primary Bathroom -Tub with Separate Shower, Primary Downstairs, Split Bedrooms, Vaulted Ceiling(s) and Walk-In Closet(s)