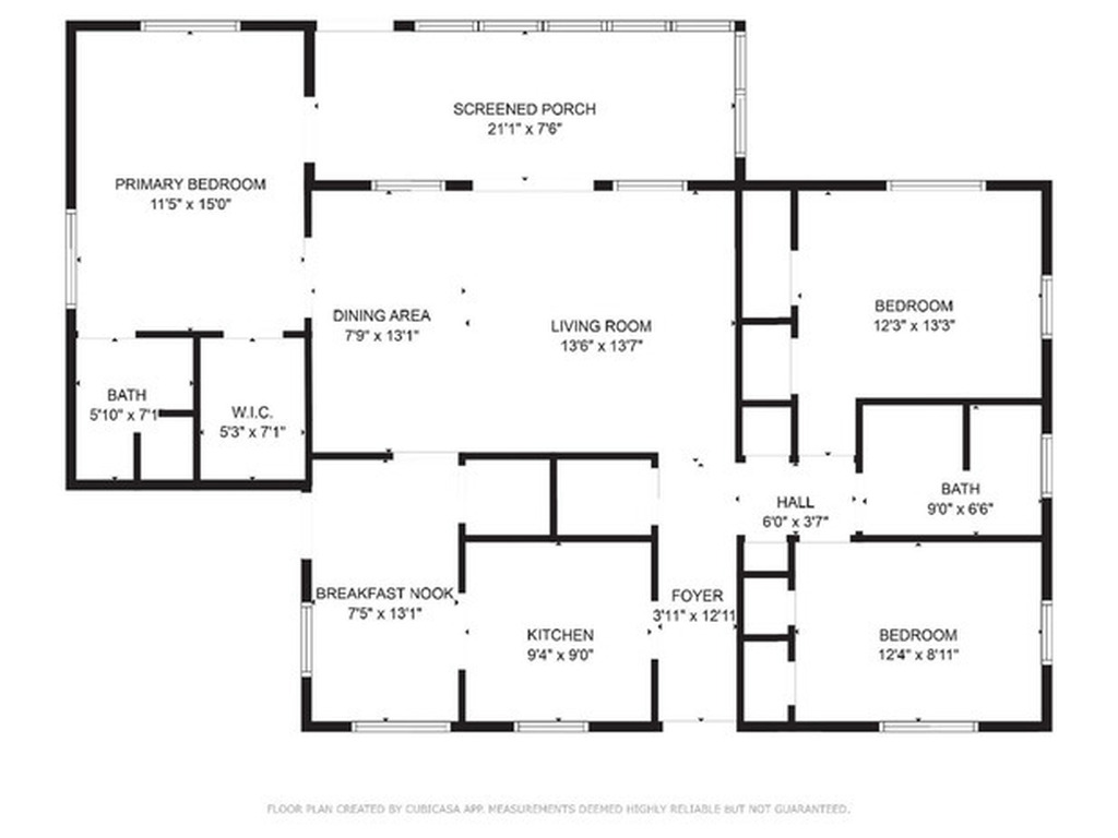
Looking for a home with character and the chance to make it your own? This old-school Florida property might just be the diamond in the rough you've been searching for. Featuring 3 bedrooms, 2 baths, and an in-ground pool (not screened), this house is brimming with possibilities--and priced to sell.
Essential Information
Year Built: 1958
Price: $315,000
Property Type: Residential
Area: 1,488 sqft.
Country: USA
City: Vero Beach
Bedrooms: 3
Bathrooms: 2.00
Additional Property Info
Community Fees: No
Construction: Concrete and Stucco
Contingent: Active Under Contract
Cooling: Central Air
Equipment/Appliances: Dryer, Electric Range, Microwave, Refrigerator and Washer
Floor: Tile
Furnished: Unfurnished
Heat: Central and Electric
Interior Features: Split Bedrooms
List Price/SqFt: $211.69 / sqft
Listing ID: 1051988
Listing Status: Active Under Contract
Lot Description: Few Trees
Lot Dimensions: 70x127
Lot SqFt: 8,712 sqft
Parking: Attached and Carport
Pet Restrictions: Yes
Pets: Yes
Pool: Yes
Pool Features: In Ground
Possession: Close Of Escrow
Private Pool: Yes
Property Type: Residential
Residential Sub-Type: Single Family Residence
Road Surface: Concrete
Roof: Shingle
Rooms: Bedroom 2, Bedroom 3, Dining Room, Kitchen, Living Room and Primary Bedroom