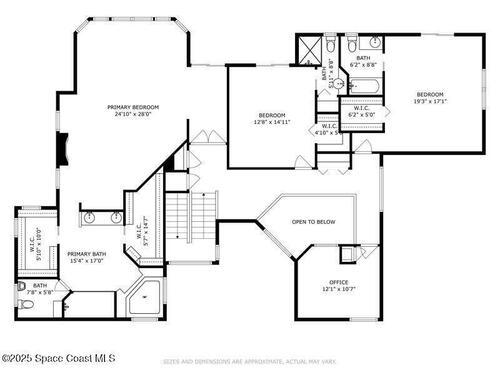
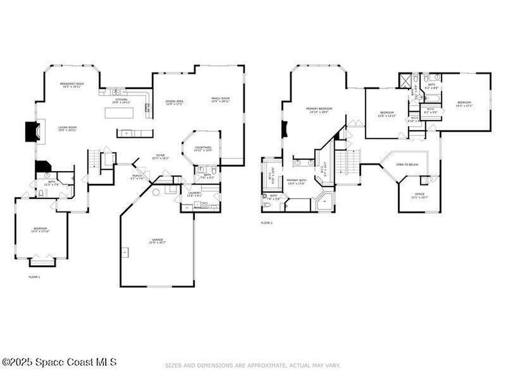
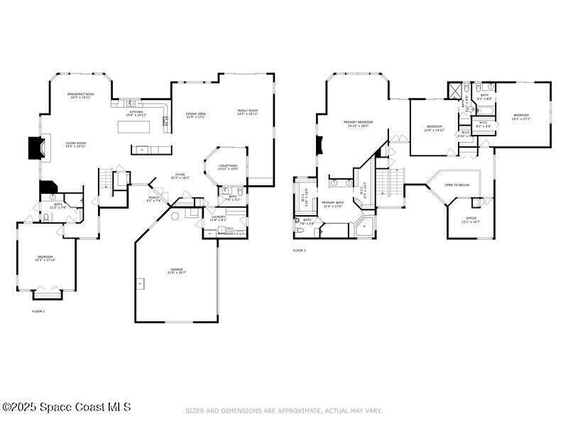
Experience coastal luxury in the exclusive gated community of Tortoise Island. This stunning waterfront estate sits directly on the Banana River with a private dock and heated saltwater pool--perfect for enjoying Florida's sun-soaked lifestyle. With over 4,900 sq ft of living space, this home features a gourmet kitchen, two fireplaces, a spacious open floor plan, and a downstairs en-suite. Elegant details include travertine floors, tray ceilings, and crown molding. Recent upgrades include a new metal roof (2023), hot water heater (2023), garage door (2022), 2 downstairs HVAC (2023), and upstairs HVAC (2024). Enjoy serene river views from the large, covered patio, ideal for entertaining. Just minutes from the beach, this home is coastal living at its finest. Community amenities include a pool, tennis courts, fitness center, boat dock and slip, and playground. A rare riverfront gem in one of the area's most prestigious neighborhoods.
Essential Information
Year Built: 1987
Price: $2,155,000
Property Type: Residential
Area: 4,913 sqft.
Country: USA
City: Satellite Beach
Bedrooms: 5
Bathrooms: 5.00
Additional Property Info
Assoc/HOA Contact: Tortoise Island
Community Fees: No
Construction: Frame and Stucco
Cooling: Central Air, Electric, Multi Units and Zoned
Dwelling View: Pool and River
Equipment/Appliances: Convection Oven, Dishwasher, Double Oven, Dryer, Electric Oven, Gas Cooktop, Gas Range, Microwave, Refrigerator, Trash Compactor and Washer
Exterior Features: Balcony, Boat Lift, Courtyard and Dock
Floor: Marble, Tile and Wood
Furnished: Unfurnished
Heat: Central and Electric
Interior Features: Breakfast Bar, Breakfast Nook, Built-in Features, Ceiling Fan(s), Central Vacuum, Entrance Foyer, Guest Suite, His and Hers Closets, Kitchen Island, Open Floorplan, Primary Bathroom - Tub with Shower, Vaulted Ceiling(s) and Walk-In Closet(s)
List Price/SqFt: $438.63 / sqft
Listing ID: 1053096
Listing Status: Active
Lot Description: Sprinklers In Front and Sprinklers In Rear
Lot SqFt: 17,860 sqft
Parking: Garage, Garage Door Opener and Gated
Pet Restrictions: Yes
Pets: Yes
Pool: Yes
Pool Features: Gas Heat, In Ground, Salt Water and Screen Enclosure
Possession: Close Of Escrow
Private Pool: Yes
Property Type: Residential
Rental Restrictions: 6 Months
Residential Sub-Type: Single Family Residence
Road Surface: Asphalt
Roof: Metal
Security/Safety: Gated with Guard and Smoke Detector(s)
Showing: 24 Hour Notice,Appointment Only,Lockbox,Showing Service
Sold Terms Code: Cash,Conventional,VA Loan
SqFt - Living: 4,913 sqft
State/Province: FL
Status: Active
Status Change Date: Wednesday, February 11th, 2026