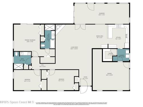
Welcome to this beautifully maintained 2,331 square foot block home located in the desirable Quail Haven subdivision. Situated on a spacious 1.08-acre lot, this property offers privacy, functionality, and the best of Florida living. The home features an inviting inground pool, resurfaced in 2025, perfect for entertaining or relaxing in your private backyard oasis. A 600 square foot detached garage provides ample space for a workshop, additional vehicles, or storage.Recent updates include a new roof and A/C system, both replaced in 2022. Impact-resistant windows were installed in 2020, and a new water softener was added in 2023. The concrete driveway, installed in 2020, enhances curb appeal and provides durable, low-maintenance access to the property.Enjoy the convenience of being close to local walking paths and just a short drive to the Space Center. This move-in-ready home offers a rare combination of land, upgrades, and location.
Essential Information
Year Built: 1988
Price: $515,000
Property Type: Residential
Area: 1,875 sqft.
Country: USA
City: Mims
Bedrooms: 3
Bathrooms: 2.00
Additional Property Info
Community Fees: No
Construction: Block and Stucco
Cooling: Central Air
Equipment/Appliances: Dishwasher, Disposal, Dryer, Electric Oven, Electric Range, Electric Water Heater, Microwave, Refrigerator and Washer
Exterior Features: Impact Windows
Fireplace: Wood Burning
Floor: Carpet, Laminate and Tile
Furnished: Unfurnished
Heat: Heat Pump
Interior Features: Ceiling Fan(s), Eat-in Kitchen, Open Floorplan, Pantry, Primary Bathroom -Tub with Separate Shower and Vaulted Ceiling(s)
List Price/SqFt: $274.67 / sqft
Listing ID: 1053783
Listing Status: Active
Lot Description: Dead End Street, Sprinklers In Front and Sprinklers In Rear