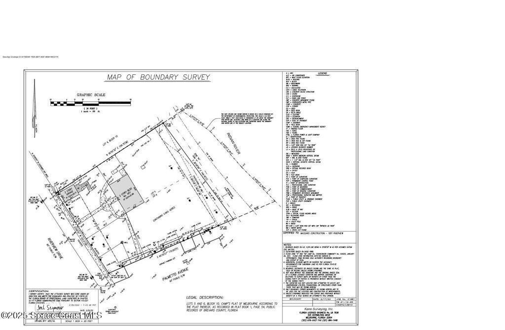
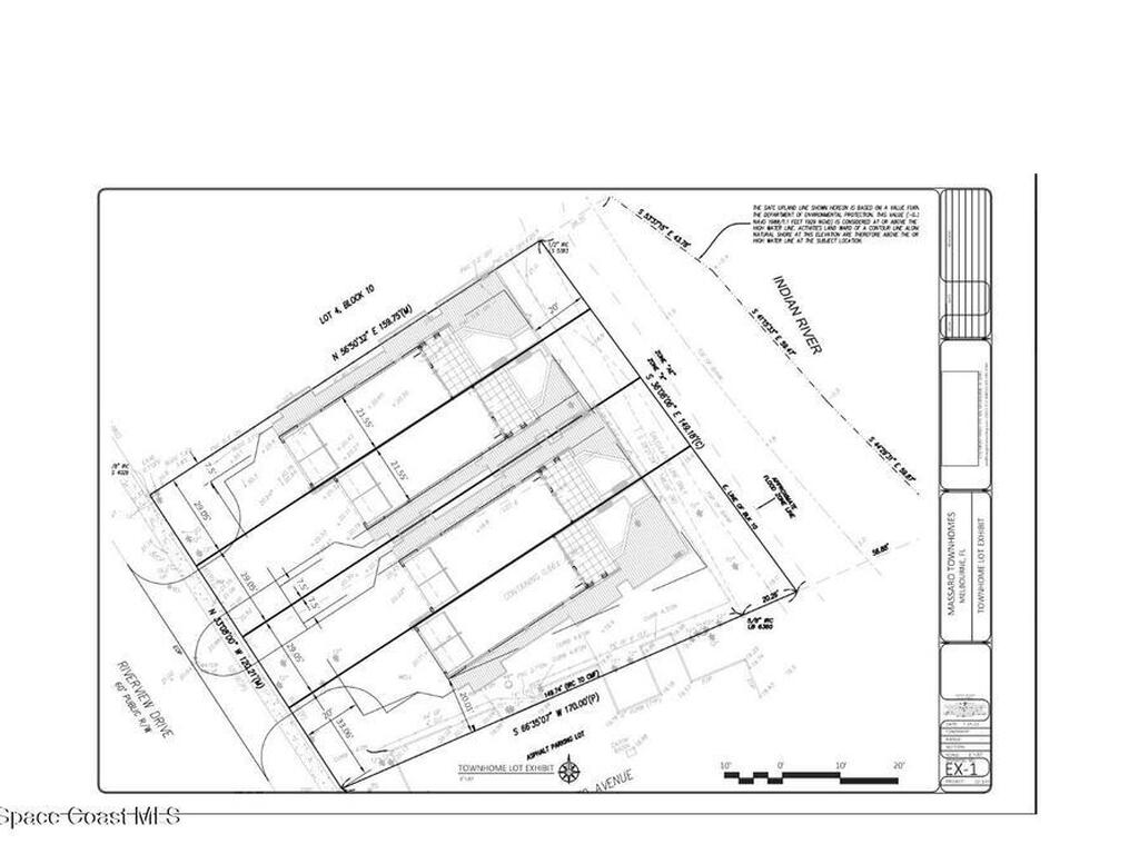
A rare 165' direct riverfront development opportunity in historic downtown Melbourne. This 0.66-acre (approx. 28,750 sq ft) parcel offers 165' of unobstructed Indian River frontage with 170' depth, panoramic views of the causeway and barrier island, and a lot elevation of 20.33 ft NAVD. With city-approved site plans for 4 luxury townhomes, a 6.0 FAR, completed aquatic and habitat surveys, and C-1 zoning, the site is primed for high-end residential or mixed-use development. Survey, plans, and environmental study are approved and included. Located at the center of Melbourne's ongoing revitalization, this is a once-in-a-generation chance to anchor a flagship project on the Space Coast waterfront. The owner has already paved the way--now it's your turn to make it iconic.