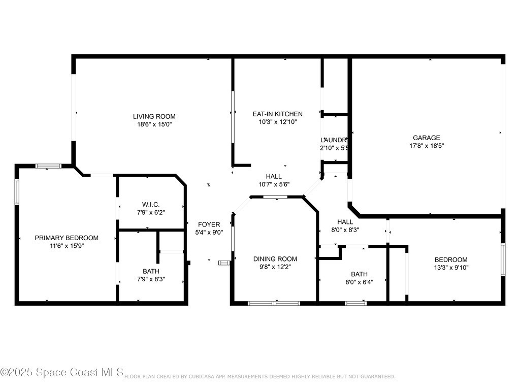
Original owner and former builder's mode end unit, this pet- and smoke-free townhouse shines with pride of ownership. Features include a new roof (June 2023), Trane A/C (4 yrs), water heater (2 yrs), new Frigidaire & Bosch kitchen appliances, solid wood cabinets, two-car garage, ADT security ($55/mo.), accordion storm shutters with locks (serviced annually), and underground electric lines--home has never lost power. Tile floors throughout, dining room/flex space, air filters changed monthly, and a no-flood zone location add peace of mind. Ideally situated near The Post Commons, Neighborhood Walmart, Maxwell C. King Center, EFSC Melbourne Campus, Wickham Park, and Pineda Beach Park. And only 20 minutes from Cocoa Beach and Port Canaveral. The HOA covers the cable, internet, exterior insurance and maintenance and property management. Move-in ready with comfort, convenience, and lasting value!
Essential Information
Year Built: 2006
Price: $285,000
Property Type: Residential
Area: 1,297 sqft.
Country: USA
City: Melbourne
Bedrooms: 2
Bathrooms: 2.00
Additional Property Info
Assoc/HOA Contact: The Arbors at Longleaf
Association Fee Included: Cable TV, Internet, Maintenance Grounds and Trash
Community Fees: No
Construction: Block, Concrete and Stucco
Cooling: Central Air and Electric
Dwelling View: Other
Equipment/Appliances: Dishwasher, Disposal, Electric Range, Electric Water Heater, Microwave and Refrigerator
Floor: Tile
Furnished: Unfurnished
Heat: Central and Electric
Interior Features: Breakfast Bar, Built-in Features, Ceiling Fan(s), Eat-in Kitchen, Pantry, Split Bedrooms and Walk-In Closet(s)