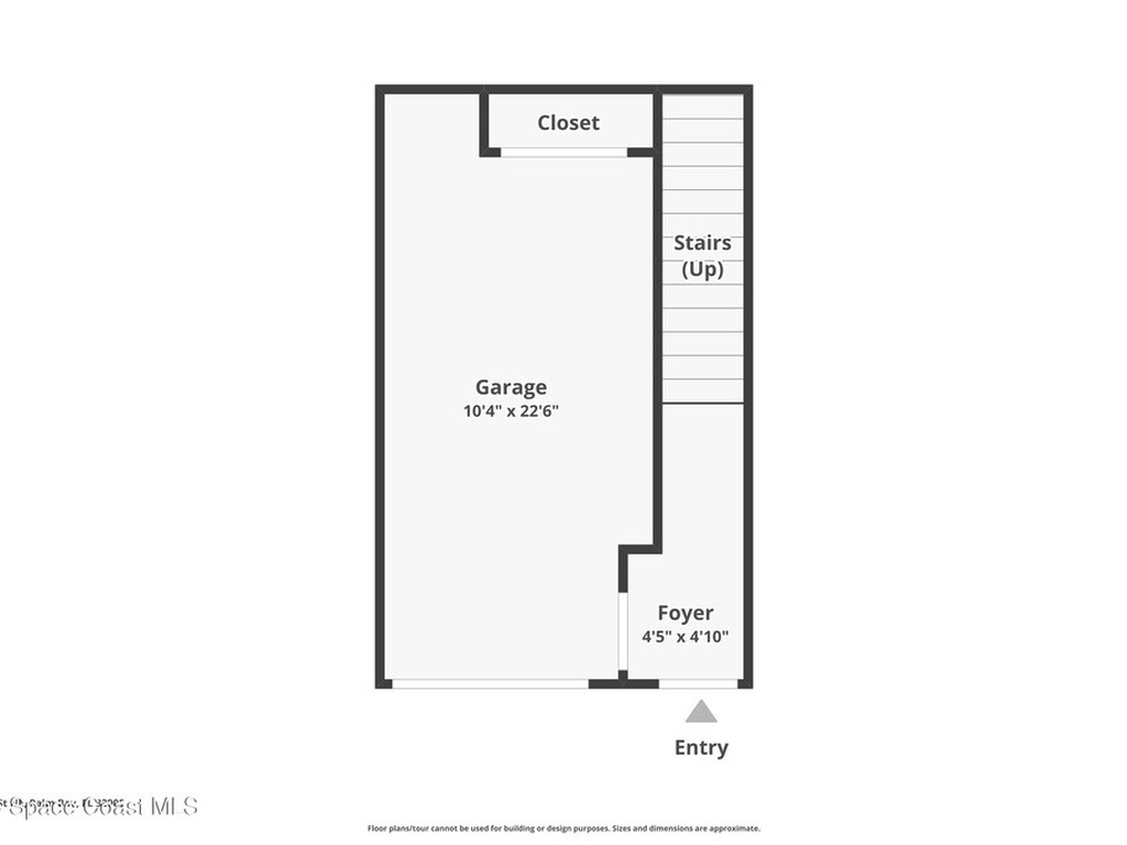
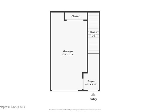
Discover Gardenia Fountains Apartments in Palm Bay! Brand-new 2025 construction featuring 30 thoughtfully designed units blending luxury, convenience, and coastal living--just 8 miles to the beach and 3 miles to I-95. Enjoy solid concrete construction, hurricane-impact windows, porcelain tile floors, and spacious layouts. Each home includes an attached 1-car garage with private driveway, covered front entry, and ground-floor 2BR units offer a covered back porch. Kitchens come fully equipped with stainless steel appliances: electric range, built-in microwave, refrigerator, dishwasher, plus washer/dryer. Energy-efficient systems and central A/C provide year-round comfort. Rent includes water, sewer, trash, and property taxes--no hidden fees! Gardenia Fountains: where elegance and peace of mind meet. Pet friendly.
Essential Information
Year Built: 2025
Price: $2,300
Property Type: Rental
Area: 1,208 sqft.
Country: USA
City: Palm Bay
Bedrooms: 3
Bathrooms: 2.00
Additional Property Info
Condo Unit Number: East
Equipment/Appliances: Dishwasher, Dryer, Electric Range, Microwave, Refrigerator and Washer