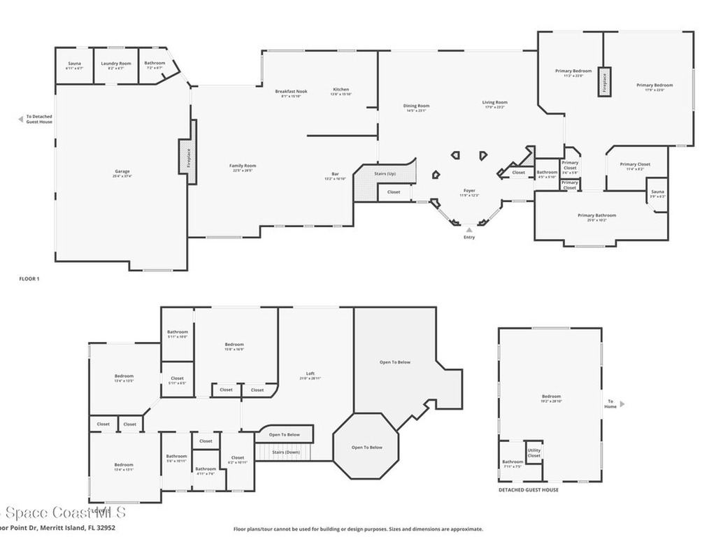
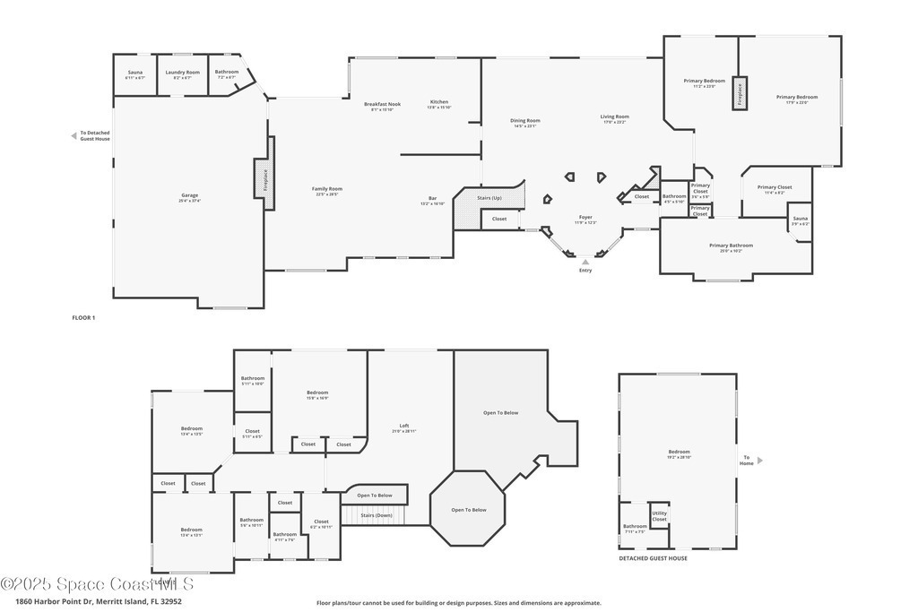
An extraordinary Space Coast luxury estate, completely reimagined in 2023 with lavish modern upgrades, offering the perfect blend of sophistication and coastal living. Set on 141 feet of elevated Intracoastal shoreline, this waterfront sanctuary delivers sweeping river views, with dolphins playing nearby, manatees gliding past, and spectacular rockets launching into the sky. Floor-to-ceiling impact glass fills the home with natural light and frames the ever-changing water scenery, seamlessly connecting indoor and outdoor living.At the heart of the home, a chef's gourmet kitchen features custom cabinetry, quartzite countertops, premium appliances, and designer lighting, flowing effortlessly into open-concept living and dining spaces. The primary suite is a true retreat, with a cozy sitting area, double-sided fireplace, spa-inspired bath with soaking tub, rain shower, and private sauna. Additional bedrooms are thoughtfully designed with elegant finishes and ample space for
See Listings by Area and Type