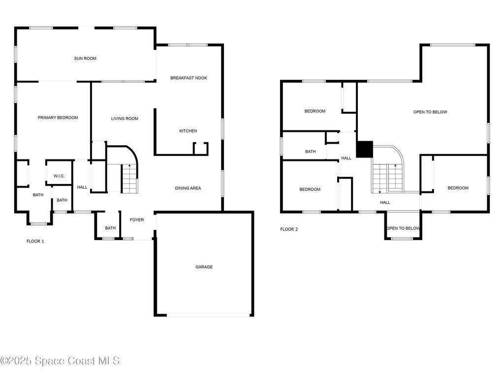
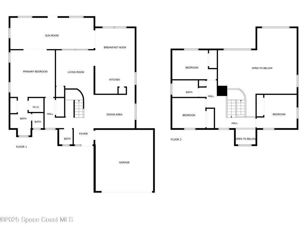
Great Bones in a Great Neighborhood! This charming 4-bedroom, 3-bath, 2-story home is ready for its next chapter. The inviting floor plan offers the primary suite on the main level, complete with a lovely en-suite for comfort and privacy. Enjoy an eat-in kitchen for casual meals, a formal dining room for special occasions, and a grand 2-story living room that's perfect for the holidays.Grab a drink and relax in the enclosed Florida room, ideal as an office, craft room, or simply a sunny retreat. Upstairs, you'll find three additional bedrooms and a full bath, offering plenty of space for family, guests, or hobbies.Outdoors, the backyard is a true gem with avocado and mango trees, and the side yard provides the perfect spot to add a refreshing pool. Nestled in a sought-after neighborhood, you'll be close to dining, shopping, and all of Orlando's world-class attractions.With its solid structure and timeless layout, this home is just waiting for your personal touch to make it your
Essential Information
Year Built: 1995
Price: $349,000
Property Type: Residential
Area: 2,219 sqft.
Country: USA
City: Kissimmee
Bedrooms: 4
Bathrooms: 3.00
Additional Property Info
Assoc/HOA Contact: Association Poinciana Village
Association Fee Included: Cable TV, Internet and Trash
Community Fees: No
Construction: Concrete and Stucco
Cooling: Central Air
Dwelling View: Trees/Woods
Equipment/Appliances: Dishwasher, Electric Cooktop, Electric Oven, Electric Water Heater and Refrigerator
Floor: Carpet and Tile
Furnished: Unfurnished
Heat: Electric
Interior Features: Ceiling Fan(s), Eat-in Kitchen, Primary Bathroom - Shower No Tub, Skylight(s) and Walk-In Closet(s)
List Price/SqFt: $157.28 / sqft
Listing ID: 1055750
Listing Status: Active
Lot Description: Cleared and Few Trees
Lot SqFt: 8,276.40 sqft
Parking: Garage and Garage Door Opener
Pet Restrictions: Yes
Pets: Yes
Pool: No
Possession: Close Of Escrow
Private Pool: No
Property Type: Residential
Residential Sub-Type: Single Family Residence
Road Surface: Asphalt
Roof: Shingle
Rooms: Bathroom 2, Bedroom 2, Bedroom 3, Bedroom 4, Dining Room, Kitchen, Living Room, Primary Bathroom and Primary Bedroom
Showing: Call Listing Agent,Combination Lock Box,Showing Service