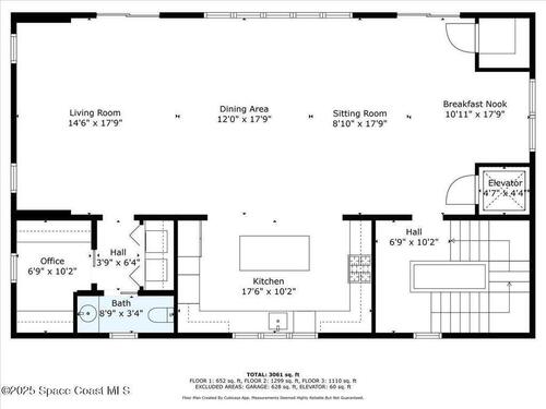
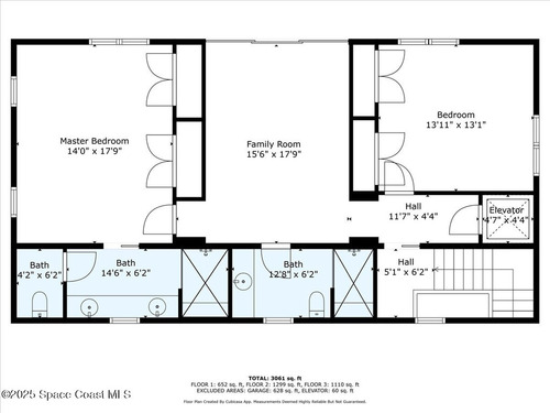
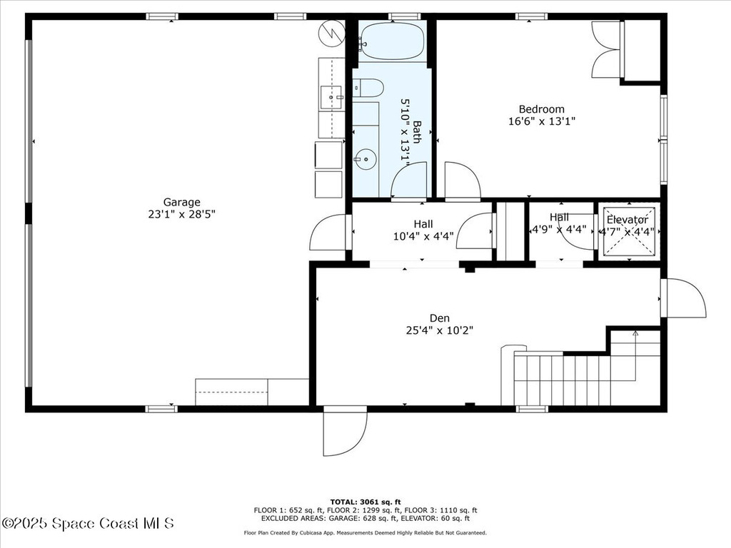
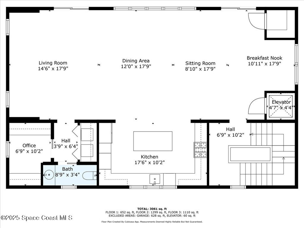
Spend your days where Florida's wild beauty meets refined coastal living. This impeccably maintained three-story oceanfront residence, gracefully set between the Atlantic Ocean and the heart of Melbourne Beach, offers a rare blend of privacy, natural wonder and modern elegance. Wake to sunrise over the Atlantic on a quiet stretch of shoreline with direct private access to uncrowded beaches, perfect for morning walks or surfing just steps from your door. The community is known for its laid-back coastal charm, A-rated schools and family-friendly atmosphere, making it ideal for both full-time living and a vacation retreat. Inside, traditional architectural style meets luxury with hurricane impact windows and doors, rich real wood flooring throughout, sun-filled living spaces and a chef's kitchen featuring Wolf stainless steel appliances for entertaining. Expansive oceanfront balconies provide the perfect vantage point for rocket launches, star-gazing or simply soaking in the salt air.
Essential Information
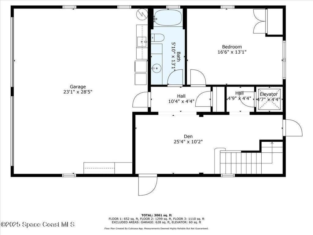
Year Built: 2020
Price: $4,250,000
Property Type: Residential
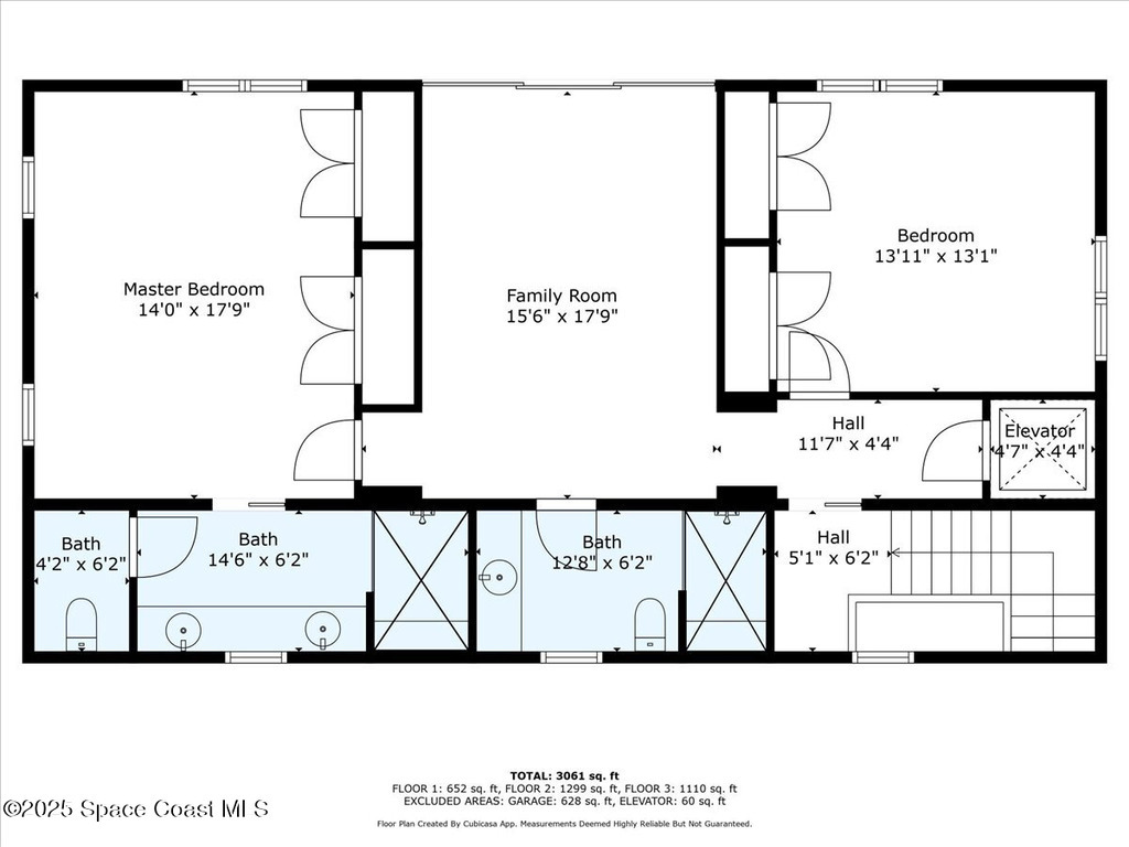
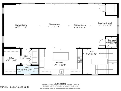
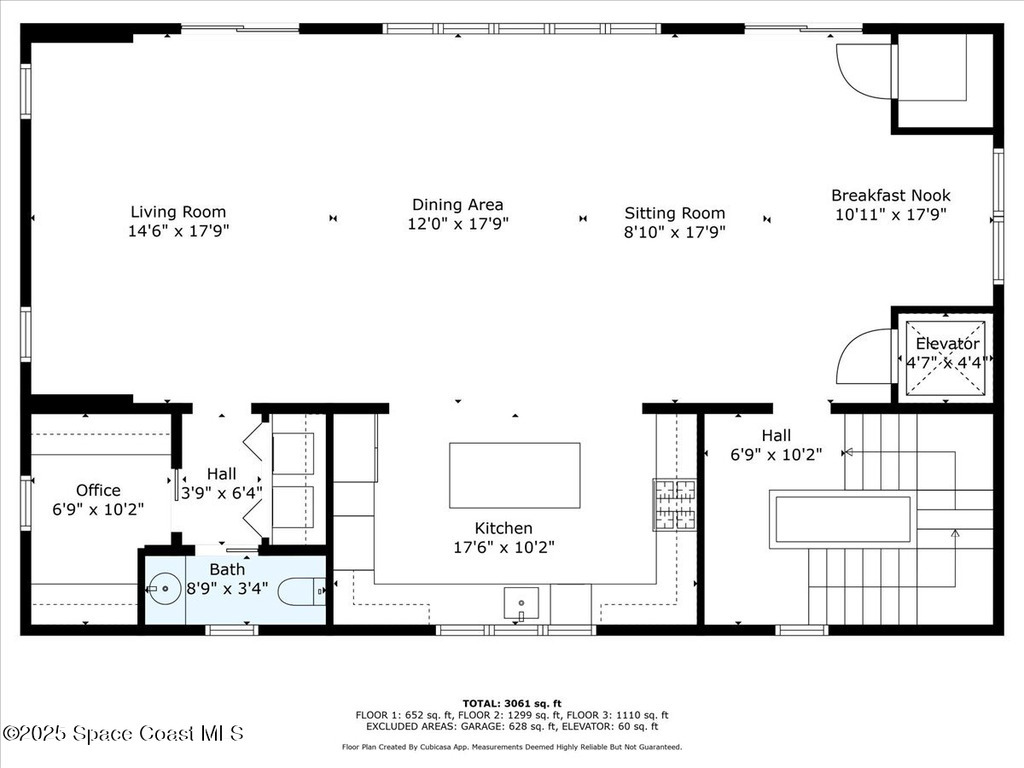
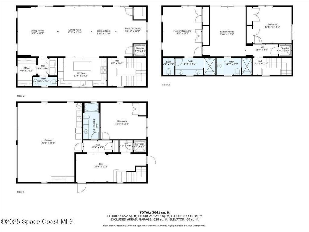
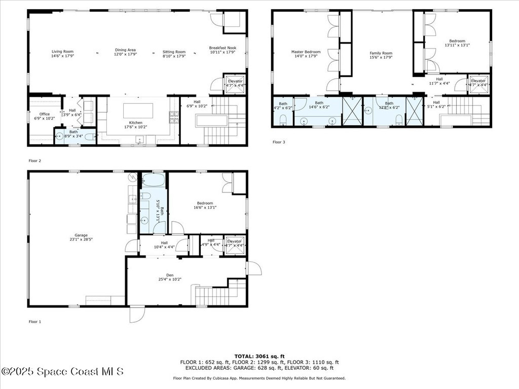
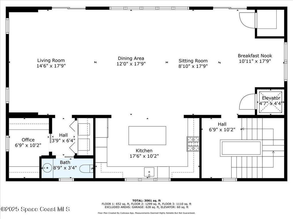
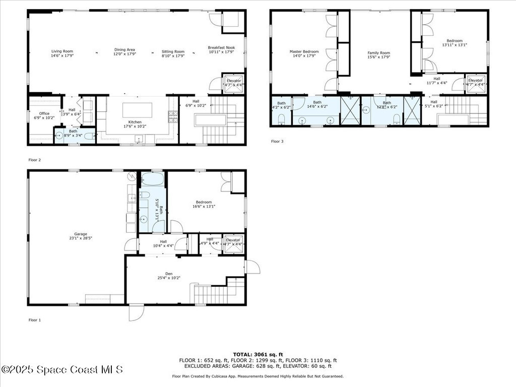
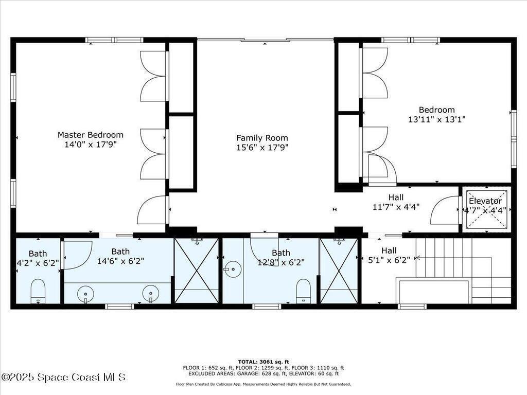
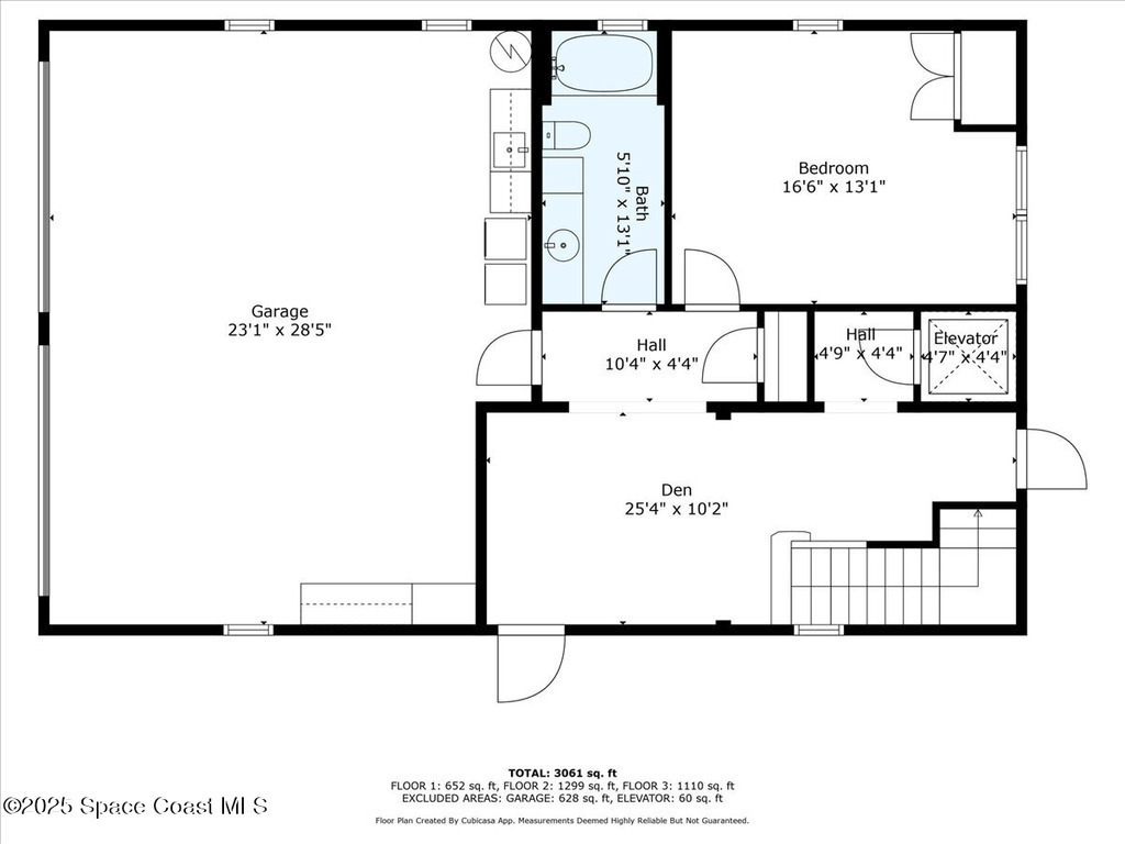
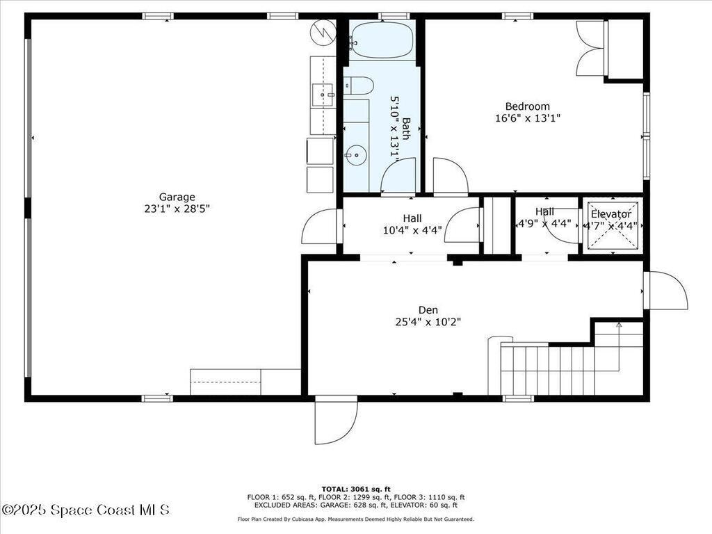
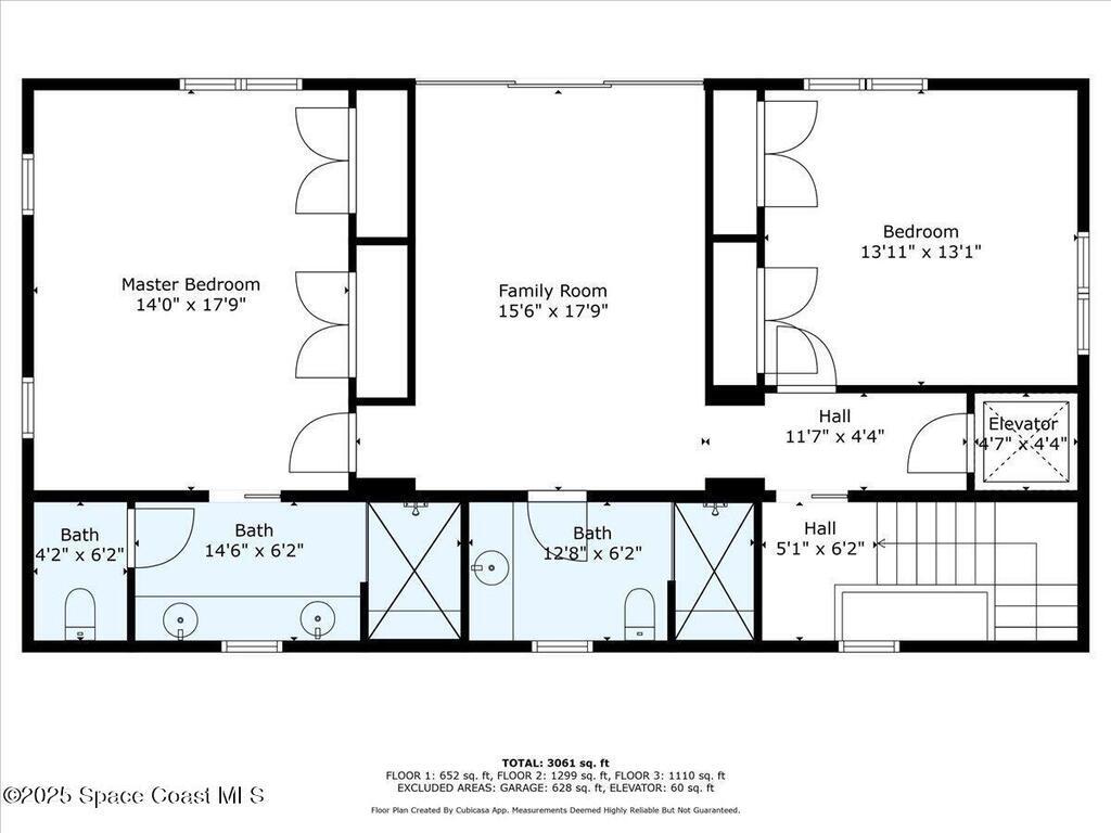
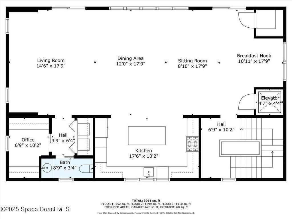
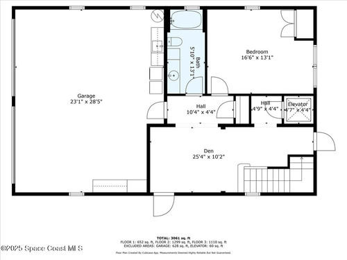
Area: 3,420 sqft.
Country: USA
City: Melbourne Beach
Bedrooms: 3
Bathrooms: 4.00
Additional Property Info
Community Fees: No
Construction: Block, Concrete and Stucco
Cooling: Central Air and Electric
Dwelling View: Beach, Ocean and Water
Equipment/Appliances: Convection Oven, Dishwasher, Disposal, Electric Oven, Electric Water Heater, ENERGY STAR Qualified Dishwasher, ENERGY STAR Qualified Refrigerator, ENERGY STAR Qualified Water Heater, Gas Cooktop, Microwave and Refrigerator
Exterior Features: Outdoor Shower
Floor: Wood
Furnished: Furnished
Heat: Central and Electric
Interior Features: Breakfast Bar, Built-in Features, Ceiling Fan(s), Elevator, Entrance Foyer, His and Hers Closets, Kitchen Island, Open Floorplan, Primary Bathroom - Shower No Tub, Smart Thermostat, Split Bedrooms and Vaulted Ceiling(s)
Land Site Description: waterfront
List Price/SqFt: $1,242.69 / sqft
Listing ID: 1056621
Listing Status: Active
Lot Description: Sprinklers In Front and Sprinklers In Rear
Lot Dimensions: 90 x 200
Lot SqFt: 25,700 sqft
Parking: Garage and Garage Door Opener
Pet Restrictions: Yes
Pets: Yes
Pool: No
Possession: Close Of Escrow
Private Pool: No
Property Type: Residential
Rental Restrictions: 3 Months
Residential Sub-Type: Single Family Residence
Road Surface: Asphalt
Roof: Metal
Security/Safety: Security System Owned
Showing: Listing Agent Must Accompany,Showing Service