Experience breathtaking views, sunrises, launches, fireworks & boat parades like never before from your balcony over-looking the Indian River. This 2 bedroom/2 bath waterfront condo is move-in ready. Unit has been smartly updated including a complete kitchen remodel within the last 2 years with all new stainless steel appliances, granite countertops, soft-close wood cabinets, & tile backsplash. Other updates include a shiplap accent wall in the living area, new vinyl plank flooring & fresh paint throughout. HVAC replaced in 2018.Excellent condo management has resulted in a completed SIRS and full financial reserves! Specials assessment has already been paid in full by the Seller. Resort-style amenities include: heated pool, spa, riverside boardwalk fitness center, sauna, tennis/basketball/pickleball court, club room with pool table, library and kitchen. This active community is ready to welcome you to this riverside paradise!
Essential Information
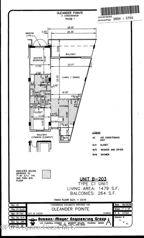
Year Built: 1998
Price: $528,750
Property Type: Residential
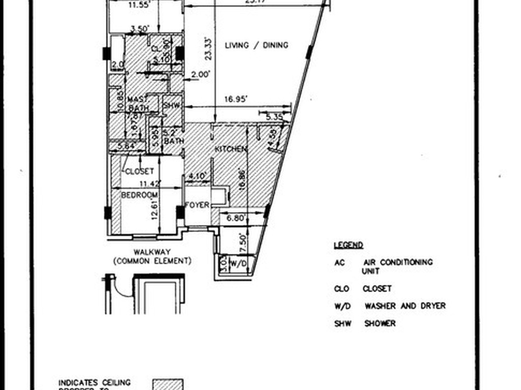
Area: 1,479 sqft.
Country: USA
City: Cocoa
Bedrooms: 2
Bathrooms: 2.00
Additional Property Info
Assoc/HOA Contact: Oleander Pointe c/o BP Davis Property Management
Association Fee Included: Cable TV, Insurance, Internet, Maintenance Grounds, Maintenance Structure, Pest Control, Sewer, Trash and Water
Community Fees: No
Construction: Block, Concrete and Stucco
Cooling: Central Air and Electric
Dwelling View: Intracoastal, Marina, Pool, River and Water
Equipment/Appliances: Dishwasher, Disposal, Dryer, Electric Range, Microwave, Refrigerator and Washer
Exterior Features: Balcony
Floor: Vinyl
Furnished: Unfurnished
Heat: Central and Electric
Interior Features: Ceiling Fan(s), Open Floorplan, Pantry and Primary Bathroom -Tub with Separate Shower
List Price/SqFt: $357.51 / sqft
Listing ID: 1056768
Listing Status: Active
Lot Description: Historic Area
Lot SqFt: 1,307 sqft
Parking: Assigned, Attached, Garage, Garage Door Opener and Guest
Pet Restrictions: Number Limit, Size Limit and Yes
Pets: Number Limit, Size Limit and Yes
Pool: No
Possession: Close Of Escrow
Private Pool: No
Property Type: Residential
Rental Restrictions: 1 Year
Residential Sub-Type: Condo
Security/Safety: Fire Alarm, Fire Sprinkler System, Secured Elevator, Secured Lobby and Smoke Detector(s)
Showing: Appointment Only,No Sign,Showing Service
Sold Terms Code: Cash,Conventional,FHA,VA Loan
SqFt - Living: 1,479 sqft
State/Province: FL
Status: Active
Status Change Date: Wednesday, September 10th, 2025