Experience the ultimate in oceanfront living with this rare coastal gem, completely renovated in June 2025, on Melbourne's private beaches. Set on .57 acres with 100 feet of direct ocean frontage, it offers privacy, space, and breathtaking Atlantic views. Watch sea turtles nest from your front yard and soak in the natural beauty. Just minutes from A-rated schools and boutique shopping, this location blends convenience with coastal charm. Inside, enjoy new porcelain floors, maple stair treads, fresh interior and exterior paint including railings, and a finished garage floor. Additional upgrades include new interior doors, light fixtures, vanities with quartz countertops, all-new showers, closet shelving, outlets, switches, a new water heater, water filtration system, and a freshly painted crossover. Roof and impact-rated windows/doors were replaced in 2017. A move-in-ready retreat where luxury meets nature beachfront living at its best.
Essential Information
Year Built: 1992
Price: $3,445,000
Property Type: Residential
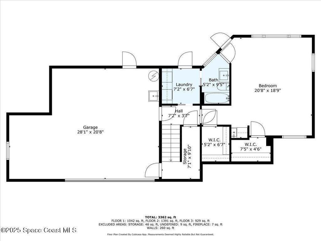
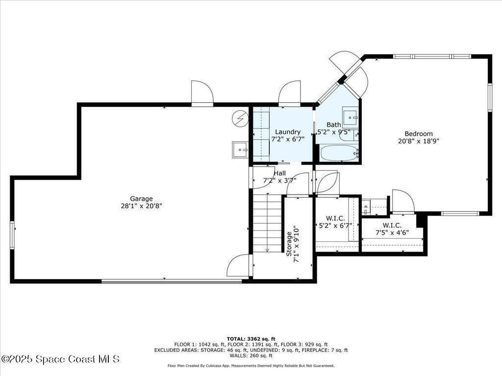
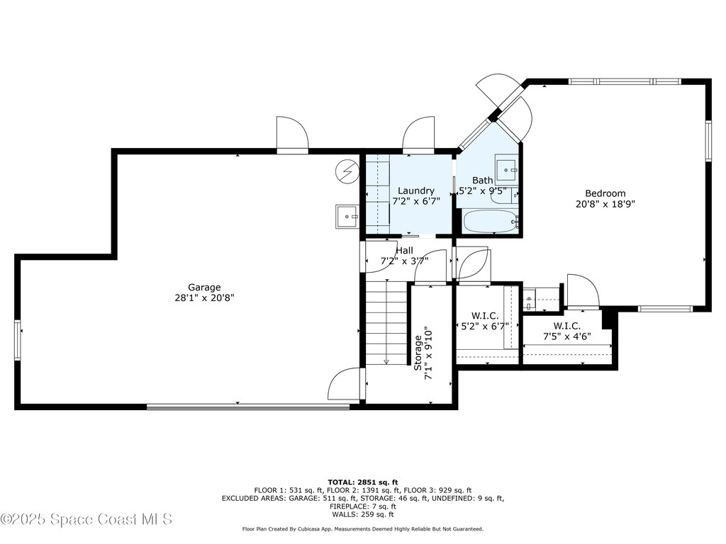
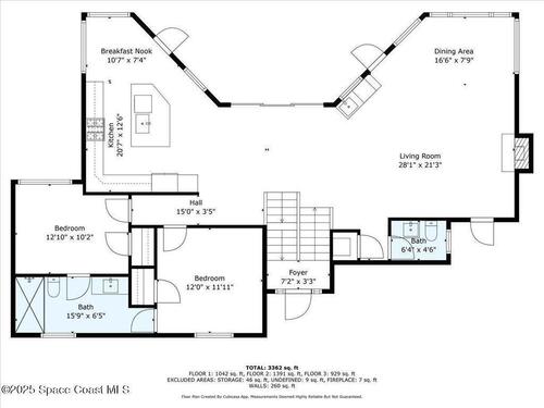
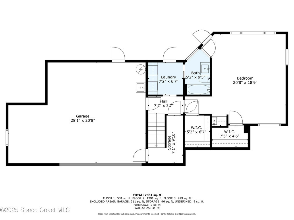
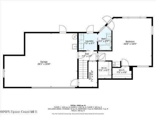
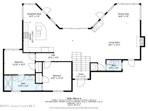
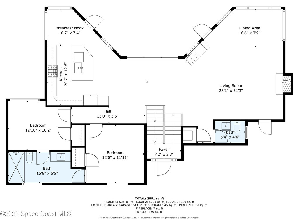
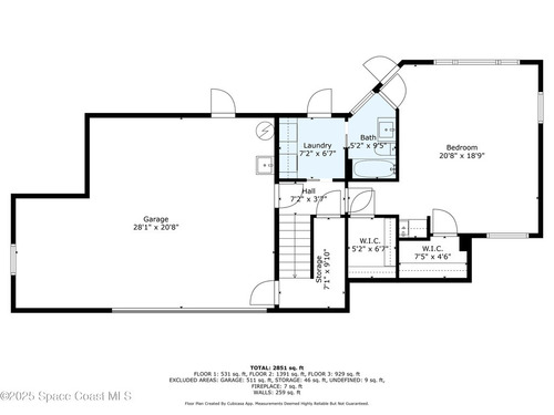
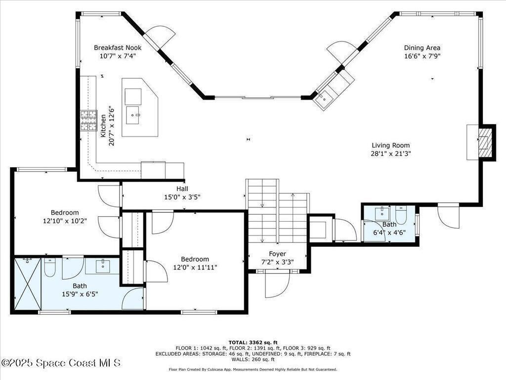
Area: 3,195 sqft.
Country: USA
City: Melbourne Beach
Bedrooms: 4
Bathrooms: 4.00
Additional Property Info
Community Fees: No
Construction: Block, Frame and Stucco
Cooling: Central Air and Electric
Dwelling View: Beach, Ocean and Water
Equipment/Appliances: Disposal, ENERGY STAR Qualified Dishwasher, ENERGY STAR Qualified Dryer, ENERGY STAR Qualified Washer, Gas Range, Microwave, Refrigerator, Washer/Dryer Stacked, Water Softener Owned and Wine Cooler
Exterior Features: Balcony, Impact Windows and Outdoor Shower
Fireplace: Other
Floor: Tile
Furnished: Furnished
Green Energy Feature: Windows
Heat: Central and Electric
Interior Features: Ceiling Fan(s), Central Vacuum, Eat-in Kitchen, Jack and Jill Bath, Kitchen Island, Open Floorplan, Primary Bathroom -Tub with Separate Shower, Split Bedrooms, Walk-In Closet(s) and Wet Bar
List Price/SqFt: $1,078.25 / sqft
Listing ID: 1057749
Listing Status: Active
Lot Description: Sprinklers In Front and Sprinklers In Rear
Lot SqFt: 24,829 sqft
Parking: Garage and Garage Door Opener
Pet Restrictions: Yes
Pets: Yes
Pool: No
Possession: Close Of Escrow
Private Pool: No
Property Type: Residential
Rental Restrictions: 3 Months
Residential Sub-Type: Single Family Residence
Road Surface: Asphalt
Roof: Metal
Security/Safety: Smoke Detector(s)
Showing: Appointment Only,Showing Service
Sold Terms Code: Cash,Conventional
SqFt - Living: 3,195 sqft
State/Province: FL
Status: Active
Status Change Date: Monday, September 22nd, 2025
Street Direction: S
Street Name: Highway A1a
Street Number: 7155
Style: Mid-Century Modern
Subdivision: None
Tax Year: 2024
Taxes: $13,058.70
Total Garage Spaces: 2
Utilities: Cable Connected, Electricity Connected, Propane and Water Connected