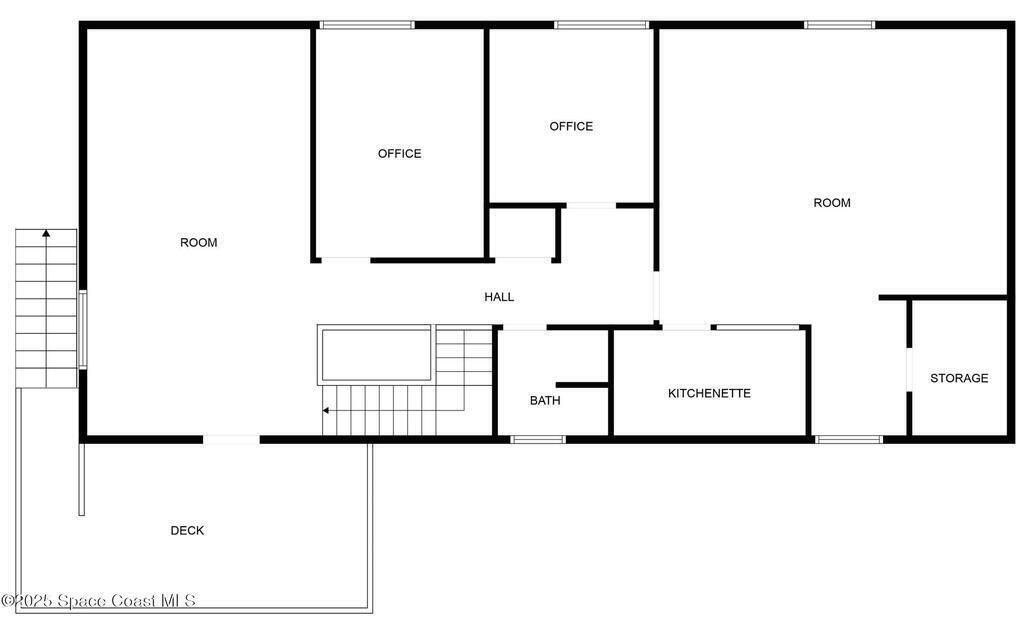
We are pleased to present a move-in ready office space for lease in vibrant Indialantic, Florida. Just one street from 5th Ave (US-192), a street lined with businesses and some of the best local shops and eateries Brevard County has to offer and just 2 miles over the causeway from Historic Downtown Melbourne. This meticulously maintained property offers a well-appointed facade, 2 entries, and tons of parking. The 2nd floor unit is 1,534 sf and features 2 private offices, 2 open work areas, a patio deck, kitchenette, 1 bathroom with shower, large storage/IT closet, furnishings and skylights for lots of natural light! Check it out!
Essential Information
Year Built: 1953
Price: $2,429
Property Type: Commercial
Country: USA
City: Indialantic
Bathrooms: 1.00
Additional Property Info
Acres: 0.23 acres
Additional Available Space: 2
Date Available: Wednesday, September 24th, 2025
Listing ID: 1057991
Listing Status: Active
Number Bathrooms: 1.00
Pass Thru Per/Month =: 1534.00
Property Type: Commercial
Real Estate Taxes: $6,316.96
SqFt - Total: 1,534 sqft
State/Province: FL
Status: Active
Status Change Date: Wednesday, September 24th, 2025