Charming Pool Home Near the Coast! Concession offered for pool resurface.Located in a quaint neighborhood just 2 miles from the ocean and close to shopping and dining, this delightful home offers both convenience and comfort. The upgraded kitchen features modern appliances, perfect for home chefs, a quality washer/dryer while the newer roof and A/C provide peace of mind.Enjoy year-round outdoor living in the fully screened-in pool area complete with a relaxing jacuzzi, all within a private, fenced-in backyard--ideal for entertaining or quiet evenings at home. With just a touch of TLC, this home has the potential to be the perfect haven for any family!This property has just come out of probate and is being sold as-is. The seller will not be making any repairs but may consider reasonable concessions if warranted.
Essential Information
Year Built: 1954
Price: $305,000
Property Type: Residential
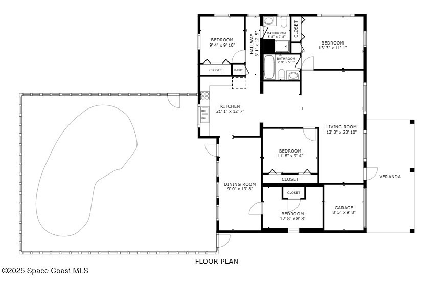
Area: 1,254 sqft.
Country: USA
City: Vero Beach
Bedrooms: 4
Bathrooms: 2.00
Additional Property Info
Community Fees: No
Construction: Block, Concrete and Stucco
Cooling: Central Air
Equipment/Appliances: Dishwasher, Dryer, Electric Range, Microwave, Refrigerator and Washer
Floor: Laminate and Tile
Furnished: Unfurnished
Heat: Central
List Price/SqFt: $243.22 / sqft
Listing ID: 1058937
Listing Status: Active
Lot Description: Other
Lot Dimensions: 75.0 ft x 130.0 ft
Lot SqFt: 9,583 sqft
Parking: Attached and Garage
Pool: Yes
Pool Features: In Ground and Screen Enclosure
Possession: Close Of Escrow
Private Pool: Yes
Property Type: Residential
Residential Sub-Type: Single Family Residence
Road Surface: Asphalt
Roof: Shingle
Rooms: Bedroom 2, Bedroom 3, Bedroom 4, Dining Room, Kitchen, Living Room and Primary Bedroom