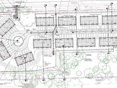
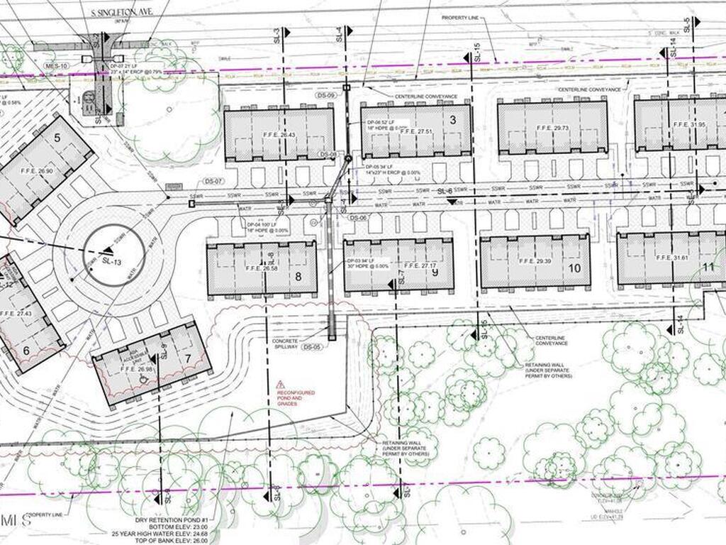
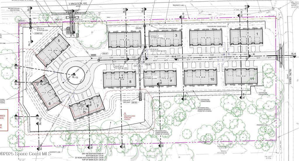
Approved for 44 multifamily condo units! Demand for housing continues to expand in the Titusville and surrounding areas. Units are 3 bedroom, 2.5 bath, 1 car garage appealing to both end-users and investors. Units are arranged in 11 buildings of 4 units each in a townhouse-style format, and were designed to be able to build to scale the site as desired. Ideally situated in Titusville, FL, near the Indian River, Kennedy Space Center, and SpaceX launch facilities. Titusville is experiencing increased demand due to the resurgence of the space industry and continued population growth. Excellent resale or rental prospects with demand from aerospace professionals and retires.