Thoughtfully maintained by its original family, this Port St. John gem offers modern updates with meaningful care. The brand-new roof, newer AC, updated vinyl plank flooring, and refreshed kitchen appliances provide peace of mind and immediate livability. A spacious primary suite with double sinks and soaking tub brings comfort, while high ceilings and open living areas create an easy sense of flow. The formal living and dining rooms deliver flexibility for entertaining or quiet evenings. Tucked at the end of a well-established street, this home also features a sprinkler system, generous closets, and full laundry. Designed for easy living with updated systems and timeless layout integrity. W/D and dining set may convey. This is the kind of home that reflects pride, not just price. Don't delay! Schedule your exclusive showing today!
Essential Information
Year Built: 2008
Price: $380,000
Property Type: Residential
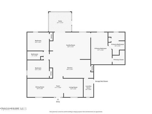
Area: 2,000 sqft.
Country: USA
City: Cocoa
Bedrooms: 3
Bathrooms: 2.00
Additional Property Info
Assoc/HOA Contact: Cypress Woods
Association Fee Included: Maintenance Grounds
Community Fees: No
Construction: Concrete
Cooling: Central Air and Electric
Dwelling View: Trees/Woods
Equipment/Appliances: Dishwasher, Electric Range and Refrigerator
Exterior Features: Storm Shutters
Floor: Laminate and Tile
Furnished: Unfurnished
Heat: Central and Electric
Interior Features: Breakfast Bar, Ceiling Fan(s), Eat-in Kitchen, Kitchen Island, Pantry, Primary Bathroom - Shower No Tub and Walk-In Closet(s)
List Price/SqFt: $190 / sqft
Listing ID: 1060123
Listing Status: Active
Lot Description: Dead End Street, Many Trees, Sprinklers In Front, Sprinklers In Rear and Wooded
Lot SqFt: 8,276 sqft
Parking: Additional Parking, Garage and Garage Door Opener