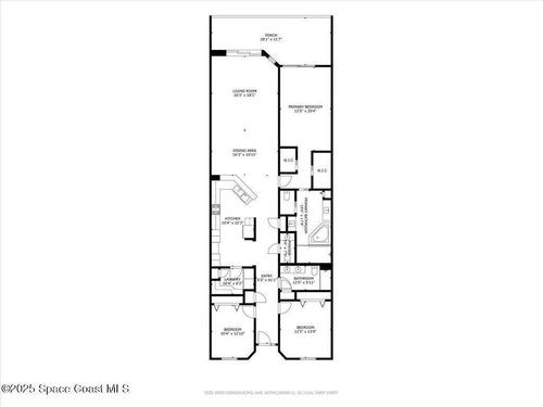
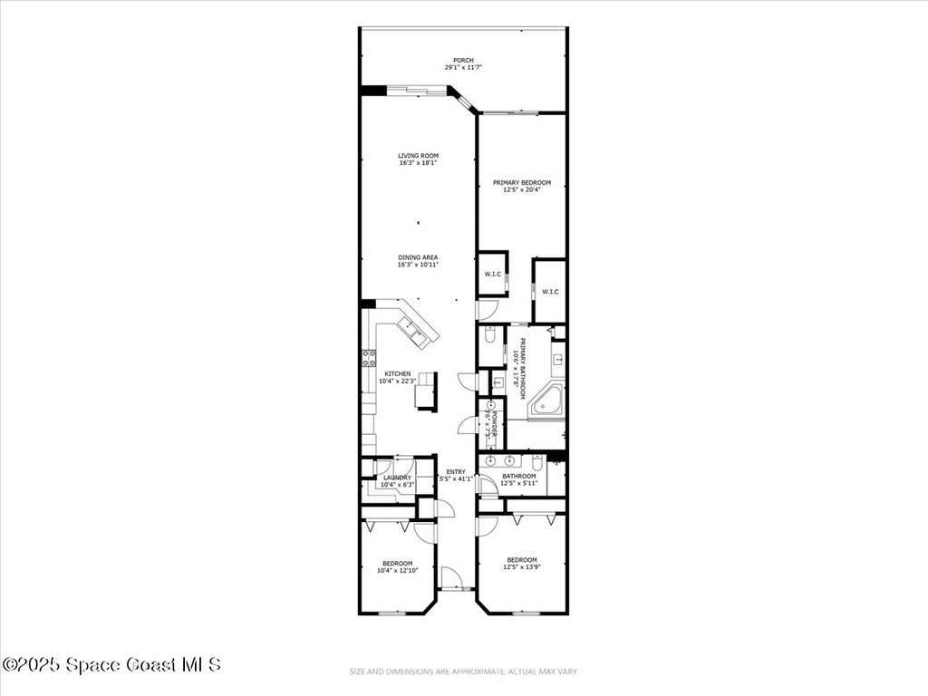
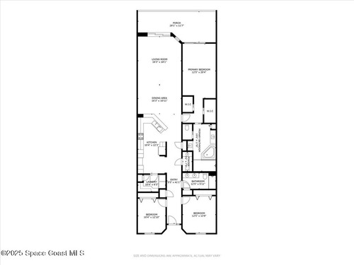
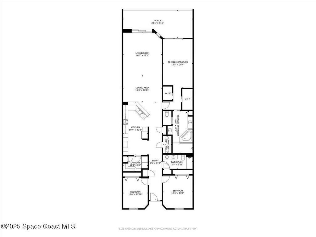
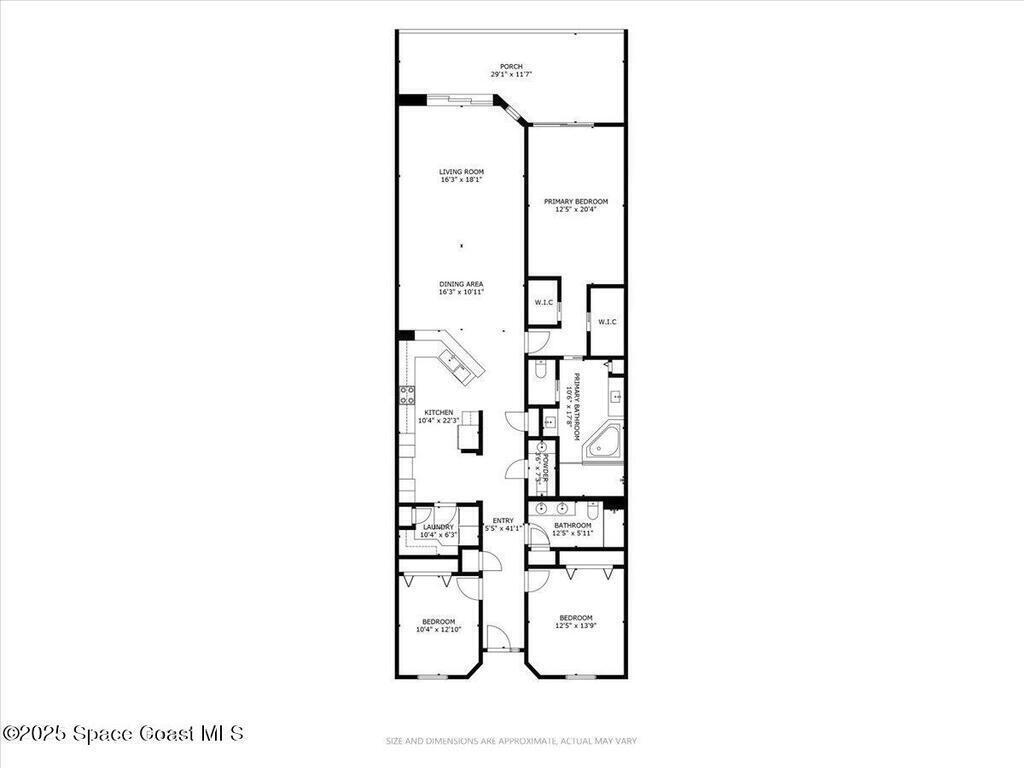
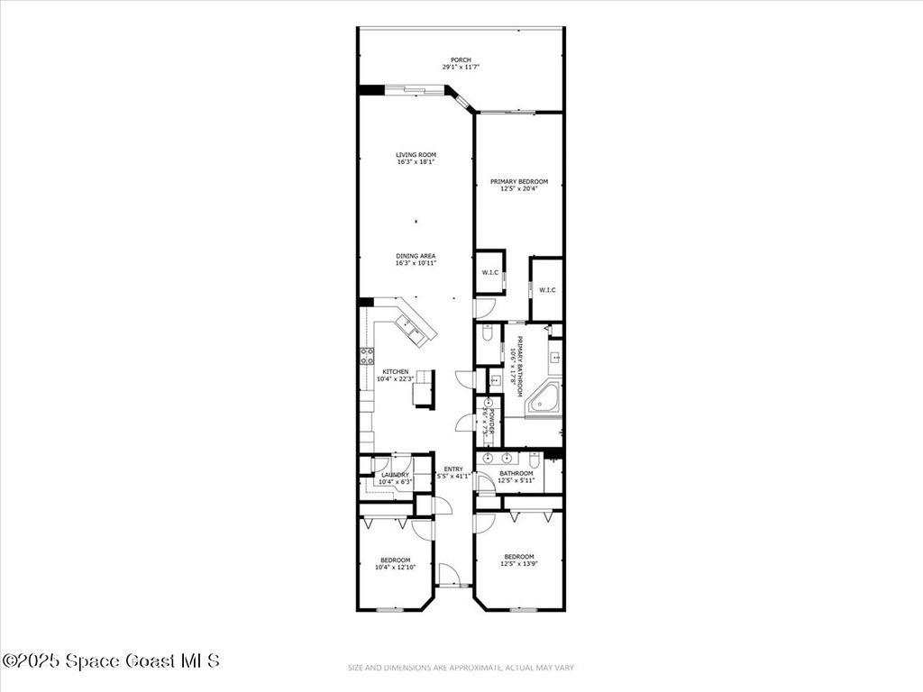
Be sure to include this updated Laguna Vista condo on your ''Must See List'! Move-in ready and beautifully maintained, convenient first-floor riverfront unit is located on the South side of the building and includes a private oversized two-car garage on the same side for easy access. This spacious condo features 3 bedrooms, 2.5 bathrooms, and an open floor plan with high ceilings. Tile flooring runs throughout the main living areas, with carpet in the bedrooms for added comfort. The utility room includes a washer, dryer, and utility sink for convenience. Step out to the tiled, covered back porch - complete with a gate that provides direct access to the pool, spa, and dock area, perfect for swimming, relaxing, or fishing, etc. Take in the stunning sunrise views over the Intracoastal River and enjoy watching rocket launches to the North right from your own backyard! The updated kitchen is truly impressive, featuring abundant cabinetry, stainless steel appliances, and modern finishes.
See Listings by Area and Type