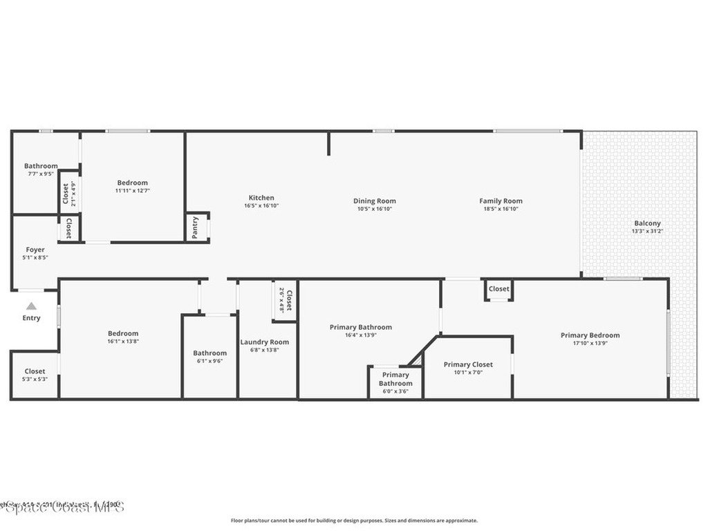
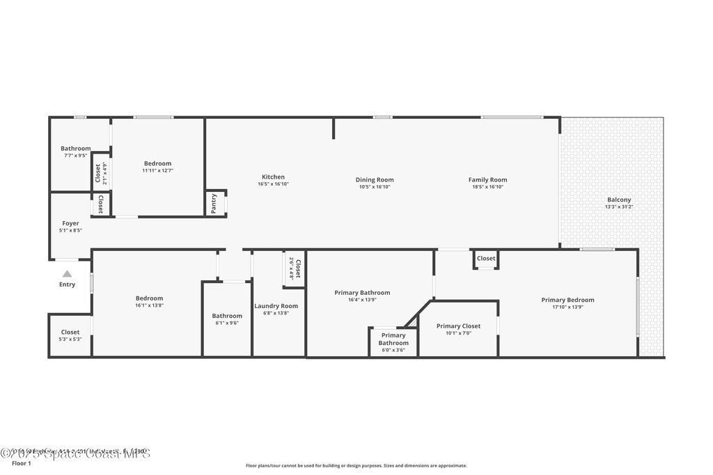
Built in 2022, this NE-corner condo delivers a modern beachfront lifestyle with unobstructed views of the ocean & rocket launches. Elevated 10' ceilings & floor-to-ceiling glass frame the horizon, while sliding doors open to a nearly 300 sq ft terrace that blurs the line between indoors & out. High-end finishes define every space, from custom cabinetry, quartz counters & stainless appliances in the kitchen to the custom bar/buffet at dining, built-in media center, window treatments & closet systems. Impact-rated glass, 1 3/4 solid core interior doors & concrete block walls provide peace of mind, complemented by fire sprinkler protection for safety. Community amenities elevate every day with a clubhouse, fitness facility, heated pool, hot tub & putting green. Blending sleek style with coastal ease, this residence is designed for both comfort & connection, offering an unmatched opportunity to embrace oceanfront living at its most effortless.
See Listings by Area and Type