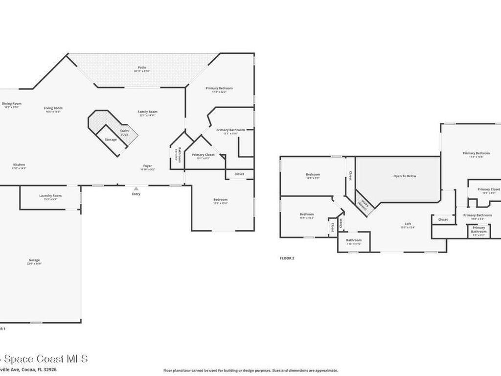
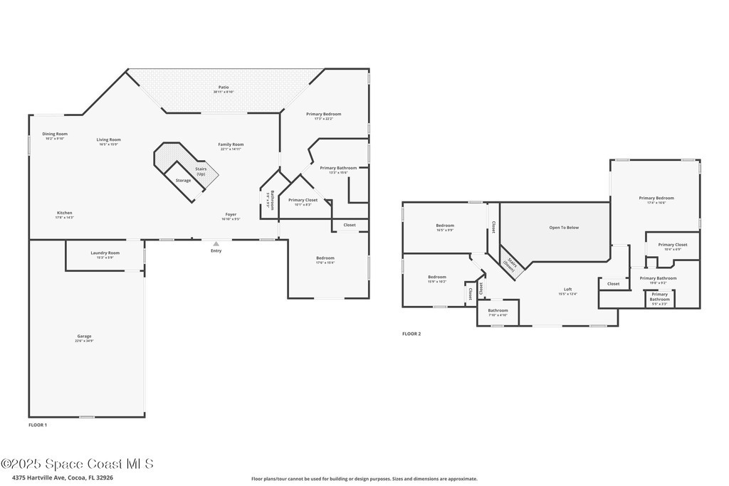
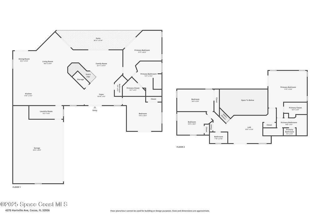
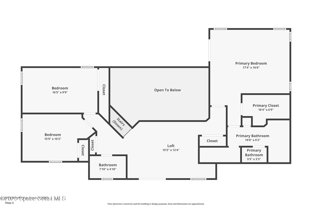
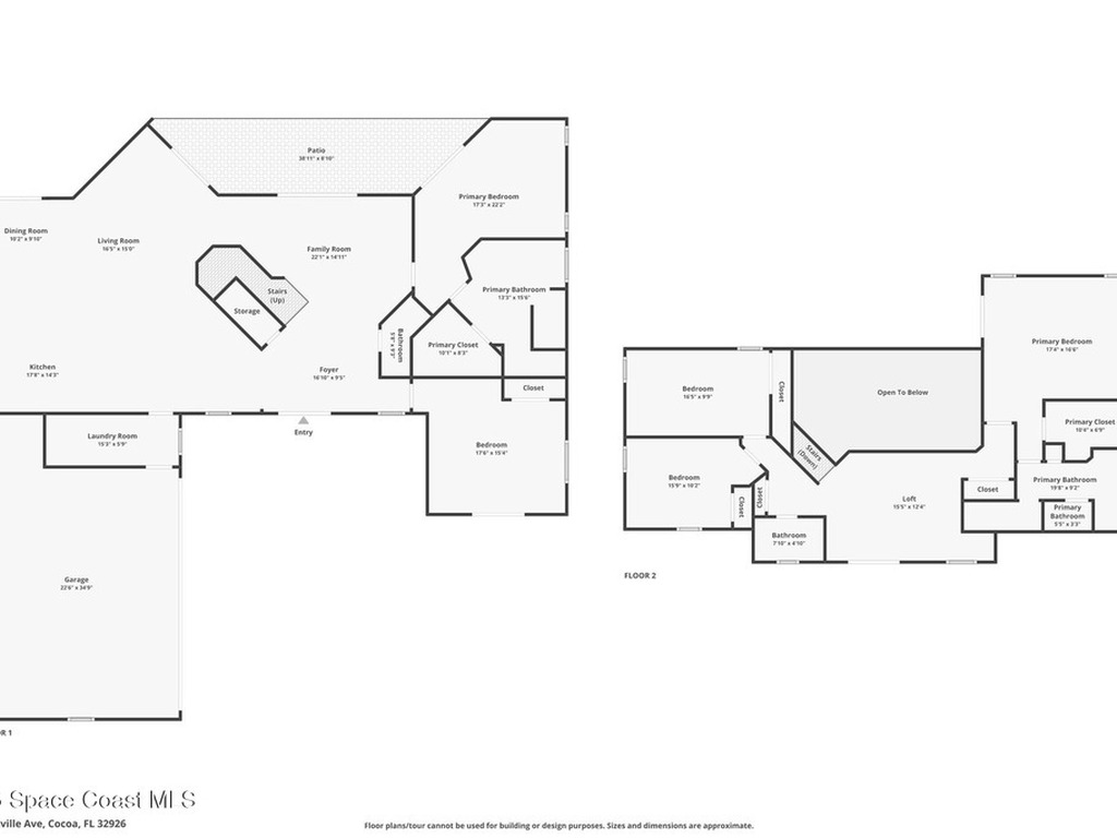
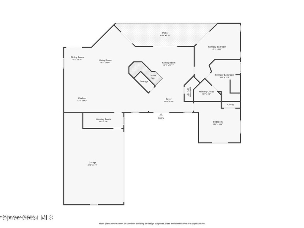
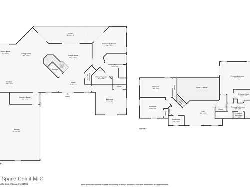
Welcome to your own Cocoa sanctuary-a ONE-ACRE blend of style, space, and pure Florida freedom! This isn't just a home, it's a lifestyle. Featuring 5 bedrooms (including 2 master suites), 3 full baths, and 2 half baths, this custom estate is built to impress. Inside, vaulted ceilings and an open layout with tile and carpet flooring set the tone for effortless living. The entertainer's dream kitchen shines with granite countertops, breakfast bar, wine cooler, ice maker, and bar fridge. Step outside to your private inground pool, framed by a wood fence for total privacy. The 25x35 workshop with 10' ceilings, 100-amp electric, and A/C is the ultimate creative retreat. Next level perks include central vac, smart thermostat, smart doorbell, surround sound, and manual awnings. Watch rockets light up the sky and live minutes from I-95, beaches, and boundless adventure!
Essential Information
Year Built: 2005
Price: $699,900
Property Type: Residential
Area: 3,698 sqft.
Country: USA
City: Cocoa
Bedrooms: 5
Bathrooms: 5.00
Additional Property Info
Community Fees: No
Construction: Block, Concrete and Stucco
Contingent: Active Under Contract
Cooling: Central Air and Electric
Dwelling View: Pool and Trees/Woods
Equipment/Appliances: Dishwasher, Electric Cooktop, Electric Oven, Electric Water Heater, Microwave, Refrigerator and Wine Cooler
Exterior Features: Balcony and Outdoor Shower
Floor: Tile
Furnished: Unfurnished
Heat: Central and Electric
Interior Features: Breakfast Bar, Built-in Features, Ceiling Fan(s), Eat-in Kitchen, Entrance Foyer, Guest Suite, Open Floorplan, Pantry, Primary Bathroom -Tub with Separate Shower, Split Bedrooms, Vaulted Ceiling(s) and Walk-In Closet(s)
List Price/SqFt: $189.26 / sqft
Listing ID: 1061529
Listing Status: Active Under Contract
Lot Description: Cleared, Corner Lot, Many Trees, Sprinklers In Front and Sprinklers In Rear
Lot SqFt: 43,560 sqft
Parking: Attached, Detached, Garage, Garage Door Opener and RV Access/Parking