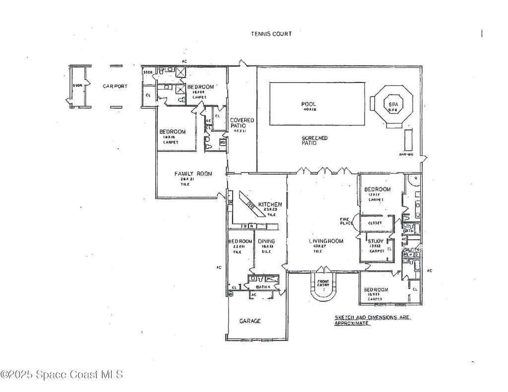
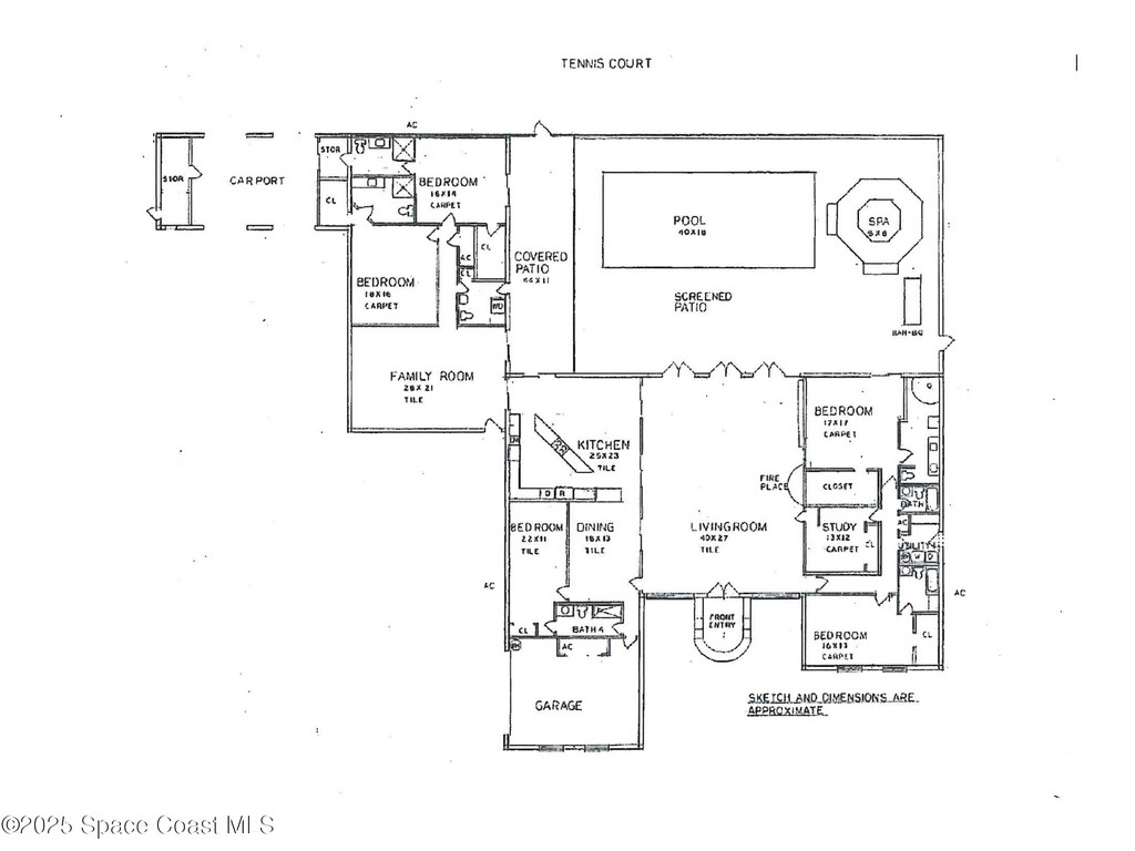
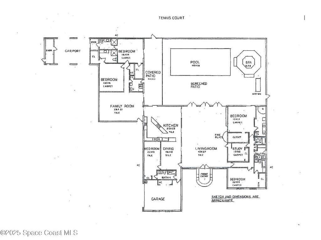
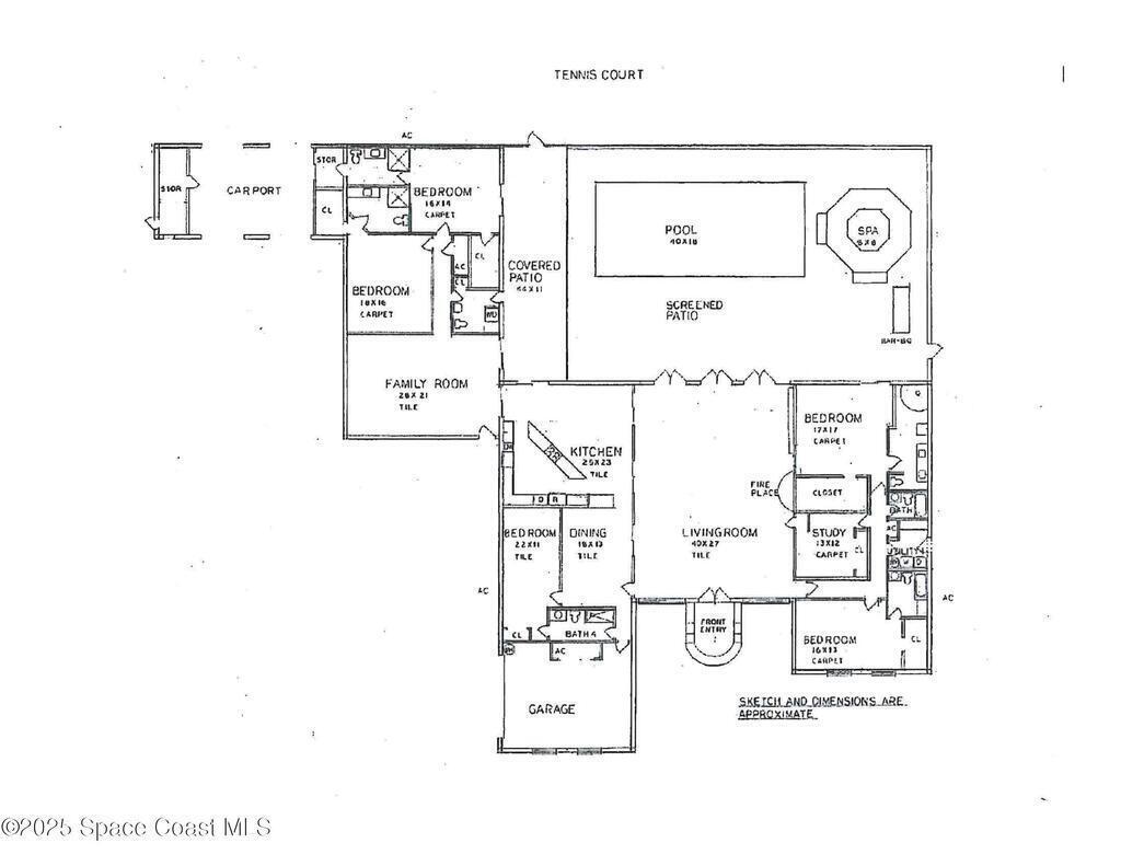
Nestled within a unique gated community in the heart of Melbourne, this 2.46-acre estate offers a spacious, multigenerational home designed to accommodate multiple families. Enjoy a game of tennis on your private court, cool off in the 18x40 pool, or relax in the spa (note: spa leaks) on your private screened patio. The 40x27 living room features a fireplace and wet bar, opening to the screened pool area for seamless entertaining. Children can enjoy TV time in the 28x21 family room located on the opposite side of the house. The three-way split floor plan, with separate entrances, hosts five primary suites and a study, providing room and privacy for family, extended family, and guests. The eat-in kitchen (25x23) and formal dining room (18x13) are perfect for family meals and entertaining.
Essential Information
Year Built: 1978
Price: $1,050,000
Property Type: Residential
Area: 5,745 sqft.
Country: USA
City: Melbourne
Bedrooms: 5
Bathrooms: 7.00
Additional Property Info
Assoc/HOA Contact: Villa Espana Association
Community Fees: No
Construction: Block, Concrete and Stucco
Cooling: Central Air and Electric
Equipment/Appliances: Dishwasher, Disposal, Double Oven, Dryer, Electric Cooktop, Freezer, Microwave, Refrigerator and Washer
Exterior Features: Outdoor Shower
Fireplace: Electric
Floor: Carpet, Marble and Tile
Furnished: Unfurnished
Heat: Central and Electric
Interior Features: Breakfast Bar, Ceiling Fan(s), Kitchen Island, Open Floorplan, Vaulted Ceiling(s), Walk-In Closet(s) and Wet Bar
List Price/SqFt: $182.77 / sqft
Listing ID: 1062011
Listing Status: Active
Lot Description: Other
Lot SqFt: 107,158 sqft
Parking: Attached, Carport, Circular Driveway, Garage, Garage Door Opener and RV Access/Parking