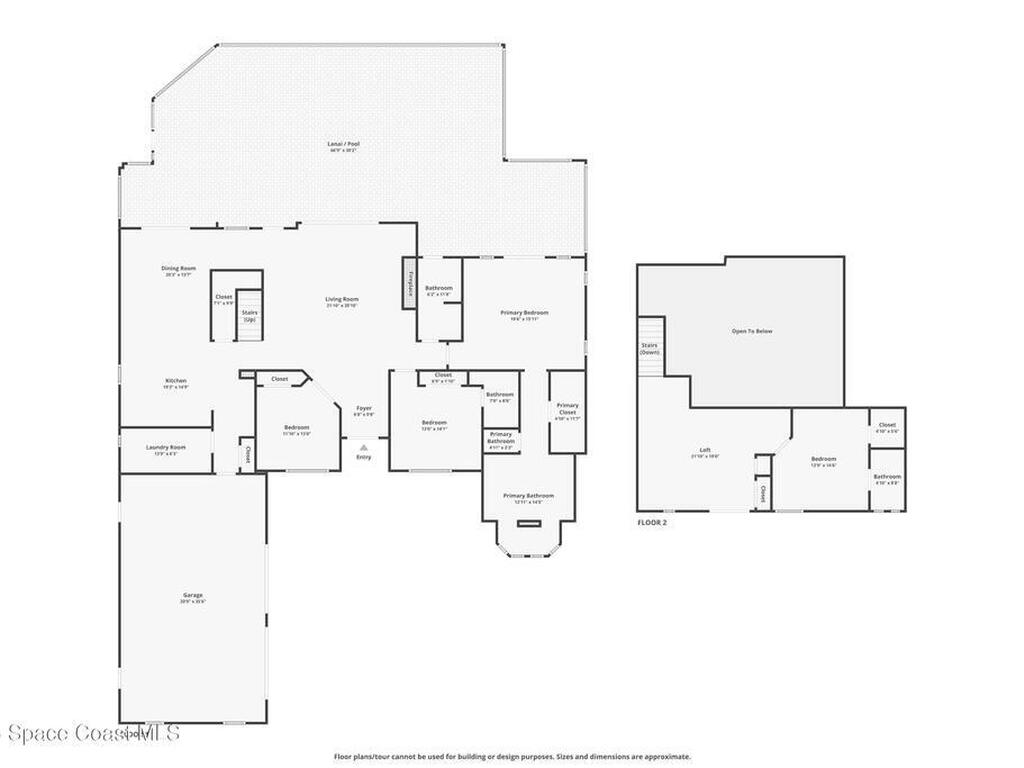
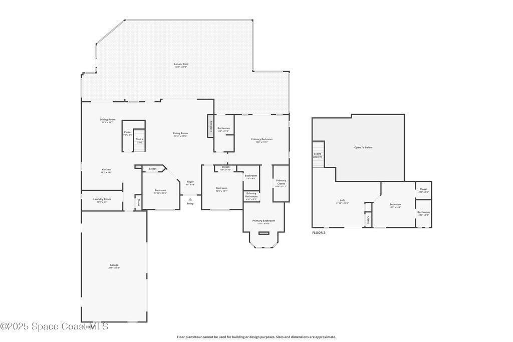
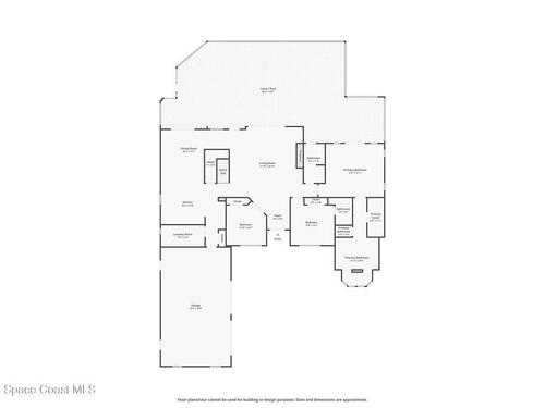
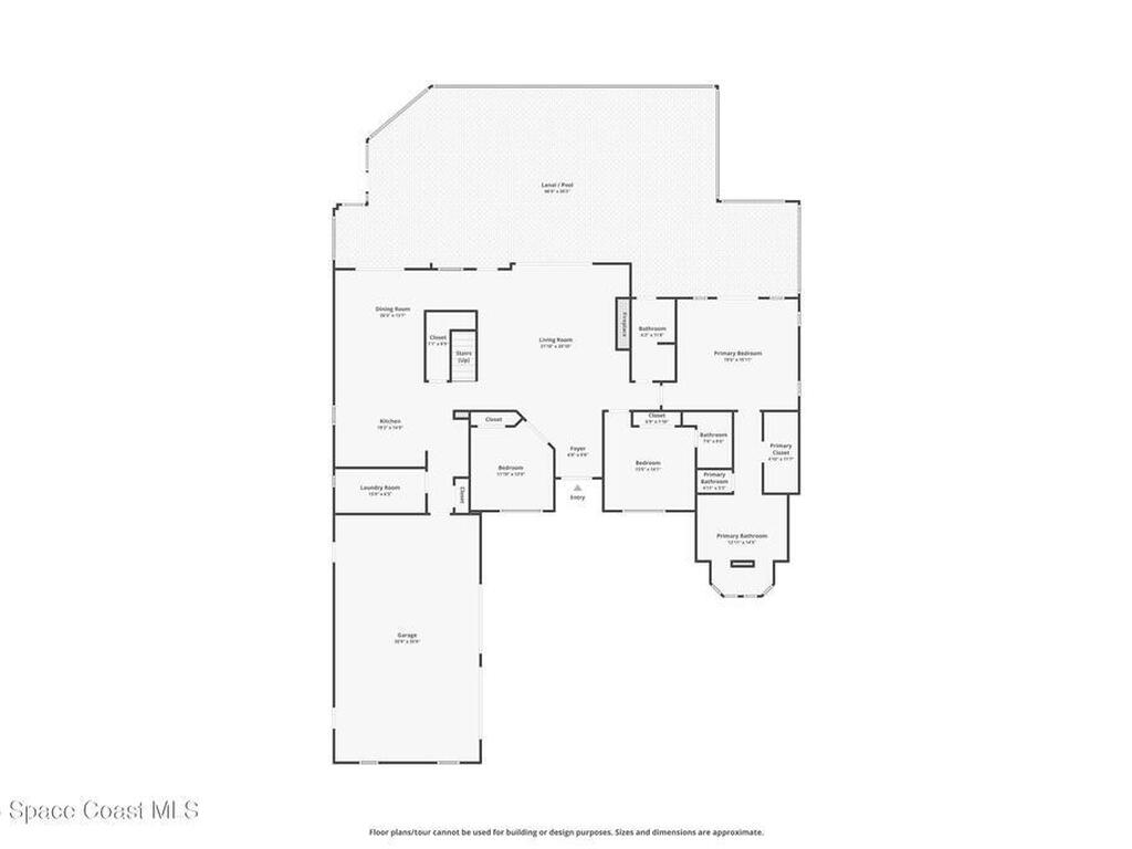
Welcome to 148 Miami Ave, ideally located south of 5th Ave and less than a block from the ocean. This beautifully renovated 4 bed, 4 bath home combines modern luxury with coastal charm. Enjoy high ceilings, 3 spacious ensuite bedrooms, a 4th bedroom/office and seamless indoor-outdoor living with a fully fenced in yard. Home offers a fresh remodel from top to bottom! Some updates include all-new appliances & wine cooler, custom cabinets and closets, electric fireplace, and outdoor kitchen. Features also include hurricane-impact windows, PEX plumbing, new roof (2024), resurfaced pool with new pump, new gutters, fresh landscaping, new and newer AC units, new air handlers, and water heaters. LVP flooring flows throughout with marble in the primary bath. Every detail has been thoughtfully designed for comfort and peace just steps from the ocean. Listing Agent assisted in renovation.
Essential Information
Year Built: 2003
Price: $1,549,000
Property Type: Residential
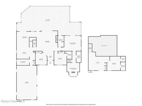
Area: 3,239 sqft.
Country: USA
City: Indialantic
Bedrooms: 4
Bathrooms: 4.00
Additional Property Info
Community Fees: No
Construction: Block and Concrete
Cooling: Central Air
Equipment/Appliances: Dishwasher, Disposal, Electric Range, Microwave, Refrigerator and Wine Cooler
Exterior Features: Balcony, Fire Pit, Impact Windows, Outdoor Kitchen, Outdoor Shower and Storm Shutters
Fireplace: Electric
Furnished: Unfurnished
Heat: Central and Hot Water
List Price/SqFt: $478.23 / sqft
Listing ID: 1062092
Listing Status: Pending
Lot Description: Other
Lot SqFt: 13,068 sqft
Parking: Garage
Pool: Yes
Pool Features: In Ground
Possession: Close Of Escrow
Private Pool: Yes
Property Type: Residential
Residential Sub-Type: Single Family Residence
Roof: Metal
Rooms: Primary Bedroom
Showing: Combination Lock Box
Sold Terms Code: Cash,Conventional
SqFt - Living: 3,239 sqft
State/Province: FL
Status: Pending
Status Change Date: Wednesday, February 25th, 2026