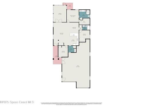
Discover refined comfort in this poured-concrete home featuring full impact glass and doors for unmatched durability and peace of mind. 53' RV Port! This beautifully maintained 3-bedroom, 2-bath residence is surrounded by mature landscaping, offering exceptional privacy from the moment you arrive. A paver driveway welcomes you to an elegant interior highlighted by a newer suite of KitchenAid appliances and a spacious layout designed for effortless living.Relax on the back patio and enjoy stunning views of rocket launches right from home. Additional upgrades include a 2023 A/C replacement for year-round efficiency. As an added bonus, a 2016 Gem Car is included with a full-price offer--perfect for enjoying the Hidden Lakes lifestyle.A rare opportunity to own a true gem in one of the area's most desirable communities.
Essential Information
Year Built: 2015
Price: $650,000
Property Type: Residential
Area: 1,601 sqft.
Country: USA
City: Titusville
Bedrooms: 3
Bathrooms: 2.00
Additional Property Info
Assoc/HOA Contact: The Great Outdoors
Association Fee Included: Cable TV, Internet, Maintenance Grounds, Security, Sewer, Trash and Water
Community Fees: No
Construction: Concrete and Stucco
Cooling: Central Air
Dwelling View: Trees/Woods
Equipment/Appliances: Dishwasher, Dryer, Electric Cooktop, Electric Oven, Electric Range, Electric Water Heater, Microwave, Refrigerator and Washer
Exterior Features: Impact Windows
Floor: Carpet and Tile
Furnished: Furnished
Heat: Central
Interior Features: Breakfast Bar, Built-in Features, Ceiling Fan(s), Open Floorplan, Pantry, Primary Bathroom - Shower No Tub and Primary Downstairs
List Price/SqFt: $406 / sqft
Listing ID: 1062788
Listing Status: Active
Lot Description: Other
Lot SqFt: 12,197 sqft
Parking: Additional Parking, Attached, Garage, Garage Door Opener and RV Access/Parking
Pet Restrictions: Cats OK, Dogs OK and Yes
Pets: Cats OK, Dogs OK and Yes
Pool: No
Possession: Close Of Escrow
Private Pool: No
Property Type: Residential
Residential Sub-Type: Single Family Residence
Road Surface: Asphalt
Roof: Shingle
Security/Safety: Gated with Guard and Security Gate
Subdivision: The Great Outdoors Premier Rv/golf Resort Xix
Tax Year: 2025
Taxes: $6,442.46
Total Garage Spaces: 2
Utilities: Cable Available, Cable Connected, Electricity Available, Electricity Connected, Sewer Available, Sewer Connected, Water Available and Water Connected