Fully Renovated Courtyard & Private Casita Pool Home in Prestigious Island Club Oceanside! Move-in ready 3/3 w/NEW ROOF, A/C & pool pump (2024) for peace of mind. Open layout boasts a renovated kitchen w/quartz counters, custom cabinetry & spacious breakfast bar. Custom built-in entertainment center w/85'' TV(conveys), plantation shutters & luxurious updated baths. Owner's suite offers pool views & custom closets; guest room features a Murphy bed. Enjoy private beach access, day dock, trails, clubhouses, pools, tennis, pickleball, gym & lawn care in a low-HOA community-just steps from the ocean!
Essential Information
Year Built: 2000
Price: $839,000
Property Type: Residential
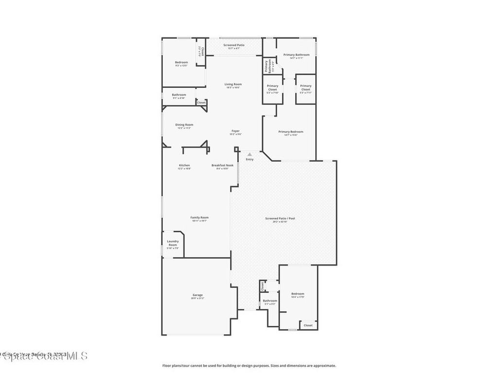
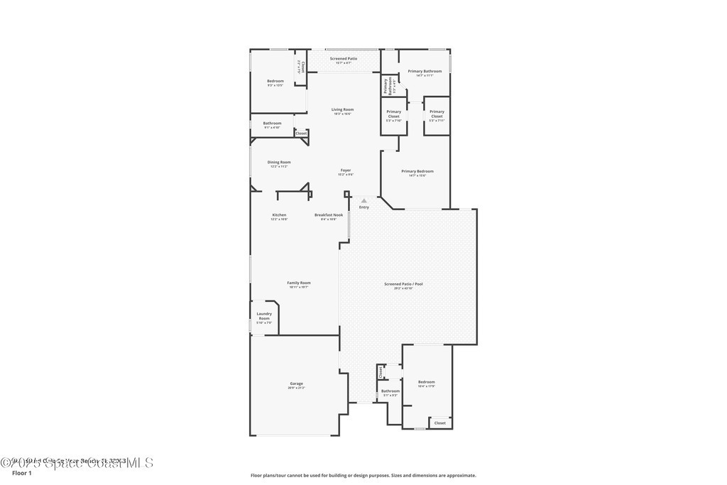
Area: 2,417 sqft.
Country: USA
City: Vero Beach
Bedrooms: 3
Bathrooms: 3.00
Additional Property Info
Assoc/HOA Contact: Island Club Oceanside - Vero Beach
Association Fee Included: Maintenance Grounds, Other and Trash
Community Fees: No
Construction: Block and Stucco
Cooling: Central Air and Zoned
Dwelling View: Pool
Equipment/Appliances: Dishwasher, Disposal, Electric Range, Electric Water Heater, Microwave and Refrigerator
Exterior Features: Courtyard, Outdoor Shower and Storm Shutters
Floor: Tile
Furnished: Unfurnished
Heat: Central, Electric and Zoned
Interior Features: Built-in Features, His and Hers Closets, Open Floorplan, Split Bedrooms and Walk-In Closet(s)
List Price/SqFt: $347.12 / sqft
Listing ID: 1063227
Listing Status: Pending
Lot Description: Sprinklers In Front and Sprinklers In Rear
Lot Dimensions: 70.0 ft x 140.0 ft
Lot SqFt: 9,583 sqft
Parking: Attached and Garage Door Opener
Pet Restrictions: Yes
Pets: Yes
Pool: Yes
Pool Features: In Ground and Screen Enclosure
Possession: Close Of Escrow
Private Pool: Yes
Property Type: Residential
Rental Restrictions: 4 Months,Tenant Approval
Residential Sub-Type: Single Family Residence
Road Surface: Asphalt
Roof: Tile
Rooms: Bathroom 3, Bedroom 2, Dining Room, Family Room, Kitchen, Living Room and Primary Bedroom