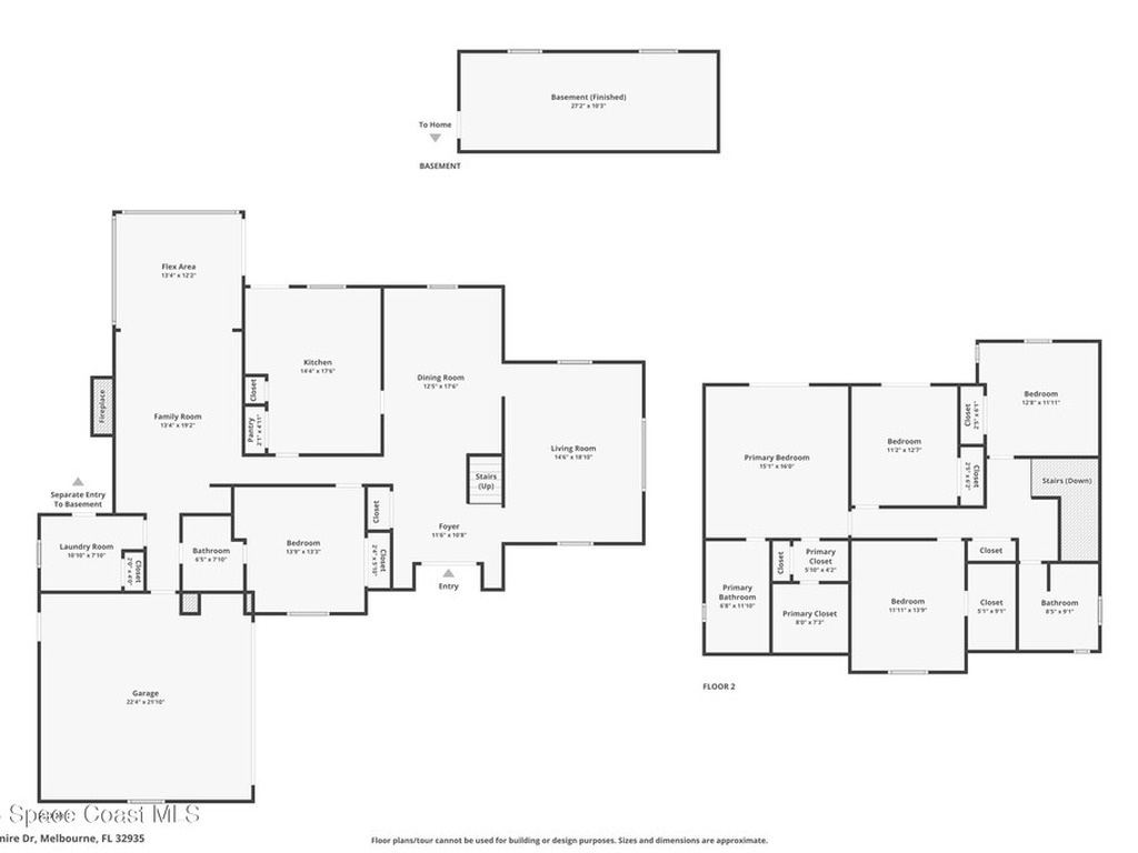
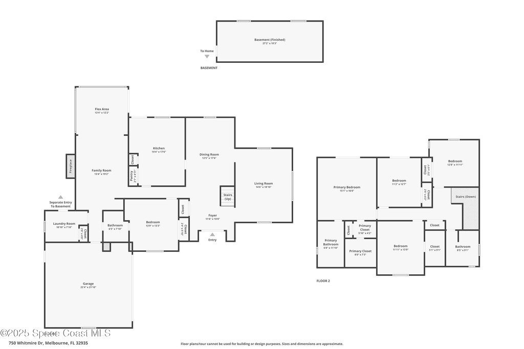
Waterfront home - with a BASEMENT! Located in Ballard Park, this 5 bedroom, 3 bath Melbourne home gives you 100 feet of canal frontage and direct access to the Indian River Lagoon from your backyard. Inside, an updated layout features a clean modern kitchen, refreshed baths, vinyl flooring throughout the main level, and a step-down sunken living room that pulls your eye to the water. Three upstairs bedrooms open to a shared balcony that runs along the canal, while a finished bump-out lower level creates a true bonus room for media, gym, studio, or play - a rare find in this area of Florida. An oversized two-car garage, no HOA, and low-maintenance finishes keep daily life easy. No bridge height restrictions and future dock potential invites you to bring the big boats and kayaks. From here it's a short walk to Ballard Park's boat ramp, tennis courts, and riverfront green space, and just minutes to Downtown Eau Gallie, Historic Downtown Melbourne, shopping, dining, and the beaches.
Essential Information
Year Built: 1980
Price: $798,000
Property Type: Residential
Area: 3,086 sqft.
Country: USA
City: Melbourne
Bedrooms: 5
Bathrooms: 3.00
Additional Property Info
Community Fees: No
Construction: Block and Stucco
Cooling: Central Air, Electric and Multi Units
Dwelling View: Intracoastal, River, Trees/Woods and Water
Equipment/Appliances: Dishwasher, Disposal, Electric Range, Electric Water Heater, Ice Maker, Microwave, Other, Plumbed For Ice Maker and Refrigerator
Exterior Features: Balcony and Other
Floor: Carpet and Vinyl
Furnished: Unfurnished
Heat: Central and Electric
Interior Features: Ceiling Fan(s), Entrance Foyer, His and Hers Closets, Open Floorplan, Pantry, Primary Bathroom - Tub with Shower and Wet Bar
List Price/SqFt: $258.59 / sqft
Listing ID: 1063313
Listing Status: Active
Lot Description: Cleared and Few Trees
Lot SqFt: 20,909 sqft
Parking: Circular Driveway, Garage, Garage Door Opener and RV Access/Parking
Pet Restrictions: Cats OK, Dogs OK and Yes
Pets: Cats OK, Dogs OK and Yes
Pool: No
Possession: Close Of Escrow
Private Pool: No
Property Type: Residential
Residential Sub-Type: Single Family Residence
Road Surface: Asphalt
Roof: Shingle
Security/Safety: Security Lights and Smoke Detector(s)