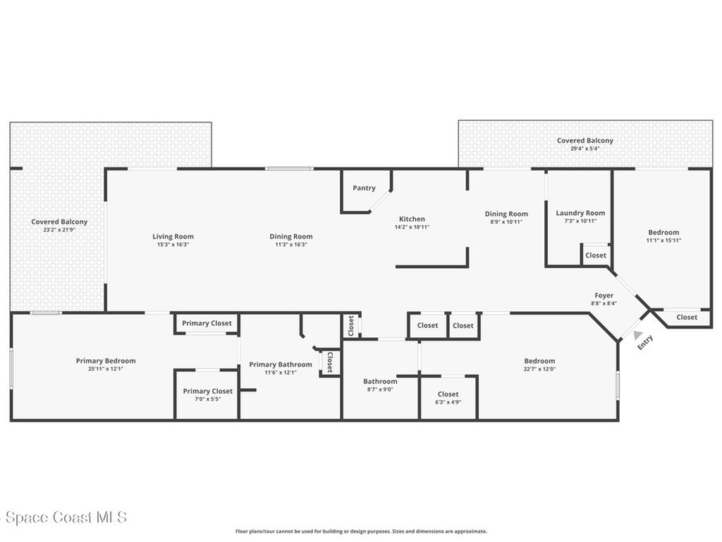
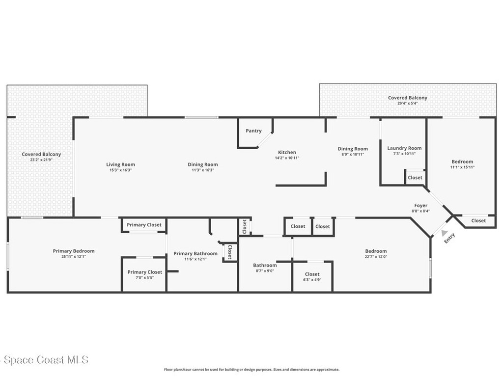
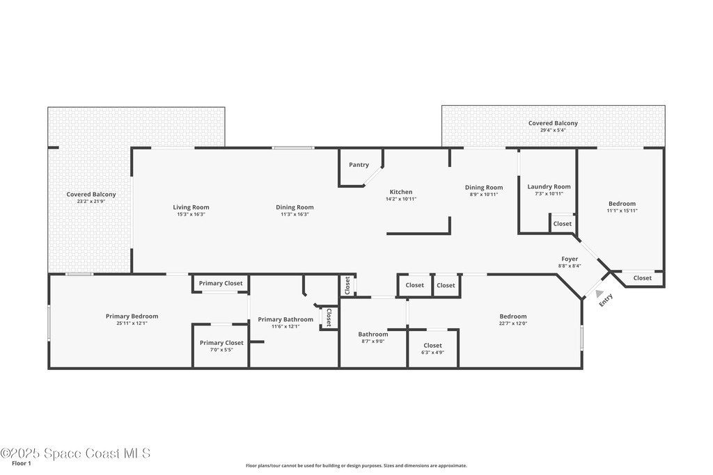
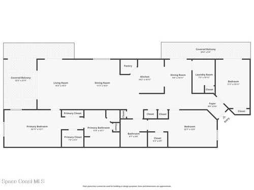
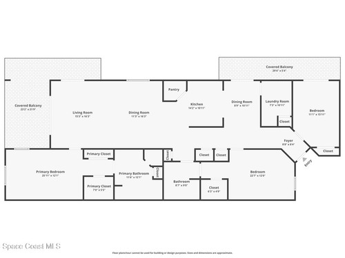
Experience LUXURY RIVERSIDE LIVING in this stunning 4th floor unit at Solana on the River. This spacious 3 bed, 2 bath residence offers spectacular PANORAMIC VIEWS of the Banana River, with cruise ships from Port Canaveral visible on the horizon. The open floor plan creates an airy, inviting atmosphere, complemented by a large kitchen and two dining areas. Enjoy abundant natural light from oversized windows throughout. Nearly every room in this exceptional unit offers breathtaking river views! Relax and unwind on your WRAPAROUND PRIVATE BALCONY PATIO, taking in the unforgettable sunsets. Enjoy the best of coastal living with the beach only minutes away. Residents benefit from RESORT-STYLE AMENITIES including a pool, spa, and tennis courts. Storm shutters and a secure underground garage with storage provides convenience and piece of mind. This premium END-UNIT location offers both privacy and unobstructed views in one of Cape Canaveral's most desirable waterfront communities!
Essential Information
Year Built: 2005
Price: $625,000
Property Type: Residential
Area: 2,187 sqft.
Country: USA
City: Cape Canaveral
Bedrooms: 3
Bathrooms: 2.00
Additional Property Info
Assoc/HOA Contact: Solana on the River
Association Fee Included: Cable TV, Insurance, Internet, Maintenance Grounds, Maintenance Structure, Pest Control, Sewer, Trash and Water
Community Fees: No
Construction: Concrete and Stucco
Cooling: Central Air and Electric
Dwelling View: River and Water
Equipment/Appliances: Dishwasher, Disposal, Dryer, Electric Range, Microwave, Refrigerator and Washer
Exterior Features: Balcony, Storm Shutters and Tennis Court(s)
Floor: Carpet and Tile
Furnished: Unfurnished
Heat: Central and Electric
Interior Features: Breakfast Bar, Breakfast Nook, Ceiling Fan(s), Entrance Foyer, His and Hers Closets, Open Floorplan, Primary Bathroom -Tub with Separate Shower, Split Bedrooms and Walk-In Closet(s)
List Price/SqFt: $285.78 / sqft
Listing ID: 1063785
Listing Status: Active
Lot Description: Cul-De-Sac and Dead End Street
Lot SqFt: 3,049 sqft
Parking: Assigned, Detached, Garage, Guest and Parking Lot
Pet Restrictions: Cats OK, Dogs OK, Number Limit, Size Limit and Yes
Pets: Cats OK, Dogs OK, Number Limit, Size Limit and Yes
Pool: No
Possession: Close Of Escrow
Private Pool: No
Property Type: Residential
Rental Restrictions: 3 Months
Residential Sub-Type: Condo
Road Surface: Asphalt
Roof: Membrane
Rooms: Bathroom 1, Bedroom 2, Bedroom 3, Dining Room, Kitchen, Laundry, Living Room, Other Room, Primary Bathroom and Primary Bedroom
Security/Safety: Secured Lobby
Showing: Appointment Only,Lockbox,No Sign,Showing Service