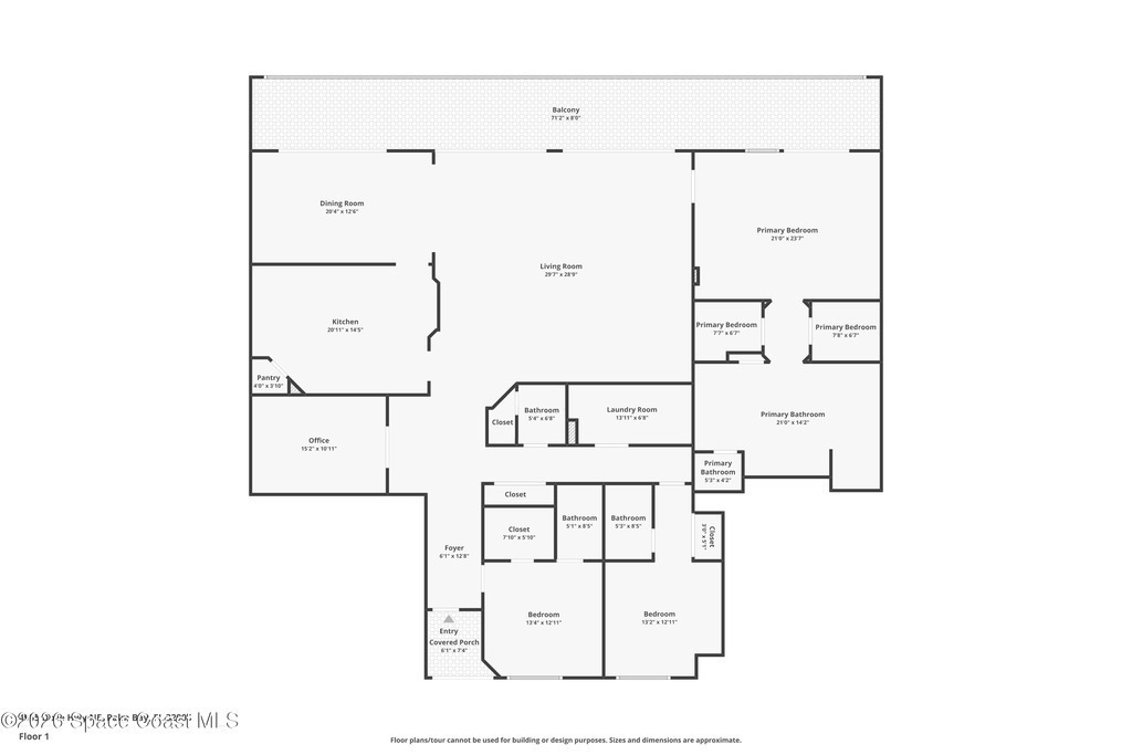
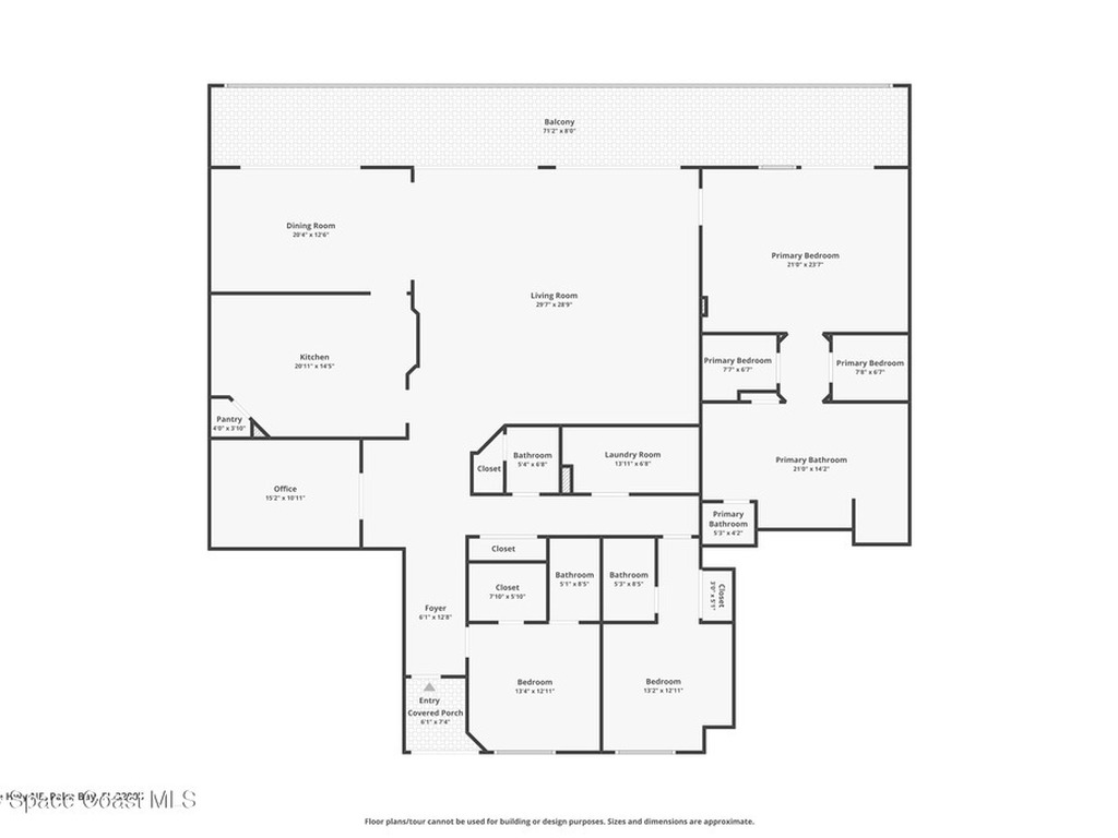
Celebrate ravishing Indian River vistas from your private 8th-floor balcony as luxury rises to a new level in this extraordinary 3,500+ sq. ft. penthouse in Palm Bay, where soaring 13-foot ceilings, floor-to-ceiling impact glass, & a breathtaking wall of sweeping sliders frame endless waterfront & city views in every direction. Designed for both grand entertaining & quiet indulgence, the expansive open-concept layout flows effortlessly to an oversized terrace, filling the home w/ natural light & an unmistakable sense of coastal sophistication. A gourmet kitchen anchors the space w/ timeless finishes, while a private office behind French doors adds elegance & versatility. The opulent primary suite feels like a personal retreat, complemented by beautifully appointed en-suite guest rooms & modern upgrades including new impact windows, shutters, & updated appliances. Set within a resort-style community just moments from premier dining, shopping, & the shoreline, this is penthouse living.
Essential Information
Year Built: 2004
Price: $799,000
Property Type: Residential
Area: 3,561 sqft.
Country: USA
City: Palm Bay
Bedrooms: 3
Bathrooms: 4.00
Additional Property Info
Assoc/HOA Contact: Venetian Bay Condo Association
Association Fee Included: Cable TV, Insurance, Internet, Maintenance Grounds, Maintenance Structure, Pest Control, Sewer, Trash and Water
Community Fees: No
Construction: Block, Concrete and Stucco
Cooling: Central Air
Dwelling View: River and Water
Equipment/Appliances: Dishwasher, Disposal, Dryer, Electric Cooktop, Electric Oven, Electric Water Heater, Microwave, Refrigerator and Washer
Exterior Features: Balcony, Impact Windows and Storm Shutters
Floor: Carpet and Tile
Furnished: Unfurnished
Heat: Electric
Interior Features: Breakfast Bar, Ceiling Fan(s), Entrance Foyer, Kitchen Island, Open Floorplan, Pantry, Primary Bathroom -Tub with Separate Shower, Split Bedrooms, Vaulted Ceiling(s) and Walk-In Closet(s)
List Price/SqFt: $224.38 / sqft
Listing ID: 1068614
Listing Status: Active
Lot Description: Few Trees
Lot SqFt: 3,920 sqft
Parking: Assigned, Attached, Garage, Gated, Other and Underground
Pet Restrictions: Cats OK, Dogs OK, Number Limit, Size Limit and Yes
Pets: Cats OK, Dogs OK, Number Limit, Size Limit and Yes