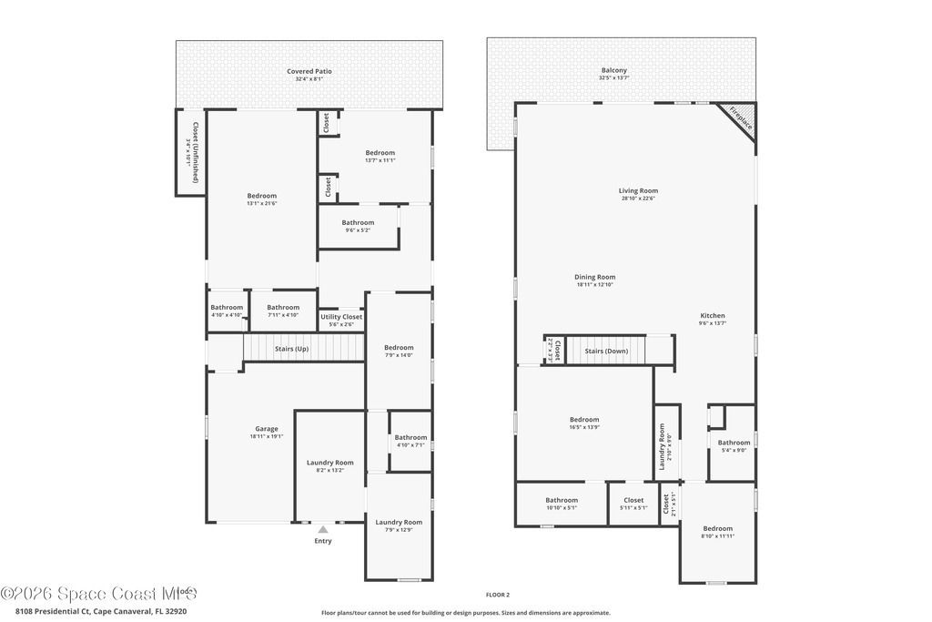
This 5-bedroom, 5-bath direct oceanfront home in Cape Canaveral offers relaxed coastal living with the Atlantic just steps from your door. Enjoy ocean views, sea breezes, and sunrise mornings that set the tone for easy beachside days.Inside, the home features a bright, updated kitchen that flows comfortably into the main living areas--ideal for everyday living and gathering with friends or family. All five bedrooms are generously sized and paired with their own bathrooms, offering flexibility for guests or multi-generational living.Outside, spacious outdoor areas create the perfect place to unwind--whether it's morning coffee overlooking the water, afternoons listening to the waves, or evenings enjoying the ocean air. A great opportunity to own a well-appointed oceanfront home and enjoy the simple beauty of Florida's coastline.
See Listings by Area and Type