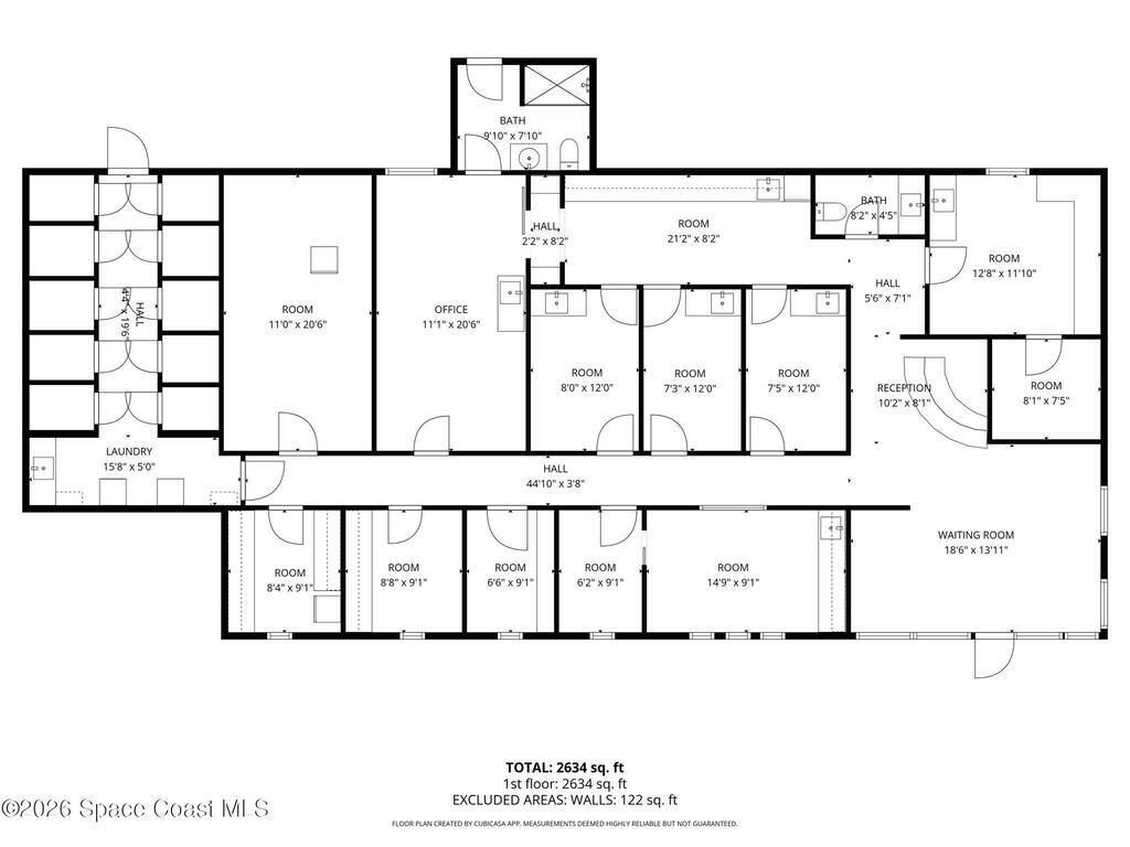
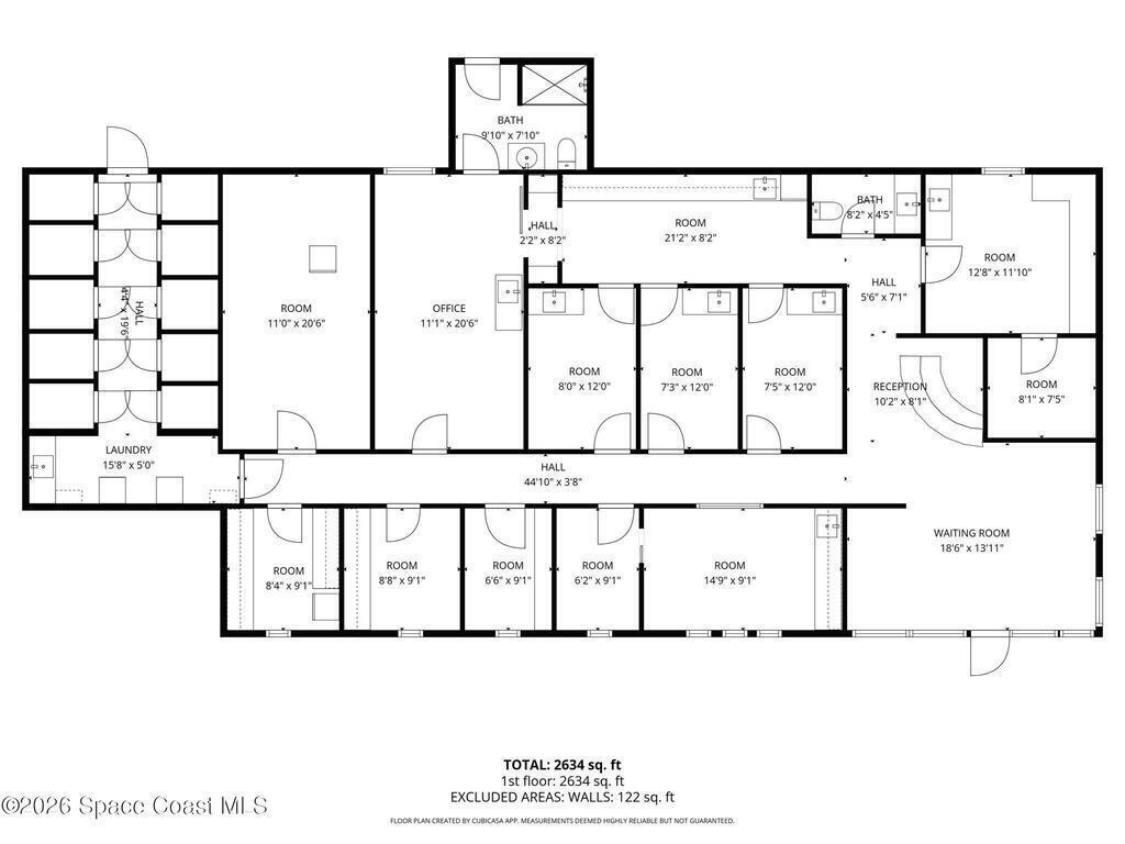
Formerly a fully operational veterinary hospital, this versatile commercial space is built for efficiency and primed for its next chapter. Ideal for a turn key vet clinic, med spa, dental office, physical therapy clinic, wellness center, or any multi-room professional concept seeking a true plug-and-play setup.The functional layout includes a welcoming reception and waiting area, dedicated intake and checkout spaces, multiple exam and procedure rooms, sterilization and surgery suites, and two sizes of kennel areas.A fully fenced green space is currently used as a pet relief area, adding immediate functionality for animal-related use. Long term, this outdoor area offers flexibility for reconfiguration. Whether additional parking, storage, expansion, or other value-add improvements.Strong visibility, ample parking, and select equipment included (inventory list available) make this a rare opportunity for both owner-users and investors.