Less than an hour from Orlando International Airport, this gorgeous east-facing NE corner direct oceanfront condo offers the ultimate Florida coastal lifestyle. Enjoy breathtaking sunrises over the Atlantic, sunsets over the Banana River and front-row views of rocket launches from the expansive wraparound balcony or private beach access. This spacious residence features abundant storage and a rare 10x20 private garage. Ideally located in the heart of Cocoa Beach between the iconic Cocoa Beach Pier and downtown, you'll enjoy year-round events including international boat races, holiday boat parades and Friday Fest gatherings. Walk to Ron Jon Surf Shop and enjoy everyday conveniences just across the street including Publix, local shops, restaurants and entertainment. The secured building offers resort-style amenities including a large oceanfront pool with clubhouse, fitness center, billiards room, grilling area, shuffleboard, tennis and pickleball courts. Residents enjoy an active social
Essential Information
Year Built: 1975
Price: $675,000
Property Type: Residential
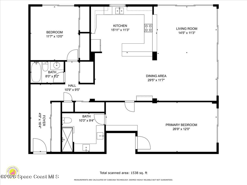
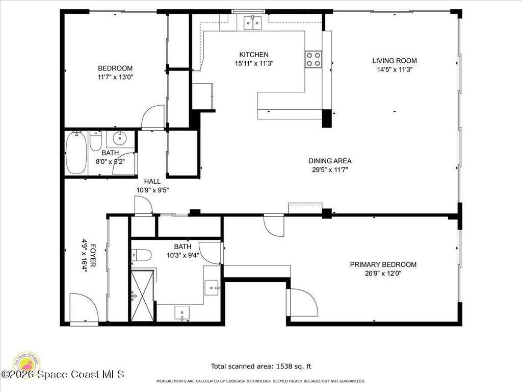
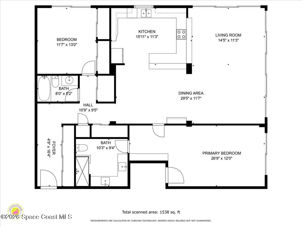
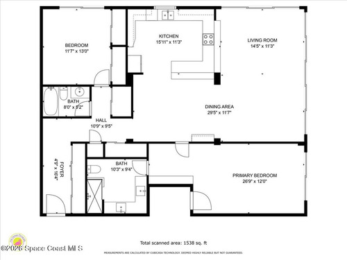
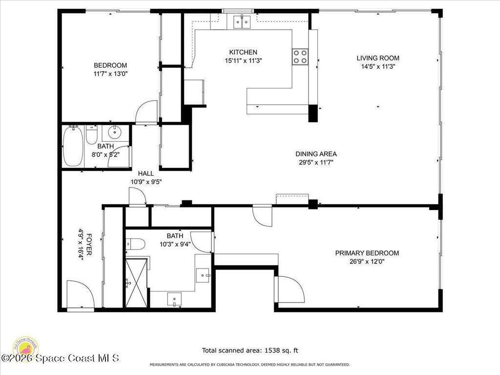
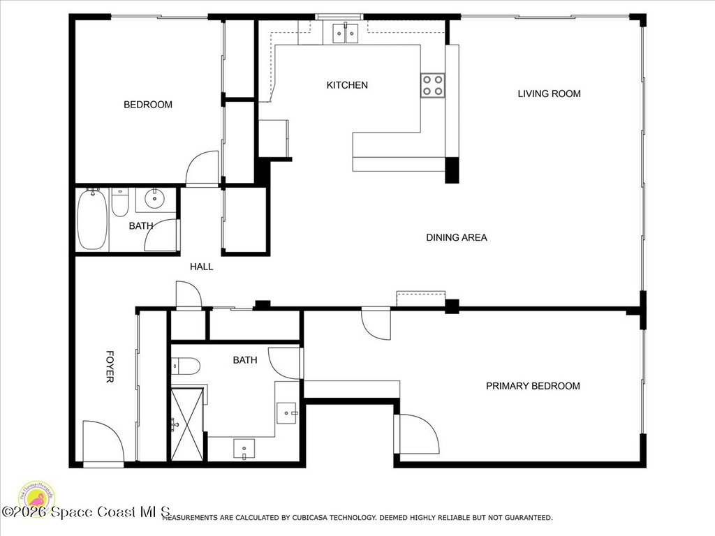
Area: 1,600 sqft.
Country: USA
City: Cocoa Beach
Bedrooms: 2
Bathrooms: 2.00
Additional Property Info
Assoc/HOA Contact: 2100 TOWERS CONDO
Association Fee Included: Cable TV, Insurance, Internet, Maintenance Structure, Pest Control, Trash and Water
Community Fees: No
Construction: Block, Concrete and Stucco
Cooling: Central Air
Dwelling View: Beach, Ocean, Pool and Water
Equipment/Appliances: Dishwasher, Electric Range, Microwave and Refrigerator
Exterior Features: Outdoor Shower
Floor: Tile
Furnished: Partially
Heat: Electric
Interior Features: Breakfast Bar, Elevator and Open Floorplan
List Price/SqFt: $421.88 / sqft
Listing ID: 1070799
Listing Status: Active
Lot Description: Other
Lot SqFt: 1,742 sqft
Parking: Additional Parking, Garage and Garage Door Opener