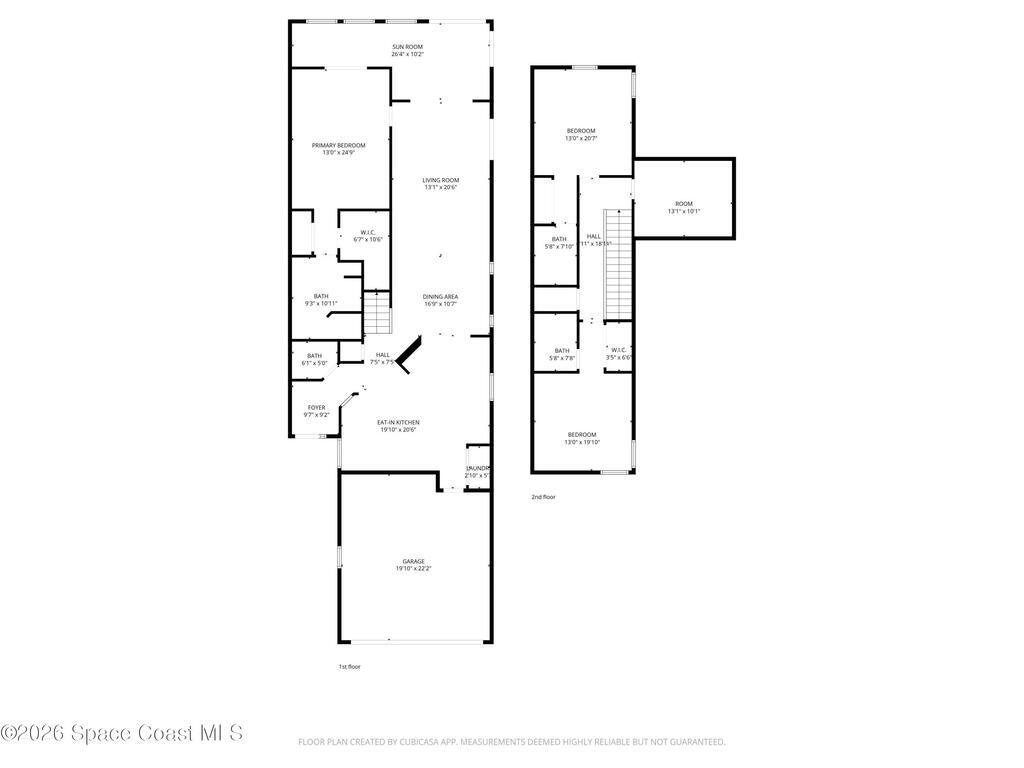
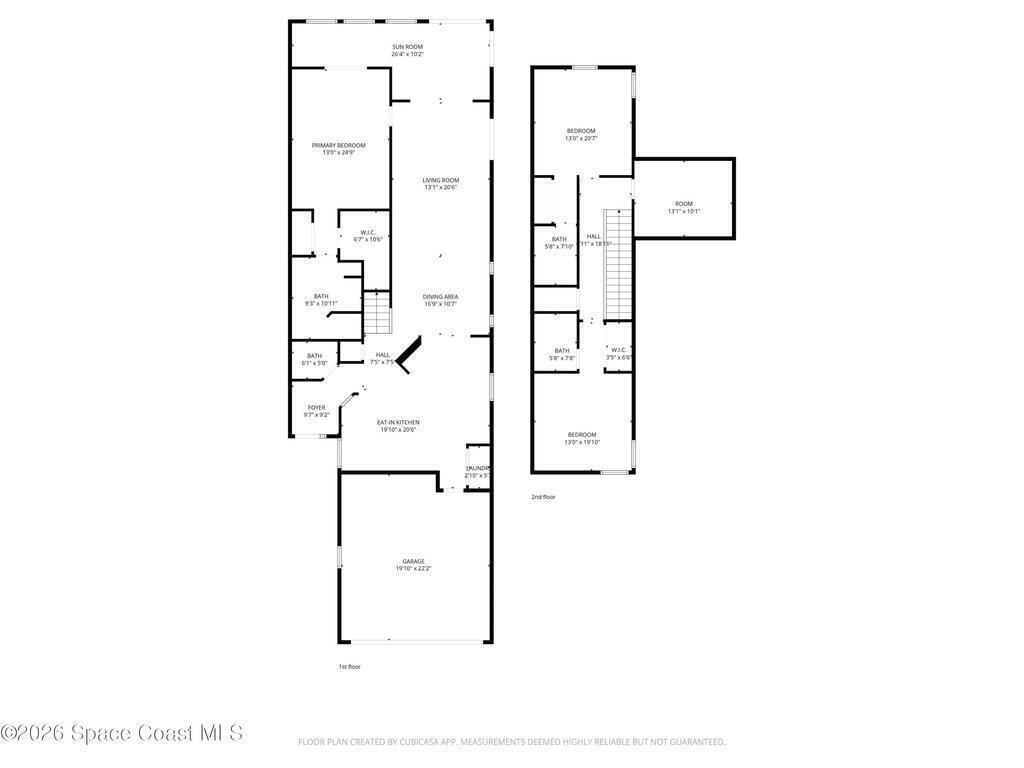
This canal-front corner lot townhome offers over 2,200 sq ft of beautifully updated & meticulously maintained living space, highlighting a showstopping enclosed Florida room w/panoramic hurricane-impact windows framing the Desoto Canal. The first-floor primary suite offers everyday convenience, while two spacious upstairs en-suite bedrooms give family and guests their own retreat. An updated kitchen w/gas stovetop, soaring ceilings, skylights, and natural light throughout make the home feel open and inviting. An oversized 0.19-acre corner lot (2x typical community size), community pool, waterfront sundeck next door, Kiwi Tennis Club across the street, Desosto/Frank P Catino Park within walking distance, and the beach just minutes away allow care-free outdoor living, while top-rated schools and convenient shopping round out a location that checks every box. HOA covers the roof (2021), exterior, and common area. A rare move-in-ready find!
Essential Information
Year Built: 2001
Price: $499,000
Property Type: Residential
Area: 2,200 sqft.
Country: USA
City: Indian Harbour Beach
Bedrooms: 3
Bathrooms: 4.00
Additional Property Info
Assoc/HOA Contact: Manatee Reserve
Association Fee Included: Cable TV, Internet, Maintenance Grounds and Pest Control
Community Fees: No
Construction: Block and Stucco
Cooling: Central Air and Electric
Dwelling View: Canal
Equipment/Appliances: Convection Oven, Dishwasher, Disposal, Dryer, Electric Oven, Gas Cooktop, Gas Water Heater, Ice Maker, Microwave, Refrigerator and Washer
Exterior Features: Impact Windows
Floor: Tile and Vinyl
Furnished: Unfurnished
Heat: Electric and Heat Pump
Interior Features: Breakfast Nook, Ceiling Fan(s), Central Vacuum, Eat-in Kitchen, Entrance Foyer, Pantry, Primary Bathroom - Shower No Tub, Primary Downstairs, Skylight(s) and Walk-In Closet(s)
Utilities: Cable Available, Cable Connected, Electricity Available, Electricity Connected, Natural Gas Available, Sewer Available, Sewer Connected, Water Available and Water Connected