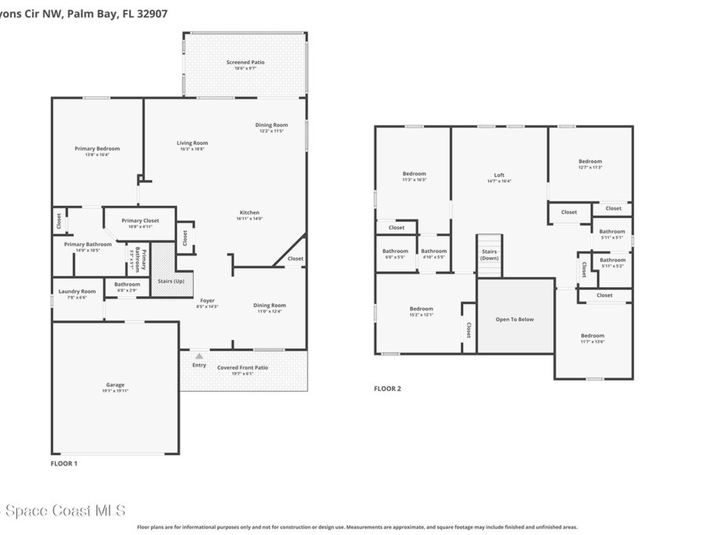
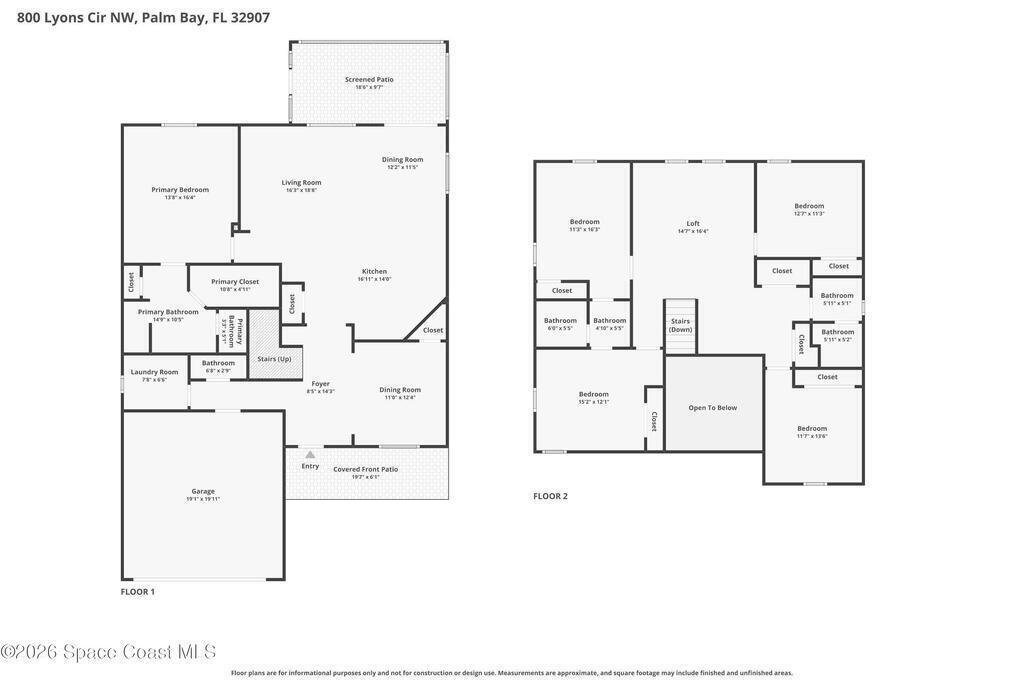
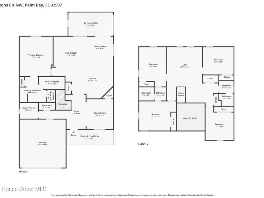
3568 sf Total Under Roof. Stunning 2-Story Pool Home with Coastal Upgrades & Backyard Retreat - No HOA or CDD! Welcome to this beautiful high quality custom built home, offering 5 bedrooms + loft, 3.5 bathrooms one offers ''jack & jill'', and a 2-car garage, perfectly situated on a spacious .33-acre lot with full privacy fencing. Step outside and enjoy your private backyard oasis, designed for entertaining and relaxation. Paver walkways lead to a sparkling semi-above-ground pool surrounded by a wrap-around deck, ideal for sunbathing or unwinding beneath the charming pergola. The outdoor living space also features a screened porch, welcoming front porch, cozy fire pit area, and a large storage shed. Inside, the home continues to impress with coastal-inspired design and high-end upgrades, including: 42'' white cabinetry, Quartz countertops, Stainless steel name-brand appliances, Wood-look tile flooring throughout the main living areas, Custom accent wall in the living room,
Essential Information
Year Built: 2019
Price: $549,900
Property Type: Residential
Area: 2,828 sqft.
Country: USA
City: Palm Bay
Bedrooms: 5
Bathrooms: 4.00
Additional Property Info
Community Fees: No
Construction: Block, Frame, Stone and Stucco
Contingent: Active Under Contract
Cooling: Central Air and Electric
Equipment/Appliances: Dishwasher, Disposal, Dryer, Electric Range, Microwave, Refrigerator and Washer
Exterior Features: Fire Pit and Storm Shutters
Floor: Carpet and Tile
Furnished: Unfurnished
Heat: Electric
Interior Features: Breakfast Bar, Breakfast Nook, Built-in Features, Ceiling Fan(s), Entrance Foyer, Jack and Jill Bath, Kitchen Island, Open Floorplan, Pantry, Primary Bathroom - Shower No Tub, Primary Downstairs, Split Bedrooms and Walk-In Closet(s)
List Price/SqFt: $194.45 / sqft
Listing ID: 1071309
Listing Status: Active Under Contract
Lot Description: Few Trees
Lot SqFt: 14,375 sqft
Parking: Garage and Garage Door Opener
Pet Restrictions: Yes
Pets: Yes
Pool: Yes
Pool Features: Above Ground and Other
Possession: Close Of Escrow
Private Pool: Yes
Property Type: Residential
Residential Sub-Type: Single Family Residence
Road Surface: Asphalt
Roof: Shingle
Rooms: Bathroom 3, Bathroom 4, Bedroom 2, Bedroom 5, Dining Room, Kitchen, Living Room, Loft, Other Room and Primary Bedroom