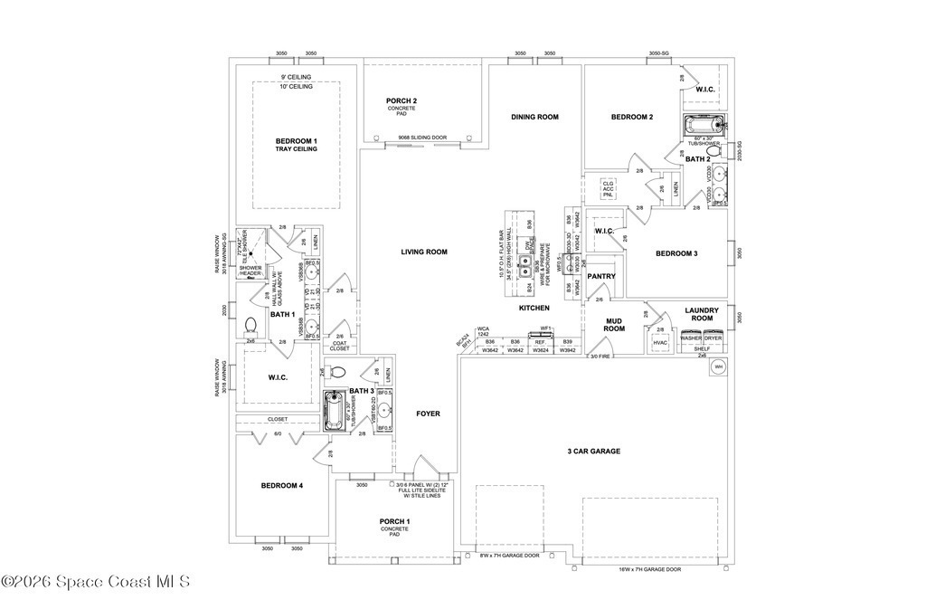
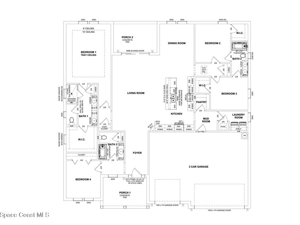
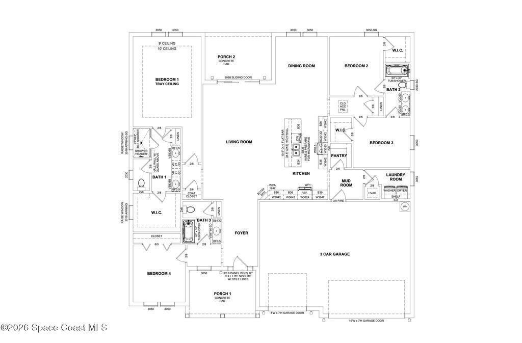
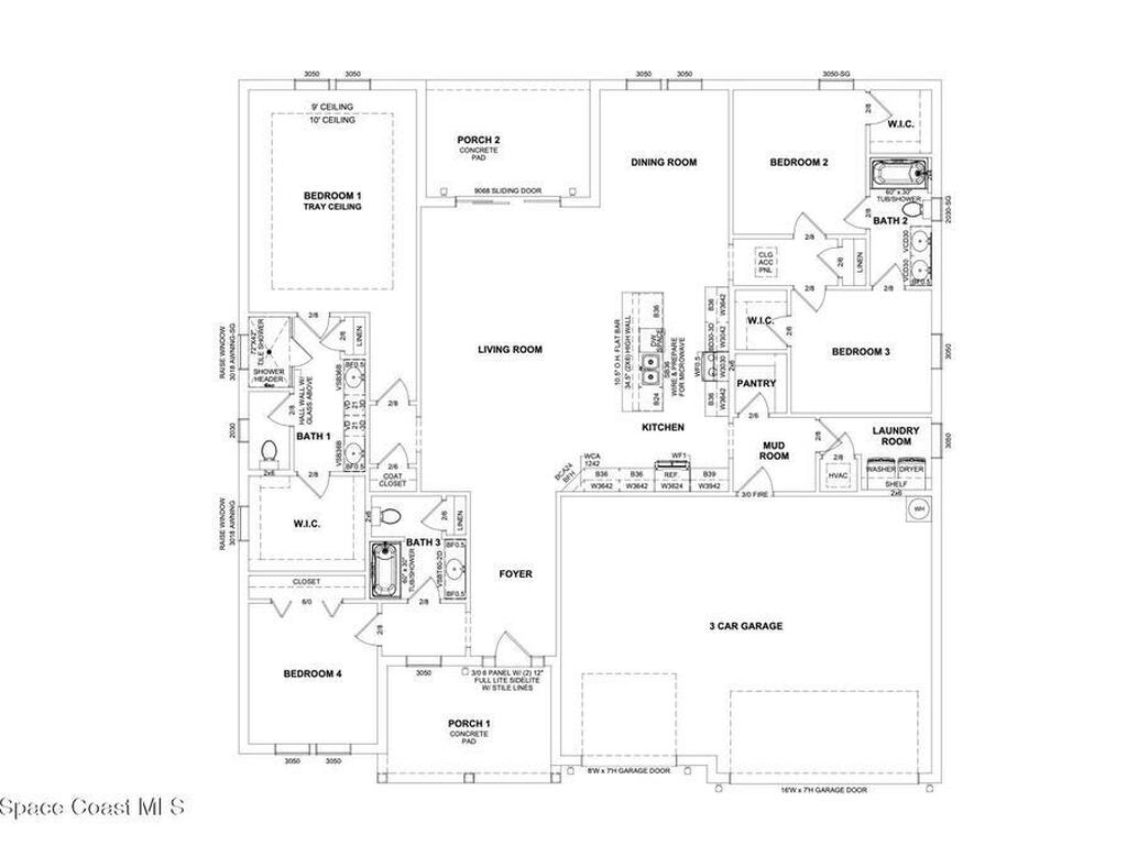
ESTIMATED COMPLETION DATE OF JUNE/JULY 2026! Brand new construction in the highly sought after community of Canaveral Groves! This spacious home offers 4 bedrooms, 3 full bathrooms, and nearly 2,500 square feet of living space on a full 1 acre lot with a 3 car garage. The thoughtfully designed layout features a private owner's suite with dual walk-in closets and a spa-style bath, along with a secondary suite with its own full bath, perfect for guests or multigenerational living.The open-concept design includes a large kitchen with a center island, walk-in pantry, and seamless flow into the dining and family rooms, creating an ideal space for entertaining. The covered lanai extends the living area outdoors, while a drop zone, dedicated laundry room, and oversized three car garage provide convenience and plenty of storage.Enjoy the space & privacy of a full acre while still being close to everything Brevard has to offer. Inquire today!
Essential Information
Year Built: 2026
Price: $725,000
Property Type: Residential
Area: 2,478 sqft.
Country: USA
City: Cocoa
Bedrooms: 4
Bathrooms: 3.00
Additional Property Info
Community Fees: No
Construction: Block, Concrete and Stucco
Cooling: Central Air and Electric
Equipment/Appliances: Dishwasher, Disposal, Electric Cooktop, Electric Oven, Electric Water Heater, Microwave and Refrigerator
Floor: Vinyl
Furnished: Unfurnished
Heat: Central and Electric
Interior Features: Guest Suite, Kitchen Island, Open Floorplan, Pantry, Primary Downstairs and Split Bedrooms