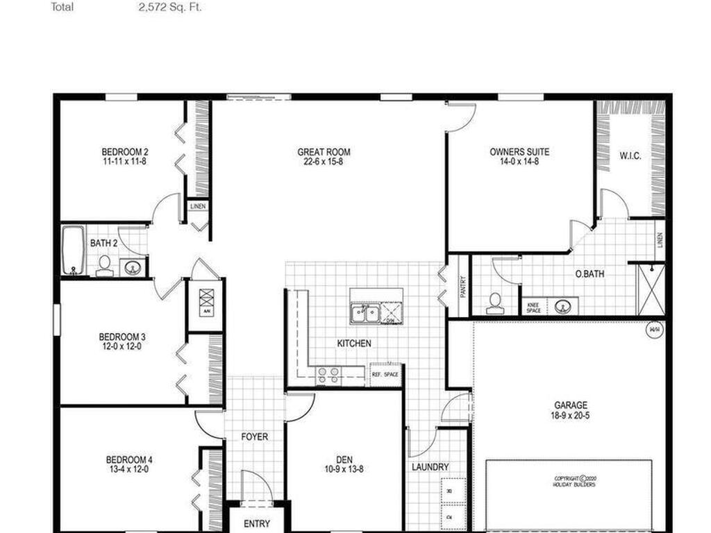
AVAILABLE NOW! HOME IS COMPLETED and READY NOW! Majestic Model! Newly built, block constructed home includes energy smart features throughout. Over 2100sf of living space, Four sizeable Bedrooms and two Full Baths. If you're looking for an Open Floor Plan, this is the home for you. Large Kitchen Island overlooking the spacious Great Room. Comes with a One-Year, Non-Transferable Builders Warranty
Essential Information
Year Built: 2025
Price: $351,990
Property Type: Residential
Area: 2,134 sqft.
Country: USA
City: Palm Bay
Bedrooms: 4
Bathrooms: 2.00
Additional Property Info
Community Fees: No
Construction: Block, Concrete and Stucco
Cooling: Central Air and Electric
Dwelling View: City
Equipment/Appliances: Dishwasher, Electric Range and Electric Water Heater
Floor: Carpet and Vinyl
Furnished: Unfurnished
Green Energy Feature: Thermostat
Green Water Features: Water-Smart Landscaping
Heat: Central and Electric
Interior Features: Kitchen Island, Open Floorplan, Pantry, Primary Bathroom - Tub with Shower, Primary Downstairs, Split Bedrooms and Walk-In Closet(s)
List Price/SqFt: $164.94 / sqft
Listing ID: 1041271
Listing Status: Pending
Lot Description: Cleared
Lot SqFt: 11,761 sqft
Parking: Attached
Pool: No
Possession: Close Of Escrow
Private Pool: No
Property Type: Residential
Rental Restrictions: No Minimum
Residential Sub-Type: Single Family Residence
Road Surface: Asphalt
Roof: Shingle
Rooms: Bedroom 2, Bedroom 3, Bedroom 4, Dining Room, Family Room, Other Room and Primary Bedroom