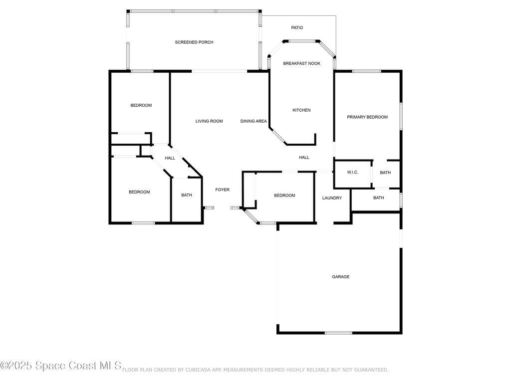
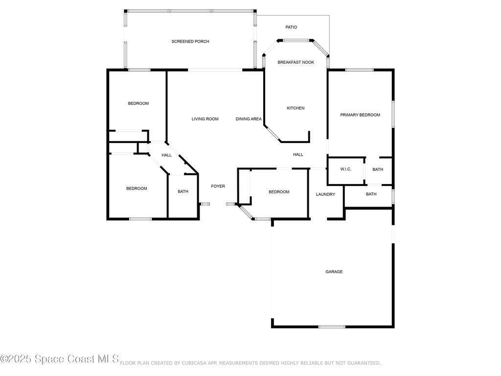
Embrace the Beach Life at 225 Chalet Ave! Just an easy stroll to the shoreline, this 4-Bed, 2-Bath coastal retreat is in the heart of Indialantic's vibrant beachside scene. Tucked between the sparkling Atlantic Ocean and tranquil Indian River, this home captures the essence of Florida living--sun-soaked days, salty air, and a laid-back lifestyle. Inside, you'll find a warm and welcoming layout, including a 4th bedroom perfect for a home office or den, indoor laundry for everyday ease, and a 2-car garage for all your beach gear. Step out to the screened back porch where you can sip morning coffee or entertain friends as ocean breezes drift through. Just minutes from the energy of 5th Avenue or a quick hop over the causeway to Downtown Melbourne, you'll enjoy quick access to local boutiques, parks, dining hotspots, and nightlife. Whether you're heading out for a sunset stroll, catching waves, or simply relaxing at home, this gem puts the ultimate Space Coast lifestyle at your finger tips
Essential Information
Year Built: 1987
Price: $499,999
Property Type: Residential
Area: 1,529 sqft.
Country: USA
City: Indialantic
Bedrooms: 4
Bathrooms: 2.00
Additional Property Info
Community Fees: No
Construction: Block and Concrete
Cooling: Central Air and Electric
Dwelling View: Other
Equipment/Appliances: Dishwasher, Dryer, Electric Range, Microwave, Refrigerator and Washer
Floor: Tile and Wood
Furnished: Unfurnished
Heat: Central and Electric
Interior Features: Ceiling Fan(s), Eat-in Kitchen, Open Floorplan, Primary Bathroom - Shower No Tub, Split Bedrooms, Vaulted Ceiling(s) and Walk-In Closet(s)