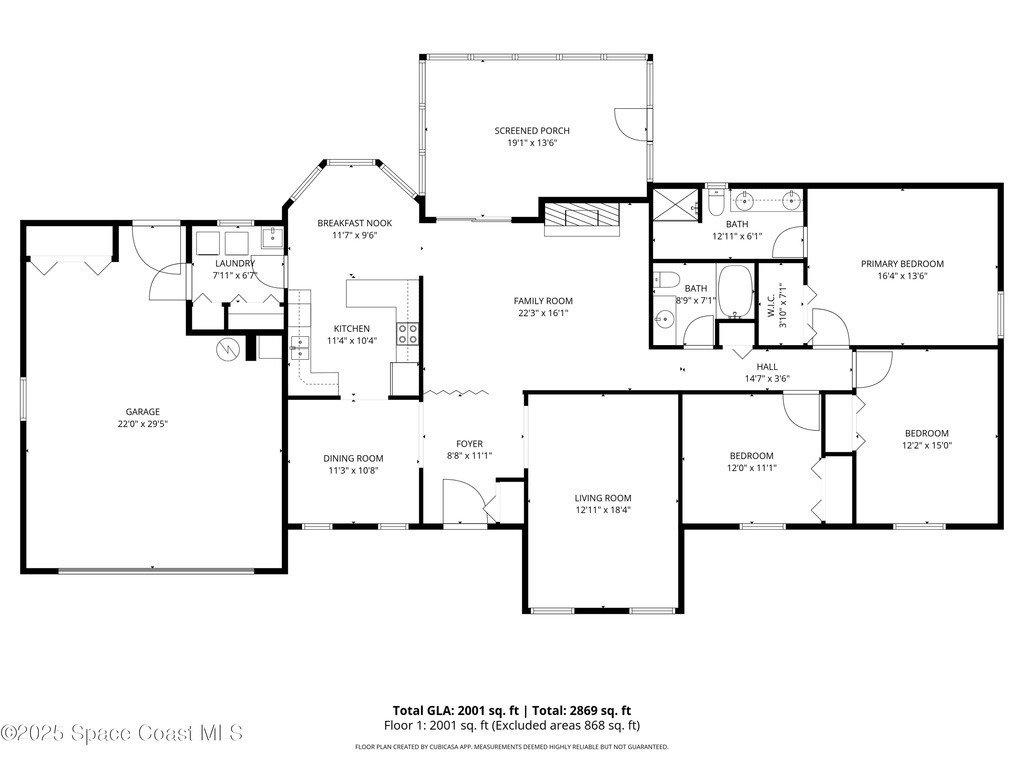
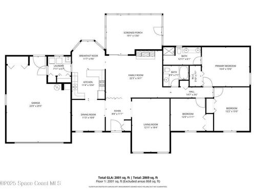
Welcome to Fairview Estates! This solid concrete block home comes with peace of mind thanks to a newer roof, air conditioning system, and hot water heater--major updates already taken care of for you. Nestled in the charming and beautifully maintained Lake Washington community with no HOA fees, the neighborhood radiates pride of ownership and timeless appeal, from its inviting entrance to tasteful signage. This delightful three-bedroom, two-bath home offers a spacious and versatile layout. The kitchen includes a cozy breakfast nook, while the formal living and dining rooms provide elegant spaces for entertaining. A warm and welcoming family room centers around a striking stone fireplace, and the large utility room adds convenience and functionality. The glass-enclosed back patio is ideal for relaxing or hosting guests year-round. Outside, the property boasts a truly gigantic yard filled with mature trees, lush landscaping, and even mango trees.
Essential Information
Year Built: 1983
Price: $425,000
Property Type: Residential
Area: 1,927 sqft.
Country: USA
City: Melbourne
Bedrooms: 3
Bathrooms: 2.00
Additional Property Info
Community Fees: No
Construction: Concrete and Stucco
Cooling: Central Air
Dwelling View: Trees/Woods
Equipment/Appliances: Dishwasher, Dryer, Electric Range, Refrigerator and Washer
Floor: Carpet and Tile
Furnished: Unfurnished
Heat: Central
Interior Features: Breakfast Bar, Breakfast Nook, Ceiling Fan(s), Entrance Foyer and Vaulted Ceiling(s)