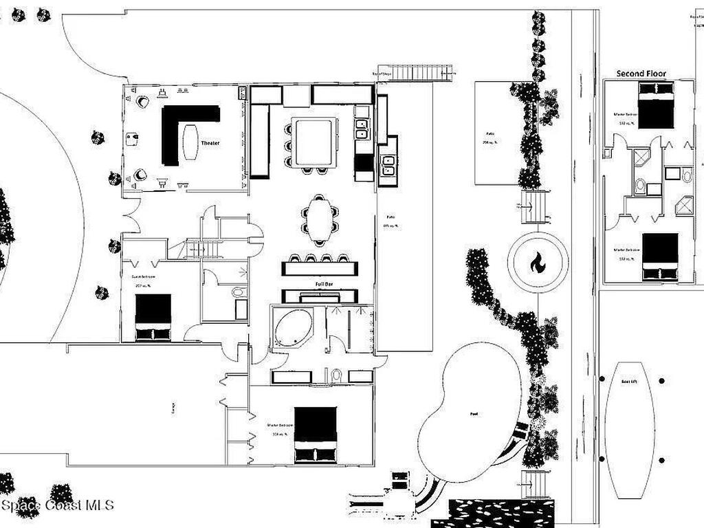
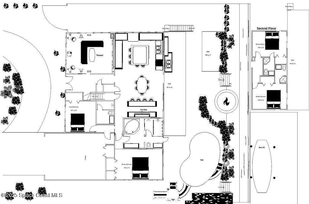
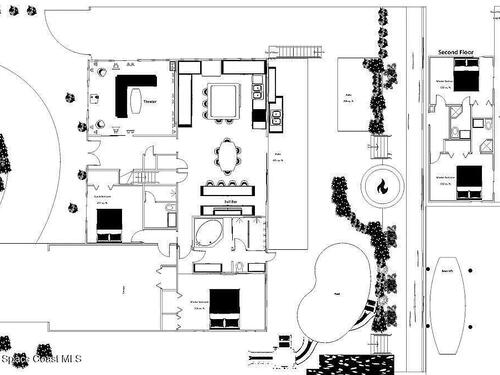
WELCOME HOME to Indialantic Beach, Florida!Enjoy your very own private Waterfront Oasis in this 4 bedroom 4 bathroom home located on a serene canal with easy and quick access to Indian River. Outdoor entertaining options are endless with the in ground pool, boat lift, fire pit, outdoor BBQ space and more. The spacious home has a one of kind theater room with surround sound, newly renovated kitchen with many custom features open to dining area with a custom wet bar fully equipped. Level one features the owners suite with glamour bathroom and slider to pool area along with another secondary bedroom and guest bath. Level 2 offers 2 spacious bedrooms with private bathroom and large balcony off each overlooking pool and canal! Other: Set up for IOT /ALEXEA or Google., large pantry, kitchen island, coastal colors, city water & sewer, half circle driveway, cul-de-sac street is very private too. Minutes to the beach for year round enjoyment. Don't miss this rare opportunity!
See Listings by Area and Type