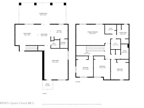
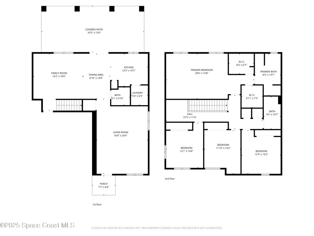
Welcome to Verolago in North Vero Beach. This two-story, move-in-ready home sits on the largest lot in the community, with an extended covered lanai that backs to open green space--perfect for running, playing, and sunset views. The interior includes a grand kitchen, two living spaces, and a versatile loft suitable for an office or retreat. Upstairs, the oversized Master Suite features two walk-in closets, complemented by three additional bedrooms. The community boasts a expansive clubhouse, large pool, and fitness center for residents.
Essential Information
Year Built: 2007
Price: $419,000
Property Type: Residential
Area: 2,600 sqft.
Country: USA
City: Vero Beach
Bedrooms: 4
Bathrooms: 3.00
Additional Property Info
Assoc/HOA Contact: Beacon Property MGT
Association Fee Included: Insurance
Community Fees: No
Construction: Block and Stucco
Cooling: Central Air and Electric
Dwelling View: Other
Equipment/Appliances: Dishwasher, Disposal, Dryer, Electric Range, Electric Water Heater, Microwave, Refrigerator and Washer
Exterior Features: Storm Shutters
Floor: Tile and Wood
Furnished: Unfurnished
Heat: Central and Electric
Interior Features: Ceiling Fan(s), Entrance Foyer, Pantry and Split Bedrooms
List Price/SqFt: $161.15 / sqft
Listing ID: 1062664
Listing Status: Active
Lot Description: Corner Lot
Lot Dimensions: 52.0 ft x 150.0 ft
Lot SqFt: 9,583 sqft
Parking: Attached, Garage and Garage Door Opener
Pet Restrictions: Number Limit
Pets: Number Limit
Pool: No
Possession: Close Of Escrow
Private Pool: No
Property Type: Residential
Rental Restrictions: No Lease 1st Year
Residential Sub-Type: Single Family Residence
Road Surface: Asphalt,Paved
Roof: Tile
Rooms: Bedroom 1, Bedroom 2, Bedroom 3, Bedroom 4, Dining Room, Family Room, Kitchen, Living Room, Loft and Other Room
Security/Safety: Entry Phone/Intercom and Smoke Detector(s)