Discover coastal living at its finest in this canal‑front condo. This residence has passed all state inspections and features new concrete balconies and fresh exterior paint, ensuring peace of mind and long‑term durability.Enjoy a bright, open layout with a private balcony perfect for relaxing and taking in the views. The condo includes a deeded, shared two‑car garage for convenience and storage. Set within a nicely maintained waterfront community, residents enjoy direct canal access and the unique opportunity to watch rocket launches, wildlife, and breathtaking sunsets right from home. Located in the heart of Cocoa Beach, you're minutes from sandy beaches, local dining, shopping, and Port Canaveral.Whether you're seeking a full‑time residence, vacation retreat, or investment property, this condo offers the perfect blend of lifestyle, location, and value.
Essential Information
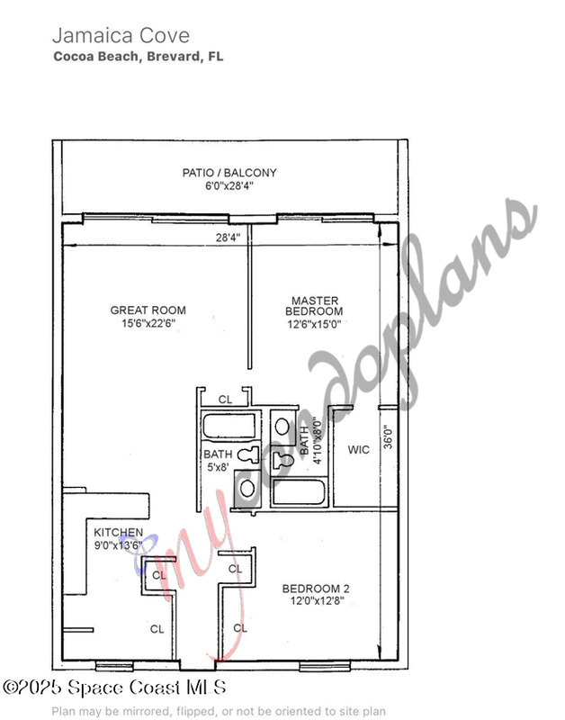
Year Built: 1984
Price: $405,000
Property Type: Residential
Area: 1,247 sqft.
Country: USA
City: Cocoa Beach
Bedrooms: 2
Bathrooms: 2.00
Additional Property Info
Assoc/HOA Contact: Jamaica Cove Condo Assocaition
Association Fee Included: Maintenance Grounds, Maintenance Structure, Sewer, Trash and Water
Community Fees: No
Construction: Block, Concrete and Stucco
Cooling: Central Air
Dwelling View: Canal
Equipment/Appliances: Dishwasher, Disposal, Dryer, Electric Oven, Electric Range, Electric Water Heater, Freezer, Microwave, Refrigerator and Washer
Exterior Features: Balcony
Floor: Tile
Furnished: Furnished
Heat: Central
Interior Features: Breakfast Bar, Ceiling Fan(s), Primary Bathroom - Tub with Shower, Smart Thermostat, Split Bedrooms and Walk-In Closet(s)
List Price/SqFt: $324.78 / sqft
Listing ID: 1062739
Listing Status: Active
Lot Description: Many Trees
Lot SqFt: 3,049 sqft
Parking: Detached, Garage, Off Street, Parking Lot and Unassigned
Pet Restrictions: Number Limit
Pets: Number Limit
Pool: No
Possession: Close Of Escrow
Private Pool: No
Property Type: Residential
Rental Restrictions: 1 Month
Residential Sub-Type: Condo
Road Surface: Asphalt
Roof: Concrete and Membrane
Showing: Call Listing Agent,Combination Lock Box,Lockbox,Showing Service