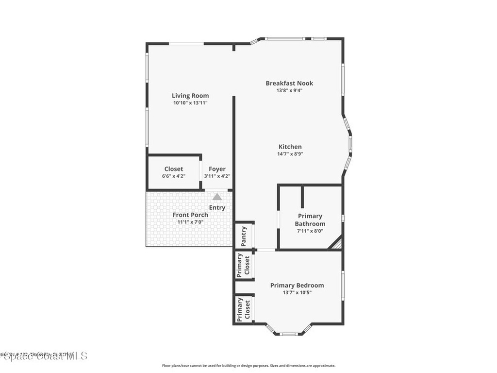
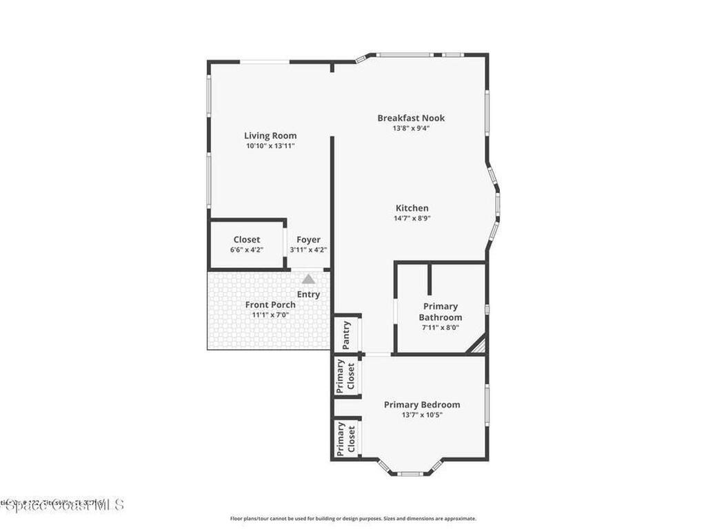
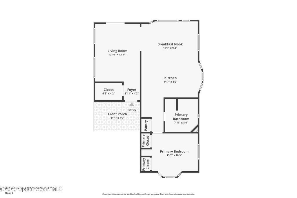
There's No Place Like Home! And, this Willow Lakes park model home is located on the 4th tee in a community perfect for the active 55+ - fulltime or seasonal lifestyle! Interior remodeled to include full living room, huge kitchen, interior laundry & plenty of closet space. Kitchen redesigned in 2024 with quartz counters, farm sink, recessed lighting, subway tile backsplash & glass front cabinets. Luxury vinyl plank flooring throughout. Lots of windows make for a bright, cherry interior & offer views of the pond. French doors open to Trexx deck overlooking pond & tee box. Other updates include roof 2019, patio door 2024, water heater 2022, HVAC ductwork 2025. Front patio is also Trexx & has covered area perfect for golf cart. WIllow Lakes features pickleball, heated pool, 9 hole golf course, tennis courts, shuffleboard & bocce plus plenty of planned events. Community is pet & motorcycle friendly! RV & trailer storage available. Located within short drive to Playalinda beach or KSC!