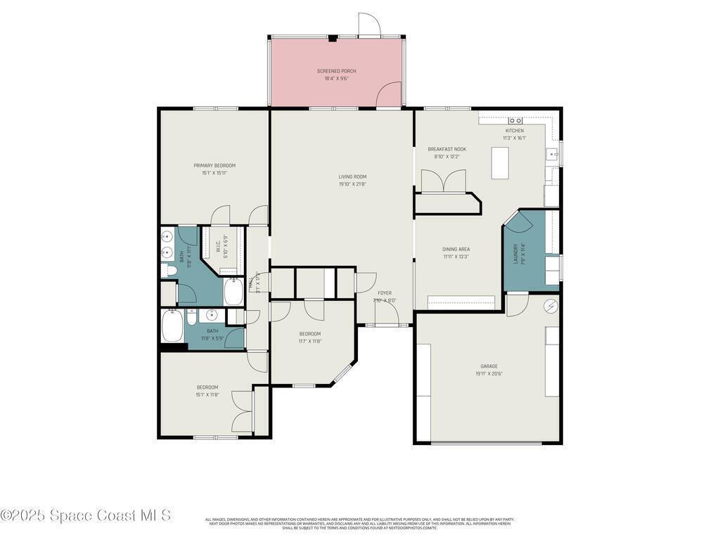
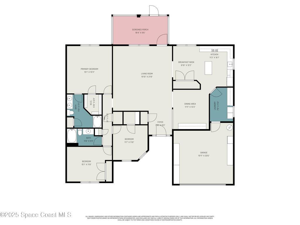
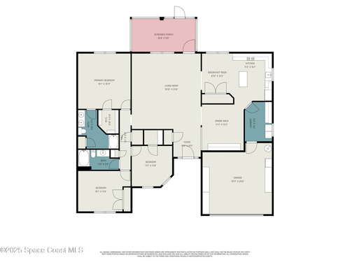
Welcome to 3291 Fitzpatrick Ave. Here you can enjoy a little more elbow room and privacy with the near 1/2 acre privacy fenced lot! It is perfect for all your toys featuring a 12X30 Shed with an attached 20X30 lean to. Inside the home features new Luxury Vinyl Plank flooring thru out the whole home for years of easy maintenance and durability. The bright open kitchen features Epoxy countertops with island, stainless steel appliances, large pantry, and breakfast nook. A large laundry room is just off the kitchen. The supersized great room is perfect for any large gathering. All three bedrooms feature walk in closets. Step outside to the large Florida room overlooking the massive yard perfect for a future pool! Other recent updates include the Roof, Water Heater, Water softener, Driveway, and a Whole house generator hookup. The garage is the perfect man cave with a 18K Mr Cool mini split A/C system and a 220 Welder outlet. Come check out this beautiful home.
Essential Information
Year Built: 2006
Price: $398,900
Property Type: Residential
Area: 2,018 sqft.
Country: USA
City: Palm Bay
Bedrooms: 3
Bathrooms: 2.00
Additional Property Info
Community Fees: No
Construction: Block and Stucco
Cooling: Central Air, Electric and Split System
Equipment/Appliances: Dishwasher, Electric Range, Electric Water Heater, Ice Maker, Microwave, Refrigerator and Water Softener Owned
Floor: Laminate
Furnished: Unfurnished
Heat: Central and Electric
Interior Features: Breakfast Nook, Ceiling Fan(s), Eat-in Kitchen, Kitchen Island, Pantry, Vaulted Ceiling(s) and Walk-In Closet(s)
List Price/SqFt: $197.67 / sqft
Listing ID: 1063728
Listing Status: Active
Lot Description: Split Possible
Lot SqFt: 20,909 sqft
Parking: Attached, Garage, Garage Door Opener and RV Access/Parking