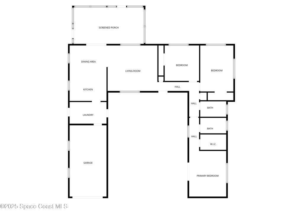
Welcome to this 3-bedroom, 2-bath masonry-built single-family home on a generous 0.23-acre lot--a rare opportunity in Harbour Beach for anyone looking for a handyman special with enormous upside, an excellent opportunity for renovators, , landlords, or buyers who enjoy adding personal touches to a coastal home. Key Features Solid Masonry Construction -- A strong foundation for your next renovation. New Roof -- A major improvement already completed. Closed-In Courtyard with Koi Pond -- A serene and distinctive front-entry feature. Hurricane Impact Doors and Windows Screened Porch -- Enjoy morning coffee or evening breezes free from bugs. Attached 1-Car Garage Ceiling Fans Throughout Fully Fenced, Spacious Backyard -- Great for pets, gardening, entertaining, or future upgrades. Excellent Location Conveniently situated near local parks, shopping centers, schools, and museums, this home keeps you connected to many of the highlights in Brevard County Beaches & Waterfront .
Essential Information
Year Built: 1961
Price: $295,000
Property Type: Residential
Area: 1,439 sqft.
Country: USA
City: Satellite Beach
Bedrooms: 3
Bathrooms: 2.00
Additional Property Info
Community Fees: No
Construction: Stucco
Cooling: Central Air
Equipment/Appliances: Other
Furnished: Unfurnished
Heat: Central
List Price/SqFt: $205 / sqft
Listing ID: 1063791
Listing Status: Pending
Lot Description: Other
Lot SqFt: 10,018.80 sqft
Parking: Attached
Pool: No
Possession: Negotiable
Private Pool: No
Property Type: Residential
Residential Sub-Type: Single Family Residence
Rooms: Bathroom 2, Bedroom 2, Bedroom 3, Kitchen, Living Room, Primary Bathroom and Primary Bedroom