Welcome to your dream retreat--an exceptional 3-acre property offering the perfect blend of privacy & functionality. Surrounded by the serene Grant Sanctuary on two sides and protected by natural water boundaries, this home delivers a peaceful, secluded setting with NO HOA. Whether you're an equestrian enthusiast, an avid entertainer, or simply craving space and tranquility, this property is a rare find. Step inside and discover a thoughtfully designed layout enhanced by high-quality upgrades. The heart of the home is the beautifully updated kitchen, equipped with top-of-the-line Z-Line appliances including a black stainless steel gas oven with a 6-burner cooktop, powerful exterior-vented hood, pot filler, matching refrigerator, dishwasher, and an additional electric Z-Line oven--making this a chef's paradise. Premium Quartz countertops and luxury vinyl flooring (both added in 2022) elevate the space with style and durability. ROOF 2025!
Essential Information
Year Built: 1981
Price: $729,900
Property Type: Residential
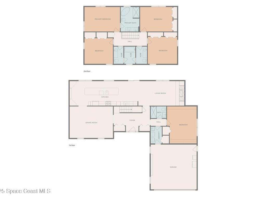
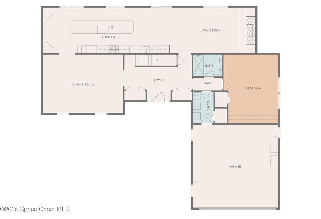
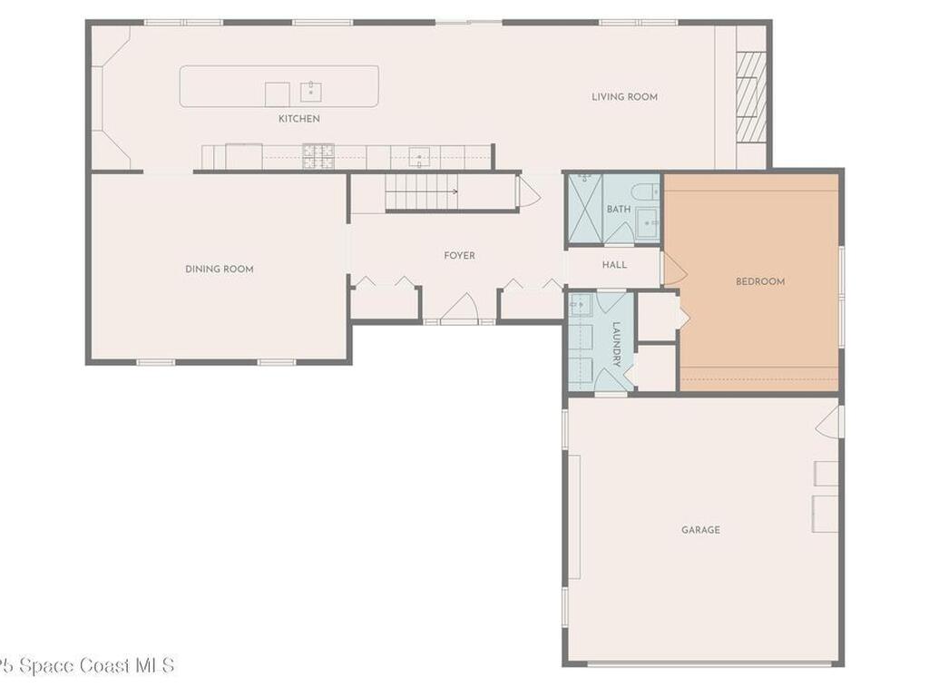
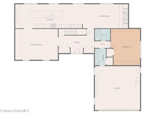
Area: 2,744 sqft.
Country: USA
City: Grant
Bedrooms: 5
Bathrooms: 3.00
Additional Property Info
Community Fees: No
Construction: Frame, Other and Wood Siding
Cooling: Central Air and Electric
Dwelling View: Pool and Trees/Woods
Equipment/Appliances: Dishwasher, Dryer, Gas Cooktop, Gas Range, Microwave, Other, Refrigerator and Washer
Exterior Features: Other
Fireplace: Wood Burning
Floor: Carpet and Vinyl
Furnished: Unfurnished
Heat: Central and Electric
Interior Features: Breakfast Bar, Built-in Features, Ceiling Fan(s), Eat-in Kitchen, Kitchen Island, Open Floorplan and Primary Bathroom -Tub with Separate Shower
List Price/SqFt: $266 / sqft
Listing ID: 1063851
Listing Status: Pending
Lot Description: Cleared, Dead End Street and Many Trees
Lot SqFt: 130,680 sqft
Parking: Attached, Garage Door Opener and RV Access/Parking